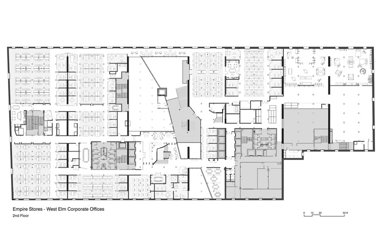
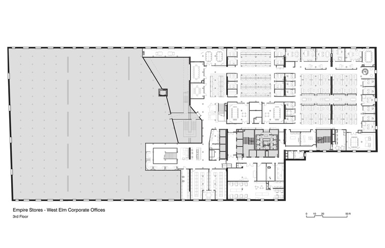
VM建築設計自West Elm2002年成立之初就與其合作。隨著West Elm品牌的壯大他們共同設計並裝修了4所辦公空間,一個攝影棚,一個生產商的工作室,以及一些零售專營店。每一次擴大,West lm都會請VWAD一起參與設計更為適宜的工作環境。過去的12年West Elm發展迅猛,從一個隻靠產品目錄推銷的小店發展為市值億萬的全球連鎖店,這也意味著,他們需要一個新的公司總部了。這一次,新的總部占地約9290平方米,由VNAD的主持設計師Mark Murashige and Kay Vorderwuelbecke領導設計。新總部位於布魯克林湖邊一棟具有150年曆史的帝國儲存倉庫(Empire Stores Warehouse)綜合樓裏。
VMAD為West Elm設計的新辦公室符合其品牌特質。雙方合作致力於創造一個永不過時的精妙空間-更像是一個藝術畫廊而不隻是一個時尚的辦公室。VMAD希望能打造一種能體現自身品牌設計審美的環境,能融合自己全球各地設計師及布魯克林當地設計師的不同藝術元素。它也必須能凸顯新West Elm辦公空間(WORKSPACE)中的各色家具。VMAD的建築師們任重道遠。要在一個黑暗的倉庫中創造出一種畫廊感實屬不易。(新總部)外牆由石磚砌成,約0.6米厚,開窗極少。使用的輕型木架,反光地板,以及視野通透的走廊確保了將窗戶對空間的影響降到最低,黑暗的倉庫也變得明亮通風,有利於激發設計團隊的創意。由此望去,布魯克林橋和曼哈頓橋之間的天際線和東河(East River)的風景也更加迷人。
厚重的木料和大量的石磚隻是整個空間構成的部分元素,卻擁有不容忽視的力量。為了緩和這種強大的存在感,VMAD使用了反差極大的裝飾。他們精心挑選了單質金屬,使用噴黑的鐵材,銅,和具有年代感的黃銅,並且采用了混凝土地板,白色牆壁,和胡桃木的嵌板,凸顯出West Elm產品的非同凡響。設計師們在厚實的木質支柱之間創造出一個巨大的中庭,內含一個高聳大廳和一個兩層多高的員工咖啡廳。這種集中的中庭可以容納West Elm的全體員工。West Elm品牌定製的照明燈具已設計並安裝;根據合同,辦公空間(WORKSPACE)裏每6排都要展示其家具,展示家具已安置妥當。VMAD 和 West Elm 一直以來合作愉快。漂亮的新 West Elm 總部代表了這個不斷成長的品牌實力,其合作夥伴的獨特創意,以及其品牌價值的成功。
photos © Garrett Rowland , West Elm, Lutz Vorderwuelbecke






















