上海的西岸是一個以藝術博物館,江濱步行長廊和休閑綠帶而聞名的區域,在這裏尋找家庭活動的居民和文娛消閑場所的遊客在近年持續增長。隨著越來越多的人流,像時光裏這樣的商場也陸續被開發出來以迎合當地的商業及社區需求。二回畫廊:一個將文化,教育和商業項目融合一體的品牌, 選擇在這個開放式購物中心開設店鋪。芝作室在這裏創建了一個折疊的拱廊,聚集周圍的公眾能量,營造出一個半公共的零售體驗。
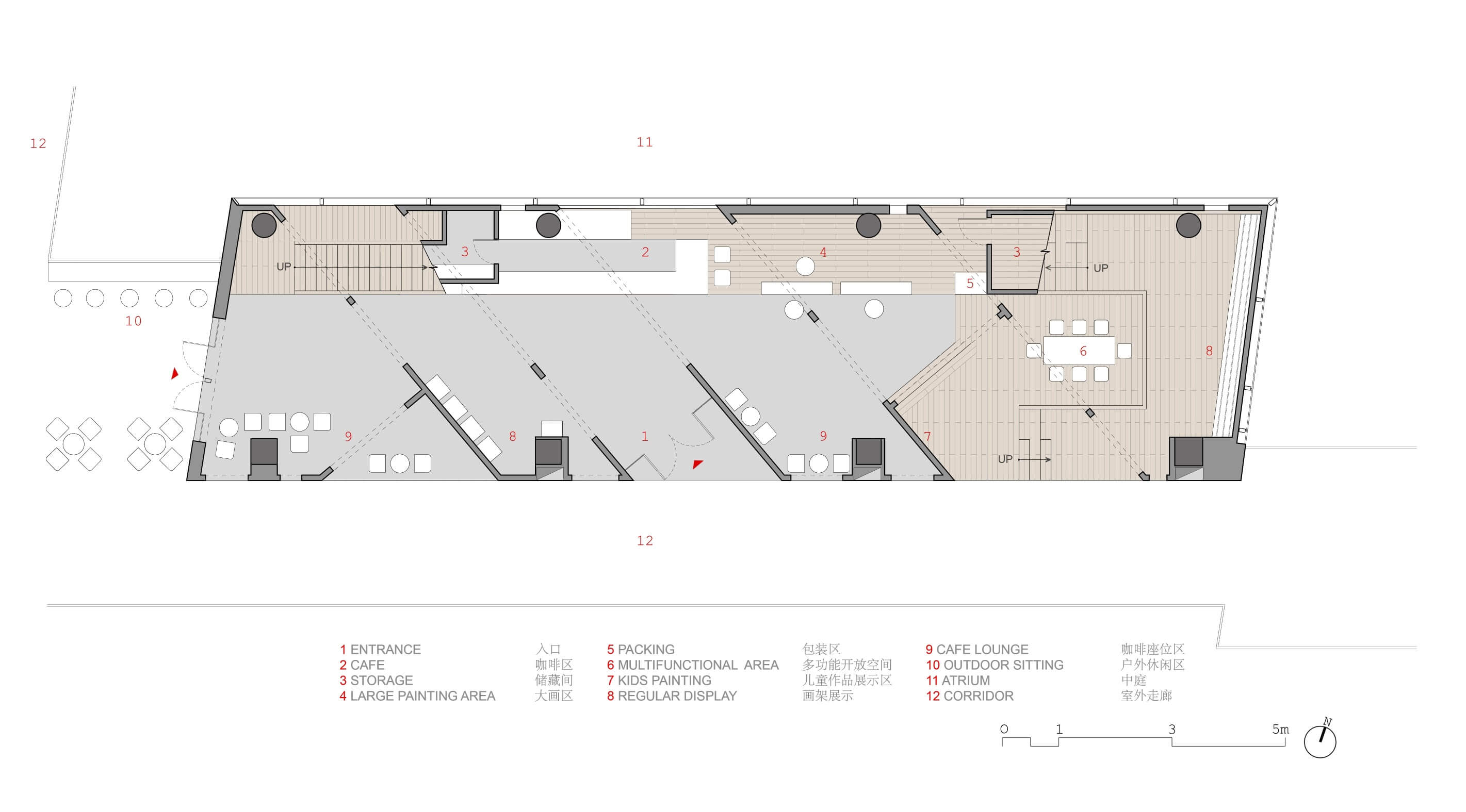
畫廊位於商場的地麵層,一邊麵向中庭,一邊沿商場內街。原空間狹長單調,全玻璃外牆讓它本身就像通道的一部分。為了引導顧客進內流連,芝作室引入了一係列帶有拱門洞的白色牆體,沿著場地短邊往互折疊,不斷延伸,分隔出朝內朝外的區域。從沿街麵走過,可看到內部空間時開時合,不斷變化。這一折疊牆體的介入仿佛把走廊延伸進畫廊,引領遊人進店探索。白色簡潔的拱牆不僅帶來一個有節奏感的外立麵,也讓室內空間層次分明,同時更巧妙地為畫廊提供了充足的展示麵與靈活的空間。
除了在畫廊的開放空間中流暢引導視線與活動的白色折疊拱廊,一個木製體塊的引入對於有效組織其餘服務功能以及釋放出步行空間起到至關重要的作用。由畫廊的兩個入口進入空間,人們可以輕鬆地找到位於木製夾層下的咖啡櫃台。白色拱廊的終點通往一個開放式的教室平台,由周圍高起的展示過道所圍合。在周末,孩子們的繪畫課上,父母,朋友或路人都可倚靠在平台的木欄杆上,從近距離觀察學習過程。整個木製的展示過道最多可以容納多達20位藝術家的作品,每一位都會配以一則視頻簡介以及待售的係列畫作。拾級而上,來客可以選擇在更私密的夾層中欣賞畫作,或俯瞰畫廊下更開闊的空間。
通過簡單的建築語言,芝作室創造了一個豐富的空間序列,使不同的用戶得以在其中漫遊,思考,學習或消費。若問這空間究竟是私人畫廊還是公共廣場,答案會隨著場所當天的安排與來者當時的心態而有不同。雖然就麵積而言,折疊拱廊並不大,但我們相信正是這種多樣化的社交空間激發鼓勵了互動,並持續點綴我們的生活環境。
photos © Peter Dixie for洛唐建築攝影






























