VIKA KHOKHLOVA
BUILDING COMMON(S) BY BUILDING WALLS
雅典維多利亞地區的新城市場景。在正式邊界的支持下,在團結和相互尊重的前提下,該項目設想將城市作為一個公共的第二家園。用圍牆重建當代雅典城市的共同感。
New urban scenario for the Victoria area in Athens. With solidarity and mutual respect, supported by the formal borders, the project speculates on sharing the city as a public second home. Using walls to re-establish the sense of common(s) within the contemporary city of Athens.
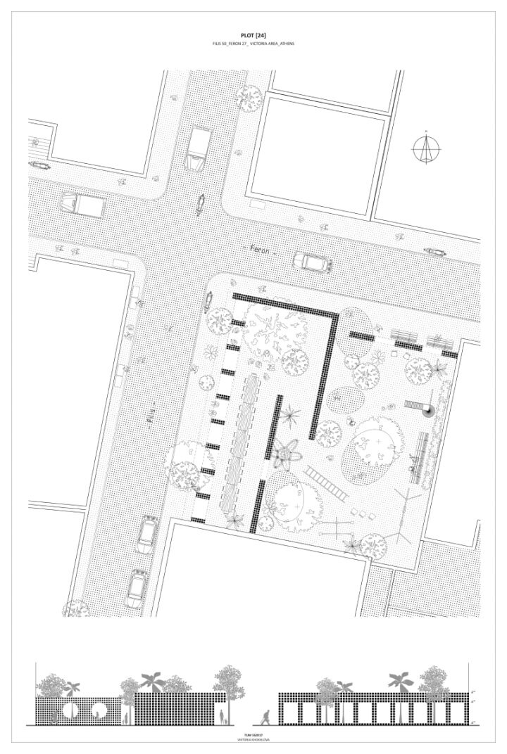
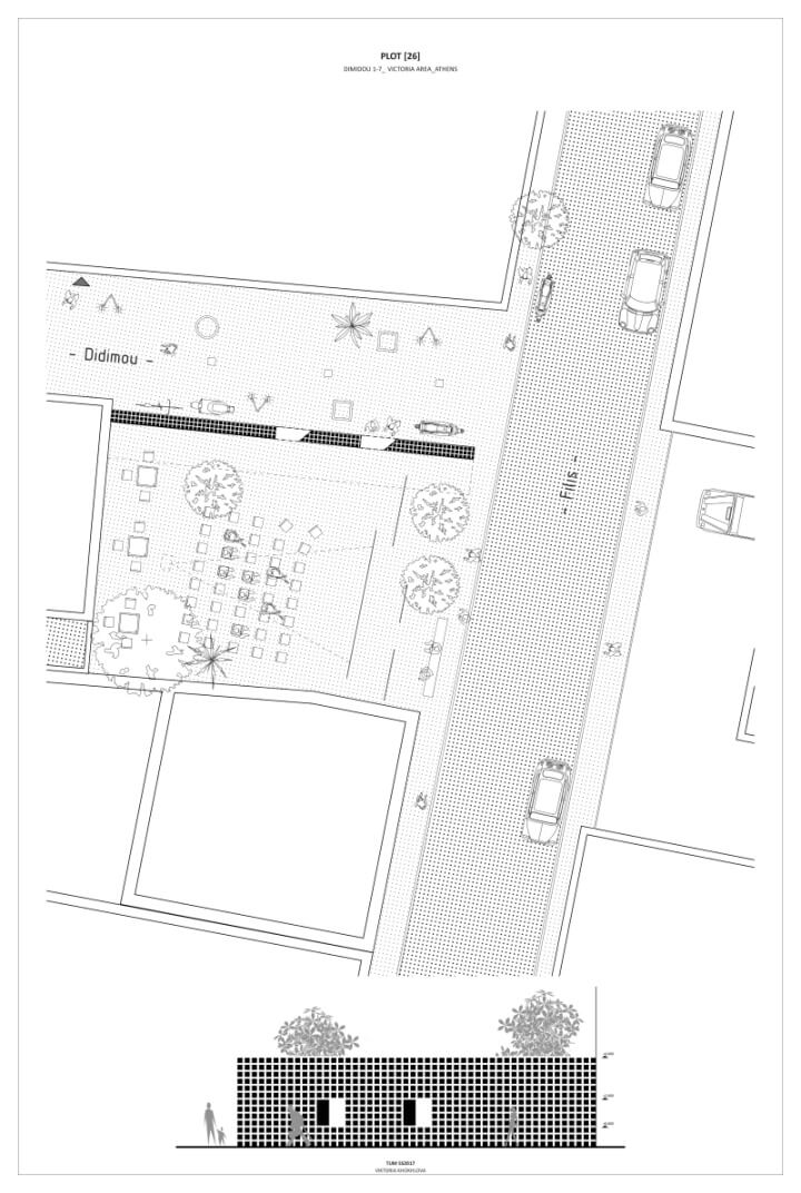
在雅典維多利亞地區,永久性的危機狀態導致其公民不斷被遺棄。波利卡托伊基亞(polykatoikias)的空置公寓沒有公開宣布自己的身份,但從視覺上看,空置的地塊會影響城市的形象,並對城市居民產生直接影響。視覺空缺地圖描繪了城市肌理中明顯的空白點,換句話說,“危機的空間格局”(N. Belavilas, P. Prentou,雅典社會地圖集,2015年12月)。對“空缺”概念的質疑,可能會出現相互矛盾的觀點。盡管認為它是一種放棄和城市的衰敗,人們可能會發現它的潛力和充滿前景和開放的可能性。這引發了對法線的重新思考,並找到了新的方法。
The permanent state of crisis, within the area of Victoria, Athens, causes a constant feeling of abandonment for its citizens. Whereas the empty apartments at polykatoikias do not announce themselves publicly, visually vacant plots affect the image of the city and have a direct influence on its inhabitants. The visual vacancy map pictures the clearly vacant spots in the urban fabric, in other words, “the spatial pattern of the crisis” (N. Belavilas, P. Prentou, Athens social atlas, Dec 2015). Questioning the notion of “vacancy”, there might contradictory visions appear. Despite seeing it as abandonness and urban decay, one may find it potential and full of prospective and open possibilities. This provokes the re-thinking of normals and finding new approaches.
雖然雅典市民不使用他們的陽台、露台和庭院的空間,但他們仍然有必要聚集在公共空間,無論原因是什麼。
Whilst the citizens of Athens are not using the spaces of their balconies, terraces, and courtyards, they still have the necessity to gather in public spaces, no matter the reason.
雅典的空間存在於國家、城市和居民之間,正式與非正式之間的界限有時難以確立。改變現有的城市政策,開放使用暫時空置的地塊,將意味著通過公共集會和非正式倡議賦予雅典權力。“共同的理解(s)作為一種新型的(城市)空間外公共和私人的二分法”(Merve Bedir),是一個希望阻止弱勢社區和公眾上升以保護公共利益的問題,以恢複他們作為城市所有者的合法地位。
Space in Athens exists between the state, the city and the residents, and the border between formal and informal is sometimes hard to establish. Changing existing urban policies for the open use of the temporally vacant plots would mean empowering Athens through public gatherings and informal initiatives. “The understanding of common(s) as a new kind of (urban) space that is outside the dichotomy of public and private” (Merve Bedir) is a hope for resistance of disadvantaged communities and general public in rising up to protect a matter of public interest in order reclaim their rightful place as owners of the city.
目前,維多利亞地區居住著多國和多元化的社會群體,整體氛圍非常緊張。該項目堅信,重新劃定邊界將促進更健康的社區關係。該項目提倡的不是創造一種幻覺,一種“理想”社會的形象,而是更好地對社會的所有成員表現出寬容。有了牆這樣一個簡單的工具,就有可能在私人生活的同時建立會議場所。牆壁的元素將允許任何形式的相鄰,而牆壁的開口將是邀請和關係的管理者。在正式邊界的支持下,在團結和相互尊重的基礎上,該項目設想將城市作為公共第二家園共享。城牆將允許重建當代雅典城市的共同感。
Currently, the area of Victoria is inhabited by multinational and diverse social groups. The overall atmosphere is quite tense. The project strongly believes that reclaiming the borders would cause healthier community relations. Instead of creating an illusion, an image of an “ideal” society, the project advocates that it is better to show tolerance towards all the members of the society. With such a simple tool as a wall, it is possible to establish meeting places whilst living one’s own life privately. The element of the wall would allow for any kind of neighboring, whilst openings in the walls would be invitations and regulators of relations. With solidarity and mutual respect, supported by the formal borders, it the project speculates on sharing the city as a public second home. The walls would allow to re-establish the sense of common(s) within the contemporary city of Athens.
位置:希臘,雅典
項目年:2017年
版權歸屬:photos & design © VIKA KHOKHLOVA
























