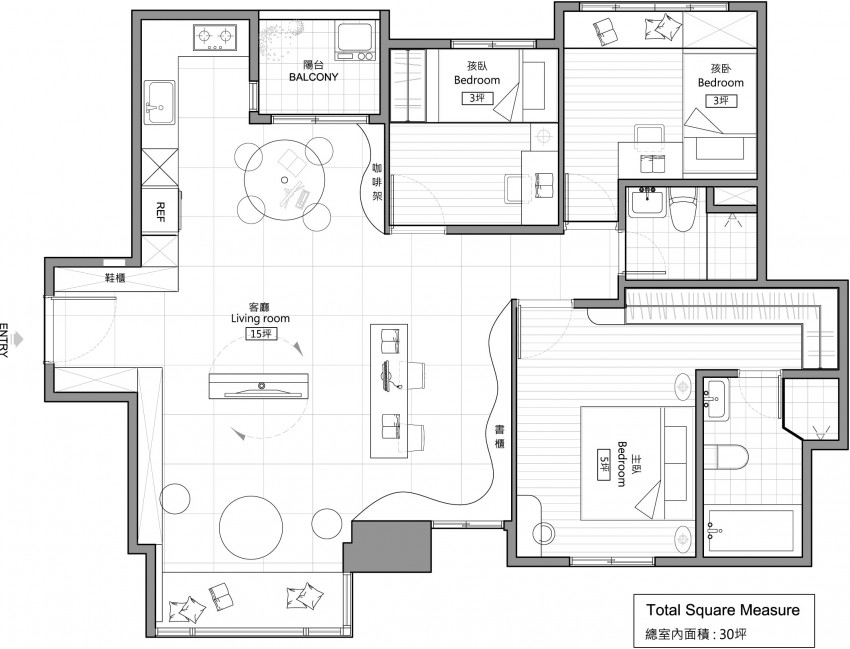
Family Home位於台灣省高雄市,麵積為100平方,由House Design。台灣室內設計總能給我們帶來驚喜,這間住宅具有很好的通風和采光,再加上實木的運用,整個空間充滿溫暖和舒適的感覺。因空間視覺的關係設計師把電視設計成180度可旋轉的,沙發、書房、餐廳皆可觀賞。電視背麵為亮眼黃色的烤漆玻璃,主要當作小朋友的塗鴉牆。書房做成開放空間,讓整體視覺效果更寬敞,書櫃的材質是超低甲醛的OSB板,厚度為兩公分,呈現自然風格。餐廳區域,把餐桌做成一顆“樹”,上麵吊著三十幾隻會發光的“螢火蟲”,特別選擇綠色和黃色的小小圓凳來搭配。還有衛生間、臥室設計也創意多多,色彩鮮明。
Photos © House Design
Content Copyright © www.online4teile.com
版權聲明:本站所有文章除投稿授權發布外,其他文字內容均為原創,享有著作權保護,未經許可不得以任何形式進行轉載(包括且不限於:媒體、網站、公眾號等)。所有項目照片/設計圖形版權歸原作者所有。本站部分內容源自網絡公開資源或用戶分享,如若侵犯了原作者的合法權益,可聯係我們進行處理。




























