LOFT中國感謝來自 艾克建築設計 的住宅空間案例分享:
飛機師、空姐,一個高顏值的職業,生活在這個房子裏的人,就是他們。我們想要構建一個合適他們的居所。他們很少社交時間,他們過著宿舍到機場兩點一線的生活軌跡,而回到家經常是深夜。在飛機上,麵對無邊際的天空,保持著高強度的精神壓力,他們需要讓生活慢下來。
The project is an apartment located in Shantou, Guangdong Province, China, designed for a pilot–stewardess couple. Most of the time, there are only two places that they seem to be associated with: airport and home. They have to work under great pressure and stay quite concentrated during the flight, and it is often late at night when they come back home. Considering these factors, AD ARCHITECTURE, the design studio, aimed to create a tailor-made residence for the couple where they can slow down the pace of life.
這是廣東汕頭的一個頂層住宅,建築空間結構帶給我們特殊的形式感,室內空間做為建築空間的延伸,我們希望室內空間做為建築空間的生長基因,利用自然的光線,簡單的肌理表現,來打造一個可以慢下來的空間環境。該項目表達了人與空氣、與風、與陽光的關係。而不是其空間本身。
The apartment is on the top of a building, with the interior space featuring many slanting and unique structures. Through making full use of natural light as well as adopting an austere material palette, AD ARCHITECTURE turned the original space into a minimalist and refreshing home. The design team focused on dealing with the relations between human and air, wind and sunlight, rather than decoration and furnishing of the space.
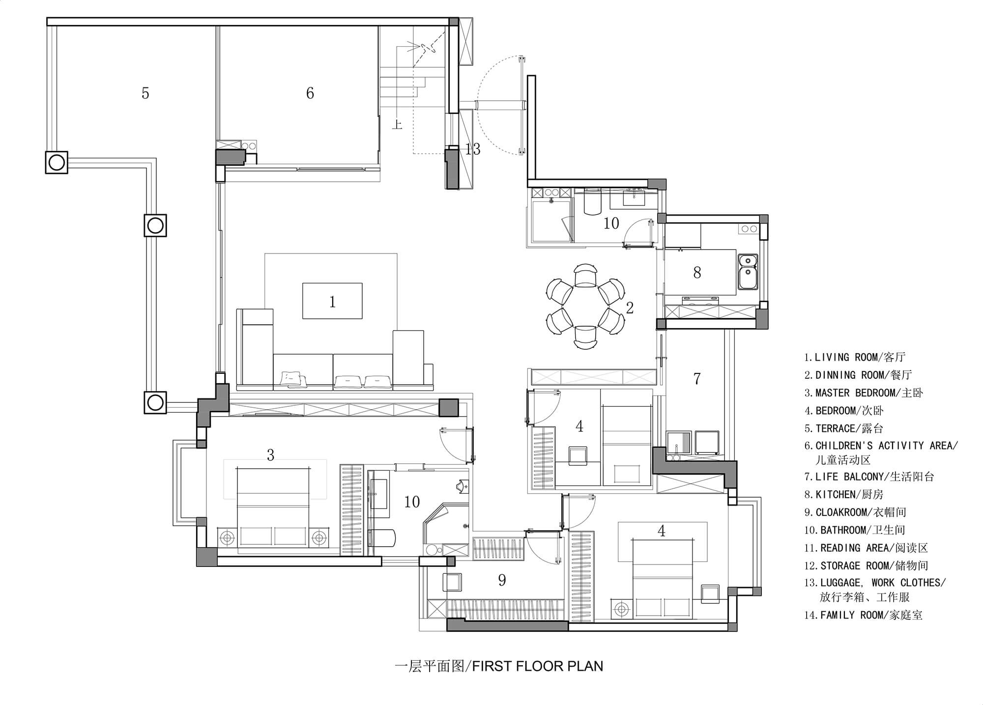
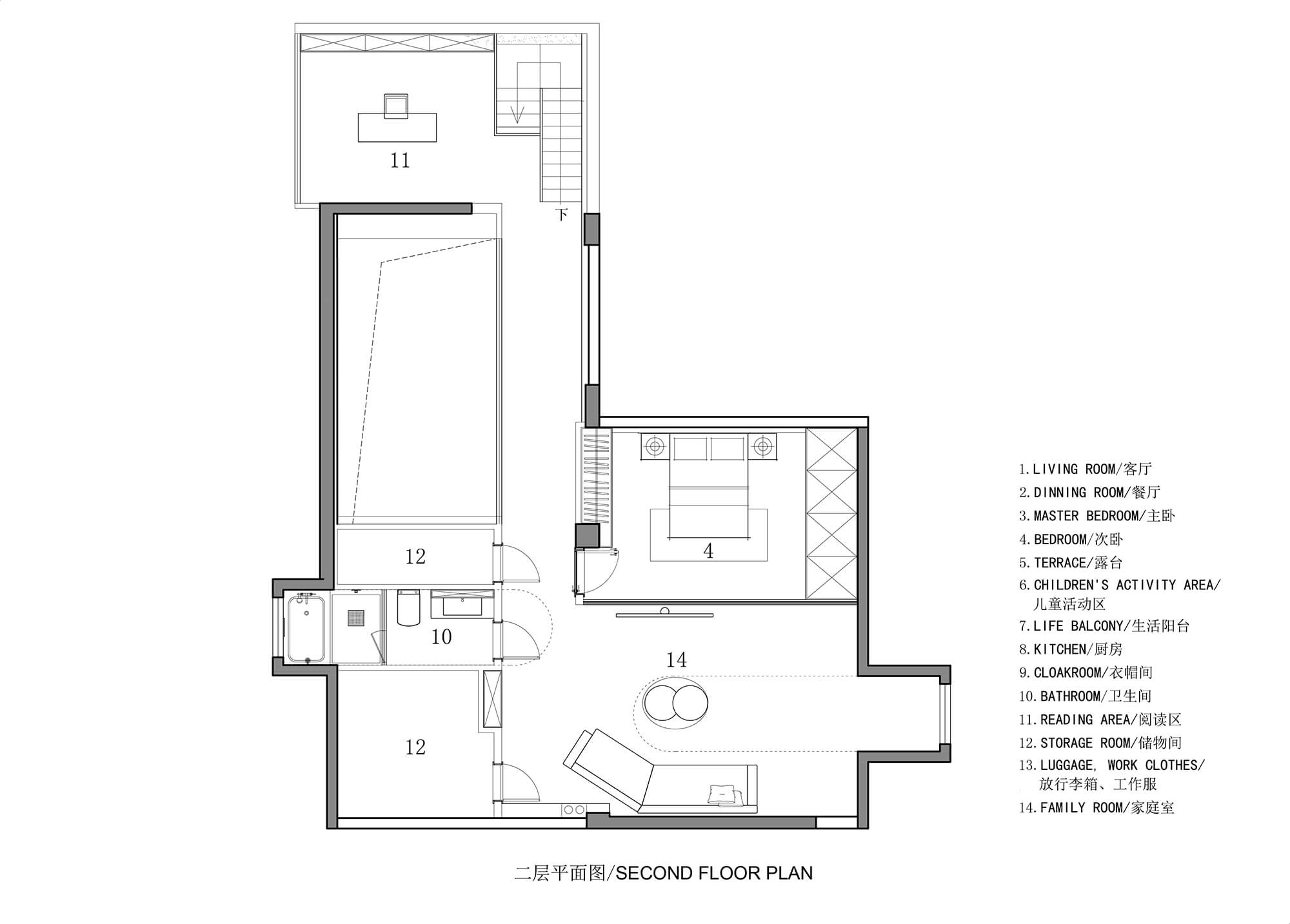
在整體的結構設計上,為了讓建築的形式感可以延伸到一樓,我們打開了二層的樓板,客廳挑高空間的同時解決了二層采光及通風的問題,一層我們定義為起居生活的行為,結合他們的職業習慣,我們為他們設置了單獨的更衣室以及入口的行李箱擺放櫃。二層定義為是娛樂休閑的行為,同時設置了休息室,使深夜回家不影響對方休息。從設計上有力的去解決他們的生活規律問題。
The overall space is composed of two floors, with 1F serving for living and 2F for leisure. On 1F, an independent dressing room and a luggage case cabinet were designed catering to the needs of the owners. And the 2nd floor slab above the living room was removed, in order to ensure enough daylight and ventilation in the space. Apart from leisure areas, there is a resting room on 2F, which can be used when one of the owner gets home late at night, without disturbing the other person.
客廳與餐廳敞開互相滲透,讓家人之間擁有舒適的互動及活動空間。樓梯不僅是通往頂層的媒介,更重要的是設計讓樓梯成為了空間的藝術裝置。舒適的沙發坐感、米色的皮質感與空間中的木色傳遞著生活的溫度。
The living room and the dining space are connected in an open area, which facilitates the interaction of the family. The staircase leading to the second floor looks like an art installation, with great visual appeal. Soft beige leather sofa, and wood veneers, together create a warm tone in the space.
我們選擇最簡單的材料做為極簡裝飾,灰色地磚、白色的牆壁,以及淺色木質材料,共同構建空間的肌理質感。讓居者感受最樸實的空間表情。
A limited material palette of gray tiles, white paint and light-colored wood helped to achieve a minimalist and austere aesthetic in the overall space.
∇一層原結構圖
∇二層原結構圖
∇立麵圖
完整項目信息
項目名稱:傾斜的盒子∣極簡與空靈
設計機構:AD ARCHITECTURE∣艾克建築設計
總設計師:謝培河
設計團隊:艾克建築
施工團隊:艾克工程
項目地點:廣東汕頭
建築麵積:230㎡
主要材料:啞光磚、白色乳膠漆、白色啞光漆、木飾麵、木地板
設計時間:2018年1月
竣工時間:2018年12月
攝影師:歐陽雲

















































