該公寓坐落在巴塞羅那的奧林匹克碼頭附近,由當地的事務所Cometa Architects設計。設計團隊重新規劃了這個56平方米的公寓,拆除了所有內牆,打開了正麵外牆,以實現不間斷的空間和景觀,創造了一個隻需要基本設施的建築之旅。
Situated near Barcelona’s Olympic Marina, this apartment recently designed by local practice Cometa Architects pays direct tribute to its seaport context. The design team has reconfigured this 56 sqm apartment by knocking down all interior walls and opening up the frontal exterior wall in order to achieve uninterrupted space and views, creating an architectural journey where one would need just the essential.
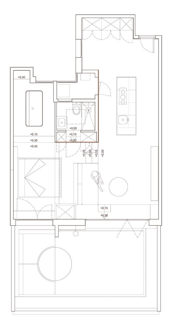
公寓的方形布局圍繞一個緊湊的木製小屋,其中包括廁所,壁櫥,洗衣房和其他設施。它的主要用途是對稱地平衡周圍的空間:廚房和儲藏室在右側,起居和睡眠麵向前方,洗浴在左側。
The square plan of the apartment is organized around a compact wooden cabin, where the toilet, closets, laundry room and installations are located. The main uses of space are symmetrically balanced around it: kitchen & storage on its right side, living and sleeping facing front and bathing to the left.
船形的混凝土內部采用淺灰色微水泥處理,靈感來自附近的原始混凝土碼頭。暴露的裝置,由船用銅管、配件和燈具精確組成,在固體表麵上伸展,提供溫暖的光澤,這也許是公寓唯一的裝飾元素,同時有條不紊地對應著特定的用途。
The vessel-looking concrete interior is treated with light grey microcement, drawing inspiration from the raw concrete docks that can be seen nearby. The exposed installations, precisely composed by marine copper piping, fittings and light fixtures, are stretching over the solid surfaces, offering a warm radiance, perhaps the only decorative element of the apartment, while methodically correspond to the specific uses.
空間的經濟性是該項目的另一個屬性,床、沙發、所有定製的木製設計家具和集成的壁櫥都成為存儲空間。地板下采暖有助於調節能量並避免空間中的散熱器。
The economy of space is an attribute to this project, where beds, sofas, all custom wooden design furniture and integrated closets are becoming storage. Underfloor heating helps regulate energy and avoid radiators in the space.
盡管麵積有限,但由於室內外的直接連接,使空間擴大了一倍,自然光線得以進入,當然還有海風的吹拂。
Despite the limited square meters, this apartment enjoys extended space thanks to the direct connection of the interior-exterior which doubles the space, letting tones of natural light enter and of course the natural breeze of the sea.
兩個純白色體量界定了潮濕區域:廚房島和浴缸。這兩個大膽的元素被放置在開放空間中,給人一種懸浮在地板上的感覺,同時在簡約的空間中創造一種優雅而獨特的氛圍。
Two pure white volumes determine the wet areas: the kitchen island and the bathtub. Placed in the open space, these two bold elements give the impression of hovering over the floor while creating an elegant and exclusive ambience within the otherwise minimal architecture.
完整項目信息
項目名稱:MARINA APARTMENT
項目位置:西班牙巴塞羅那
項目類型:住宅空間/公寓翻新
項目麵積:56㎡
完成時間:2019
設計公司:Cometa Architects
攝影:José Hevia



























