01. 項目簡介
項目位於北京朝陽區,套內麵積56平。希望破除空間盒子的僵硬定義,模糊空間中的界限與分隔。借鑒江南園林的設計手法,從需求出發進行空間延展,如同不斷展開的盒子,區別於外界的絕對的狀態,營造讓使用者可以放鬆的生活的模糊感。
02. 生長的曲線
本案在空間中生長兩個S型曲線用來構築牆體,完成了對空間的基本分割,最終實現整屋建立起秩序,事物各就其位。
∇ 生長曲線
s型曲線一
曲線牆體的位置走向是依據現有情況和各功能空間的需求進行生長,其凹與凸都是服務於具體功能需求,將壁龕、首飾櫃、床頭櫃、鞋櫃、書架等功能集合到了曲線牆體內。
s型曲線二
空間中隻衛生間使用了封閉的門,其他空間均未有封閉的門,致使各個空間之間形成互相的滲透。除了功能上的集合以外,曲麵牆的弧線走向還很好地起到了空間之間過渡的視覺引導作用。曲線牆本身既作為空間的分割邊界,同時也是空間中的一部分。
03. 景情營造
整體空間動線圍繞著曲線構築牆體形成一個中心式洄遊動線,用穿針引線的方式將各個功能空間進行串聯並形成閉合回路。這樣的動線組織可以實現行走路徑的最小化和使用效率的最大化,可以不走回頭路地輕鬆到達各個空間。空間回路被打通了,進而就形成了無走動盡頭的家,讓行走在期間的人形成一種空間被放大了的錯覺。
∇ 洄遊動線分析
園林設計中很注重造景,《園冶》開篇“興造論”有言:“園林巧於‘因’‘借’,精在‘體’‘宜’。本案在室內居室環境中也希望能夠借鑒園林造景中的手法來營造一個可以遊園的的家。
通過玄關就來到了由客廳、開放式廚房和書/餐桌組成的的複合空間,沙發放置於曲麵牆構成的環抱空間,圓形茶幾統領起整個空間,簡潔和櫥櫃和窗戶組成了主要的界麵,寬敞明亮。
利用結構梁打造成Stoa式空間,最終形成三層拱形結構,強調視覺秩序,增加整個空間的景深,用綠植作為對景點綴。臥室陽台處光線投射進來,營造了古希臘式的拱廊氛圍暗示空間的延展。
臥室空間的衣櫃使用半透明亞克力材質,進行懸浮處理後仿佛是一麵消失的衣櫃,減少臥室空間的壓迫感。 衛生間采用三分離,手盆外置,手盆上部的弧線從天花落下呼應了Stoa空間。
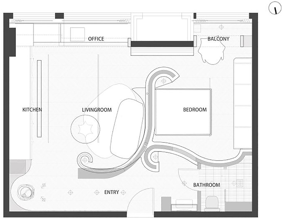
∇ 平麵圖
項目信息
項目名稱:屋有園(Garden Home)
項目年份:2022,01
項目地址:北京 朝陽
套內麵積:56平
設計公司:北京逸刻室內設計有限公司
項目設計:劉祖龍、衣輝樂、夏薏婷
項目獲獎:
2022年度A‘Design Award 銅獎
2022年度IAI Design Award 金獎
項目攝影:金偉琦



























