曆經一年的籌備,楚令尹開業了。作為參與籌備的一員深感欣慰。“楚令尹”一詞來源於春秋戰國,是楚國在當時的最高官銜,主要由楚國貴族當中的賢能來擔任,是掌握政治事務,發號施令的最高官,其執掌一國之國柄,身處上位,以率下民,對內主持國事,對外主持戰爭,總攬軍政大權於一身。所以這個名稱毋庸置疑代表著高級,因為楚國所在地包括湖南,所以湖南文化與古楚文化如出一轍。這裏我們不談餐廳的名字,隻要記得楚令尹是高級湘菜的代表就夠了。
回到設計上來,首先非常感謝甲方黃嶽紅女士的大力支持和信任,因為本場的前身“雁舍四季”也是我們參與完成的,坦白說能否超越以前我們並不清晰,這對於無之來說有著極大的挑戰。楚令尹的設計初衷與雁舍四季也有著明顯的區別,雁舍相對是平價消費,而楚令尹則是具有傳統文化特點(在視覺與味覺上)的高級湘菜餐廳。所以設計理所應當就圍繞著高級和傳統展開了。
“高級”這個詞對於我是有些反感的,或許是內心的一點小自卑,日常裏對其是敬而遠之的,但同時我所認為的高級又與市場的高級有著本質的區別,於是我便釋然了。究竟何為高級?粗淺的理解就是精細化的服務,當然也包括空間設計在內。換句話說就是將簡單的事情複雜化,這話聽起來似乎不太好聽,其實就是如此,所以,增加舞台化和儀式感成了設計的主角,比如,安靜的水池,悠長的走廊,明暗變化的燈光,展示廚藝的移動餐車,包房的休息區與茶室等等這些都是提升高級感的必要手段,總之你的服務越精細,客人的體驗也就越高級。
再說傳統,不同的人對傳統有著不同的解讀,有人視傳統為保守,我則不以為然,因為很多人不懂得在曆史中看問題,如今的傳統已經是我們生活的一部分,單純的把傳統看作一種形式是狹隘的。我們沒有能力重現曆史,重現所謂楚國的輝煌,更沒有必要重複曆史,而空間設計最重要的是表現我們心中的過去,打造一個屬於當代的楚令尹。中華民族有著幾千年的傳承,留給我們的文化似乎模糊又清晰,謙虛的,內斂的,樸實的,深遠的,點點滴滴經曆著創造與傳承,如今我們不能完整的再現美好(楚文化),但在曆史的碎片中也能抓到些許傳統文化的印跡。是博物館裏陶罐漆器上一道紅,是青銅璞玉上的一抹綠。
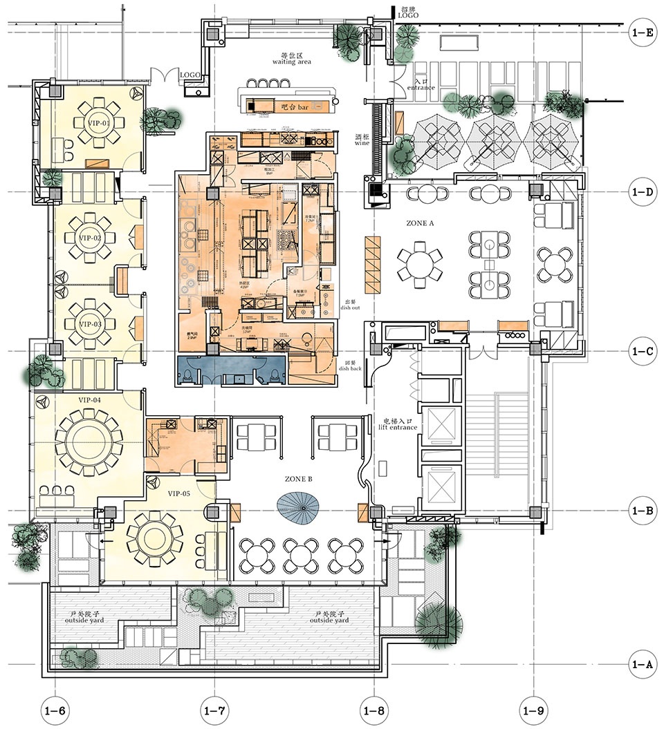
∇ 平麵圖
項目信息
項目名稱:楚令尹(北京坊店)
項目類型:餐飲空間
設計方:北京無之設計谘詢有限公司
項目設計:2022年10月
完成年份:2023年10月
設計團隊:趙爽,鄭雅楠
項目地址:北京市西城區北京坊W8四層
建築麵積:570㎡
攝影版權:趙爽
合作方:華裝兄弟(北京)裝飾工程有限公司(施工單位);陳帆,姚玉應(施工技術人員);傅湘鋒,楊雨萱(展陳設計師)
客戶:北京雁巢餐飲有限責任公司
材料:微水泥,黑色金磚石,印度大花綠石材,紅銅,黑色木飾麵
品牌:石客照明(工程燈具);朗初照明(裝飾燈具);梵樸空間(活動家具/牆板);尼威利特北京科技有限公司(微水泥);永利聖源(窗簾布藝);環球金語(北京)裝飾工程有限公司 (金屬製品) ;上海新楹柯實業有限公司(地麵石材/牆麵石材) ;



































