1.“咪蒙”北京辦公室設計

CUN寸DESIGN在近年用對創意辦公環境的獨特思考,在全球範圍內斬獲多項此類別金獎迅速成為這個領域的一匹黑馬。更在去年在美國得到了全球唯一一個創意辦公環境的Best of year!通過這個消息,來自國內的一位新媒體大V咪蒙老板也找到了我們,想來一起為她的新辦公環境做設計!

 

2. 烏克蘭 29 ㎡工業風硬派男子單身公寓

設計師采用開放式的格局連結客廳、餐廚區,並在地麵設置不同建材來界定場域,廚房以花紋磁磚、客廳則鋪上木地板。公寓內色調從牆麵、家具都選用低彩度顏色為主,相對能映襯出屋主看似堅強卻又柔軟的個性;另外因為臥室設置於客廳旁,為了保有隱私便運用可動式的黑框玻璃門,可依據屋主心情調整,一展單身公寓的靈活自在

 

3. 重慶71㎡舊公寓改造設計

公寓過去的20多年被一個三口之家居住使用,新的屋主是一對年輕的夫妻,原有的布局無論在采光,通風還是功能上已經不能滿足他們現今的生活需求。因此新的屋主希望能夠將此公寓改造成一個在審美上功能上都更符合當代需求的新公寓。

 

4. 20款麵積小於50㎡的小宅平麵案例分享

 

5. 香港43㎡粉嫩係法式小宅

設計師與屋主雙方通過溝通,最終定下家居為輕奢格調,並采用高檔法式甜點「馬卡龍 」為概念延伸。因此不難發現從空間色調、天花造型、家具樣貌都與此概念環環相扣,揉合粉嫩、圓角等經典元素,彷佛走入艾麗斯的夢幻之家。

 

6. 生活改造家|31㎡上海貓屋

項目位於上海市徐彙區樂山路老舊小區一層,麵積31平方米,一室一廳,一廚一衛。最為嚴重的問題是:屋主收養了約50隻左右的小貓。人貓混居,同吃同睡,屋內空氣、光線非常差,大多貓身上都有較為嚴重的皮膚病。由於貓較容易生病,且容易逃跑,平時也不能開窗通風。

 

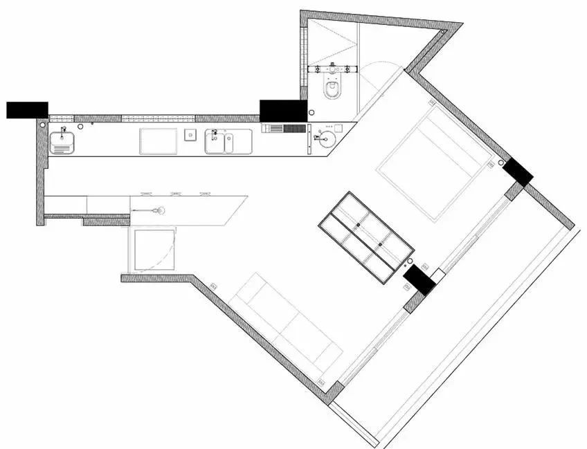
7. 台灣53㎡單身男子日式公寓

該屋主因為太喜歡日本,除了經常旅遊外,新家風格也希望移植日式風貌,身為工程師擁有大量公仔收藏,如何擺放陳列也成為設計師課題之一。

 

8. 俄羅斯40㎡春夏檸檬黃單身女子公寓

這間開放式公寓的屋主為一名喜愛喜愛閱讀、自在享受生活的單身女子,因為隻有一個人住,不想把一些常規設計帶入家中,因此省略客廳布局、將臥房當作中心,不做隔間,整個空間視野寬敞,在落地窗處搭配臥榻兼矮櫃結合,居住舒適度不會因小空間而有所差異。

 

9. 馬德裏 35㎡ loft工業風潮男單身公寓

俄羅斯設計師Andrey Barinov在behance上分享了他在西班牙馬德裏的公寓作品,位於都市中心的高樓大廈,設計師將樓層打通,規劃成挑高感強烈的工業風空間,讓室內麵積顯得極為寬廣。下層設有衛浴、廚房及客廳,架高的水泥地板從客廳一直延續至戶外陽台,壯觀的都會景致彷佛被拉進室內。樓梯下利用零碎空間規劃書桌和工作區,臥室則設在上層,可和客廳共享絕佳采光與視野。

 

10. 40㎡北歐混搭工業風單身女子公寓

這間位於台北的單身女子公寓,原本是為辦公室用途的場所,搖身一變成為個性化北歐宅,適時將屋主生活習慣結合空間,包括一起共居的兩隻貓咪,在家也需要工作的條件為前提,設計師從基礎工程著手,重新替換管線、拆除隔間、修繕天地壁麵,並重新打造廚房、浴室與陽台,讓小家更為舒適。

 

11. 聖保羅一間35㎡緊湊型公寓

這間位於聖保羅聖塞西莉亞社區公寓雖然隻有35平方米,但它配備了一切可能需要的東西,而不會感覺太多。由於空間較小,設計師使用玻璃分隔空間,玻璃讓整個空間明亮又通風,配上大地色的色係,充滿了自然感。

 

12. 高雄90㎡水泥係設計師自住宅兼工作室

該公寓運用了大量水泥材質,從電視牆麵的清水模質感牆,到地板的混合水泥建材,搭配加寬原本窗戶麵積,引入大量采光,同時利用夾膜玻璃處理,即便透光也可兼顧隱私。清爽灰色係的生活氛圍,讓人忽略此處原本是間32年老公寓,百處待修的狀況下,設計師重新規劃了格局,以開放式空間為主,將所有收納貼齊牆麵,並整合多元空間,讓這裏除了是與太太的自宅工作室,更是一狗三貓的玩樂天地。

 

13. 台北一間47㎡現代loft小宅

雖說人類的適應力是很強,我們可以習慣各式各樣的空間,但是麵對多元的生活型態如何提供相對應的機能又兼具美學,是設計師在認識屋主後的疑問。在空間的操作上,首先要處理的是將這麼多元的行為做分析,設計師提出:同構型、時間性、高度性。

 

14. 泰國90㎡簡約loft二人宅

該棟住宅屋主為一對年輕情侶,考慮兩人未來的共居計劃決定改造家人原有住宅,此宅為兩層樓高,上層為 20平、下層 70 平,為了提供更寬敞的活動空間僅保留木地板,其餘牆麵、隔間多拆卸,銜接樓層之樓梯也從直梯改為螺旋樓梯,既能創造視覺焦點,也騰出更充裕的儲物區域。

 

15. 烏克蘭35㎡簡約現代風loft小公寓

這間小公寓位於烏克蘭利沃夫老城區,一對年輕的建築師將它改造成了他們的生活空間。這個35平方米的小型公寓布局遠非理想,但空間有一些獨特的功能,如高高的天花板,還有一個小院。客廳臥室的牆麵裸磚通過刷漆處理,客廳中的大幅落地窗,為室內帶來充足的自然光。

 

16. 巴黎 30㎡木係loft單身女子公寓

設計師在翻新時保留原本木梁,將一樓主要作為收納環境,淺灰磁磚地板鋪排,二樓則包含簡易廚房、沙發及床鋪。經過重新配置後,內部透過木製家具實現屋主希望的多功能性,每平都能得到妥善運用,像是樺木板材櫃體可作為廚房、洗衣、電視櫃及櫥物櫃,機能性非常強大,適合不常下廚但希望有較多儲物空間的屋主。

 

17. 新北70㎡工業風單身男子公寓

紅磚牆與裸露天花鋪排,呈現個性不羈住宅;再搭配充滿複古情調之中島吧台,舊木材質呼應一旁衡梁,加強空間一致調性。這間房的主人職業為工程師,在繁忙工作中,同樣珍惜符合自己品味的居家時光,一開始討論時就提出希望多采用紅磚、水泥與鐵件建材;而設計師在著重風格麵之餘,也將格局做出變化,將公共區域移到中心,加強動線與采光部分,擴大客廳空間、廚房改為開放式區域,生活在其中更為舒適自在。

 

18. 兩款北歐風小清新公寓

此案設計師利用飽含森林氣息的綠色係,公共空間牆麵采用白綠雙色交錯搭配,藉此為居家注入盎然生機。

 

19. 澳洲一間27㎡簡約單身小公寓

較少見一進門就是廚房之格局,但對於小宅來說,地麵反而兼具落塵區功能,不必再騰出空間讓給玄關;廚房還有一特別亮點,即是在此備料時,中間留出開放式區塊讓視野更開闊,更平衡黑色烤漆冷調性。

 

20. 瑞典75㎡挑高純白公寓

該公寓位於瑞典首都斯德哥爾摩近郊,2室1廳1衛適合小家庭居住,配置超長一字型廚房,並加裝多種家電,滿足愛料理媽媽的收納、烹飪需求。因是北歐老公寓常見的挑高格局,照明因此大多使用吊燈,具有聚光增添氣氛的優點,又更加重上方視覺延伸性。

 

21. 這個35㎡小公寓裏有很多隱藏的設計元素

客戶買下的這個墨爾本小公寓原先是沒有廚房的,Tsai Design將其改造成了一個宜居的生活空間。進入小公寓後,可以看見一個定製的牆壁單元,這裏是一個可以懸掛夾克、雨傘、儲鞋和存酒的地方。入口通道通往客廳。

 

22. 台北66㎡小巧簡約風兩人宅

在改造之前,這個66平米的小宅竟然隔出了3間房與一間半衛浴,導致每一處生活空間都倍感狹隘陰暗;而廚房隻能擺放在外陽台,遮擋主要室內自然采光入口。為了重新賦予具有未來性可延伸性的良好生活空間,設計師進行了一場乾坤大挪移,幾乎將所有隔間拆掉之後,先在公領域打造可串聯開放又可各自獨立的彈性格局,接著加大主臥室麵積,基於屋主渴望有個可以泡澡放鬆的浴缸,打造出設備齊全的四件式衛浴,期望屋主今後回到家,都能盡情享受專屬於兩人的小而美、簡而巧生活情境。

 

23. 紐約這個32.5㎡小公寓的功能有它的兩倍大

作為LifeEdited項目的一部分,可持續發展網站Tree Hugger的創始人Graham Hill對紐約Soho社區的公寓進行了大修,旨在展示設計如何充分利用少量空間。Hill認為這個350平方英尺(32.5平方米)的小屋“功能就像它的兩倍”。該住宅被稱為LifeEdited2,擁有兩間配有適應性家具的房間,可以重新組織以實現不同的功能,包括用餐,休息,睡覺和工作。

 

24. 布達佩斯30㎡純白小公寓

這間30平方米純白的小公寓由batlab設計,白色不僅沒有模糊輪廓與邊界,反而還對空間進行了簡單而鮮明的劃分——讓整體空間像是存在於一個打開中的盒子裏一般,尤其是朦朧的半透明窗簾,定義了不同的區域。

 

25. 兩居室改造一居室,香港33平米小公寓改造設計

香港工作室JAAK利用定製的櫥櫃將香港的一套兩居室公寓改造成一個更加開放的住宅。設計師參考了日本家庭的一些做法,為這對夫婦打造了一個明亮靈活的生活空間。他們拆掉了公寓現有的隔斷,重新劃分緊湊的家庭空間,為寬敞的窗戶提供了座位,還有一個像走廊一樣的空間,可以幫助最大限度地利用窗戶的自然光。然後引入定製的木製儲物櫃,以重建家中的分區,家裏唯一的完全封閉的空間是浴室,隱藏在一個秘密門。臥室位於內置桌子後麵,是部分封閉的。

 

26. 73㎡陽光房兩人居

曾從事服裝相關工作的女主人品味絕佳,主動提出許多設計巧思,如地板不同材質的斜線拚接、收納櫃采用有放大效果的鏡麵門板等等,設計師以白色為基調,加入暖色木質元素營造自然氛圍,並利用麵海的優勢完成充分采光,甚至打造出一個寬敞的露台,最終完成兼具機能和景觀、小而美的明亮海景公寓。

 

27. 淡粉色X灰色!法國86㎡單身女子簡約公寓

喜歡粉色係,卻又不願過於甜膩夢幻,此時佐以些許灰色調或許是最好選擇。位於烏克蘭的 Artpartner 設計工作室便將鐵灰色作為主色調,正因中性色能緩解及調和任何色彩,所以即使是浪漫粉色係也能不過於甜美。除了運用色彩帶出室內獨有調性外,裝飾品也是提升氛圍的重要元素,除了利用相片衣服與粉色係呼應外,也把人物表情、手勢帶進空間,不論是廊道上歡愉表情或洗衣間局部手掌特寫,都能賦予室內更多表情並且增添生活感。

 

28. 鮮肉上桌 | 城中村豬肉攤改造設計

大城市裏,超級市場鑲在樓高一層處,成為了美食的集散地卻少了一點人情味,偶爾也懷念菜市場元氣滿滿的叫販聲,吆喝著五花肉還是裏肌肉的豬肉攤,如今長成了全新的麵貌,繼承被人們所熟悉的味道,卻添了更多對質量的執著,年輕的靈魂一點一點注入在粗獷又細膩的鐵件裏、再流淌進討喜的招牌設計、爾後還有石磚和大理石⋯⋯小小的店麵蘊藏夢想的力道,樂豬店鋪,鮮肉上桌。

 

29. 克羅地亞50㎡現代時尚女子單身公寓

這是為一個年輕女子設計的公寓,雖然隻有50平方米,但是功能需求卻很多,希望創造一個舒適的空間兼顧工作室與家。解決方案是創建一個空間變換器,將臥室區變為多功能區。乍看起來,這裏像是一個投影儀的屏幕,實際上是隱藏的墨菲床。

 

30. 荷蘭鹿特丹愛馬仕城廣場一間18㎡小公寓

這間位於荷蘭鹿特丹的愛馬仕城廣場的學生公寓隻有18㎡,公寓完整的配備了衛生間、淋浴間、廚房、餐桌、書桌、沙發、床和儲藏空間。

 

31. 色彩的衝撞:香港46㎡單身住宅

Lim + Lu的新作Twin Peaks位於香港九龍半島的將軍澳,是一間不足50平方米的單身住宅。男主人來自巴黎,是一位特立獨行的時裝設計師。他委托Lim + Lu為其居所進行室內設計,希望以溫暖而鮮活的空間個性,為香港的城市灰度塗抹一道亮色。

 

32. 南京135㎡三房改兩房設計師之家

本項目是一個精裝修住宅,135平三房改為兩房的設計師之家。傳統住宅存在的問題:廚房及衛生間麵積相對較小,客餐廳功能區域劃分過於獨立,對於有孩子的家庭,以及二胎開放後的家庭,功能區應複合疊加及視線通透,便於隨時照看到孩子,空間上增加父母和孩子之間的互動。

 

33. 35㎡巧妙含兩房!意大利收納滿分的海岸公寓

這家意大利室內設計公司 llabb 利用簡約風格、淺色調作為全屋鋪排,橡木色木地板、百合白油漆牆麵,加入公寓周圍大自然環境特性,因為地處海邊,他們將航海元素化身空間亮點。雖然收納部分緊湊,但看起來一點也不擁擠,這都多虧了實用性的收納牆麵。

 

34. 這種綠,可以原諒!

綠色本身是一種中性色,它可暖可寒。夾雜黃色的綠色就會具有暖意,而夾雜藍色的綠色則帶著冷。前者會聯係到陽光下的嫩芽,而後者會浮現出湖水的畫麵。低明度的綠色帶著冷感,色相上稍微增加點黃,最終表現為豆綠色,頗有自然風的感覺;而飽和度、明度略低的綠色,則擁有複古氣質。

 

35. 俄羅斯45㎡簡約現代黑白灰單身公寓

該公寓統一的色調,如黑色烤漆電器櫃、白色係統廚具,輔以木作電視牆、木質家具增加屋內溫度;即使主色調較為冷冽,利用木材呈現整體風格,現代簡約與溫暖和煦,不再是兩種截然不同方向。

 

36. 台北50㎡林間輕工業風兩口之家

設計師采用開放式設計加大活動空間,結合屋主先生喜愛的暗色係、與太太迷戀的淺色共融,打造黑白灰的個性空間。整體連結玄關、客廳、書房與廚房,並運用地麵異材做區別,玄關地麵使用無縫隙的盤多魔作低,搭配圓弧線條接縫客廳的海島型木地板,軟化室內剛硬線條、注入柔和氛圍。窗邊依循兩人喜好加入實木臥榻設計,方便晨起共享天光、晚上靜賞星空,猶如量體內的風景畫框,臥鋪下方串連櫃體可以放置書本、遙控器等對象。

 

37. 30㎡狹窄夾層改造挑高北歐風小宅

這間30 年小公寓空間不大,層高3米6。舊格局原本為夾層設計,但樓梯占據客廳大部分空間,遮蔽采光,且夾層上高的人很難站直,考慮兩人需求空間不必靠夾層補完,設計團隊提出拆除夾層的想法。室內風格選定為屋主偏好的北歐風,在簡潔線條中添加淡彩裝飾,並用明亮的茶幾、單椅、無框畫等彩色配件增加活潑氣氛。

 

38. 公寓翻新之80㎡陰暗老屋變身清新北歐宅

這間屋齡40年的狹長公寓是男主人從小長大的家,為了準備踏入人生下個階段,決定翻新作為婚房,雖然格局沒有太大變動。因預算考慮選擇不更動水電管線,將廚房及浴室留在相同位置,客廳、餐廳、廚房相連,讓陽光得以筆直透進整個起居空間。

 

39. 台北104㎡清新明亮簡約小宅

該項目客戶希望能夠解決內部空間的照明問題,同時為兒童玩具,繪本和大多數野營設備提供足夠的存儲空間。.因此,設計師嚐試使用較小的隔牆來區分空間,使其更加寬敞開放,並將牆壁空間用作儲物櫃,而不影響采光功能。

 

40. 串聯|新北115㎡小躍層四口之家

擅長動線規劃的設計師從住宅探究根本,考慮住宅為小平數的躍層設計,將原本主臥及廚房移位藉此打通空間、創造良好通透的景觀麵,施以木皮板延伸沙發、書桌、餐桌、廚房台麵及天花設計藉以加大活動區域,並降低居住的壓迫感,塑造暢通自如的自由場域,平時家人能坐臥於躺椅、書桌上閱讀書籍或在餐桌上用餐,串連空間的同時,也打造零距離的自然互動。

 

41. 俄羅斯66㎡工業風型男單身公寓

俄羅斯設計師Eugene Shvetsov將這間位於莫斯科的公寓賦予了新麵貌,保留原結構的牆麵設計,輔以新穎極簡的清水模搭配黑牆、黑梁巧妙混搭,利用牆麵美學區隔各區域。

 

42. 白俄羅斯60㎡歐式現代極簡主義公寓設計

ZROBYM Architects最近將Buddha公寓進行了翻新設計,以滿足一對夫婦的要求,他們要求擁有一套現代舒適的住宅,將簡約的設計美學和舒適的感覺結合在一起。翻新的主要空間介入是將公寓的前部區域分成兩個大致相同尺寸的不同區域,以容納起居室和廚房兼餐廳。雖然被隔牆隔開,但兩個房間並未完全分開,隔牆兩側有足夠的空間,可以在兩個空間之間輕鬆移動並確保其視覺連接。

 

43. 懷舊輕工業風!新竹106㎡親子公寓

這間親子公寓的女主人偏好粗獷重工業風,男主人則喜歡利落的現代簡約感,為了取得平衡,以兩人都欣賞的英式元素調和家中調性。起居空間用灰綠作為主要重點色,采光麵整片百葉窗迎入明亮日光,搭配大量棕色木質,為有孩子的家增添暖意。為了裝飾橫越空間的粗大橫梁,以木質板材包裹部分天花板,製造用餐區與客廳上方視角的高低差,增添層次感之餘也為開放空間做出區域劃分。

 

44. 台灣70㎡繽紛馬卡龍色姊妹宅

這間北歐風公寓的屋主是一對感情很好的姐妹,設計師除了依屋主喜好以大量溫潤木皮做鋪陳外,還加入優雅的淺藍色增加視覺重點,客廳主牆、玄關屏風到各種家飾織品都以藍色點綴,並以木作搭配純白完成充裕收納空間,營造出女子家居獨有的溫柔淡雅氛圍。

 

45. 如恩設計:Valextra成都太古裏旗艦店

Valextra成都旗艦店位於成都遠洋太古裏,以“圖書館”為靈感,由Neri & Hu設計。新店外牆采用野獸派風格混凝土,散發粗獷氣息。牆體底部被架空,投射出耀眼燈光,凸顯厚重與空曠的對比。光線從外牆垂直和水平交錯的開口傾瀉而入;拱門洞開,店內光影綽約,讓人不禁想要一探究竟。店內分隔為前後兩個空間,設計各具匠心,分別以“圖書館”和“閱覽室”為主題,營造寧靜奢華的購物氛圍。

 

46. 台北106㎡優雅前衛輕奢時尚宅

這間公寓的屋主是一對經營服飾業的年輕夫妻,對家很有想法,尋覓 3 年才找到依山傍水、風水絕佳能提升事業運,且格局、采光都符合需求的住宅。因為喜歡輕古典風格,又希望保有現代時尚感,向來對流行敏感的女主人希望能打造出心目中具有法式風情、柔美中帶點 chic 的夢想居家。

 

47. 台北105㎡暖木輕工業風單身男子公寓

這間台北30年老宅的屋主是享受自在獨居生活的單身貴族,喜歡帶點工業風的設計,又希望家中保持活力與溫度。設計師以黑框玻璃隔間區隔主臥室和客廳,保留空間通透感,讓臥室吸睛的床頭板將活潑氣氛延伸至客廳。

 

48. 俄羅斯32㎡單身男子簡約公寓

一個人住,真的不用太複雜!該小宅雖采用開放式設計,但巧妙利用了布簾隔開臥室與客廳,同時也做為衣櫃門扇,以減去實體牆麵給人的壓迫感。通過柔軟質地提升小空間舒適度,即使是深灰色調,但在光影照映下凸顯一層層波浪狀折痕,柔化線條使室內不過於冰冷生硬。

 

49. 高雄155㎡美式複古工業風回憶之家

泛黃的老電影海報、旋轉的黑膠、古董相機、悠揚的樂音,這並非複古商店,亦不是工業風的咖啡廳,而是屋主與三隻貓被環繞在收藏興趣中的住家。設計師將新成屋刻意回複到為水泥板模的原始狀態,拋光石英磚也大改造成水泥粉光,空調風管也率性地掛在天花,大膽的注入工業風的元素。

 

50.婺源天淨沙|三百年徽派老式建築改造民宿設計

婺源天淨沙古民居驛站,原身為一座近三百年的徽派老式建築,文化的沉澱和歲月的洗禮令建築本身蘊含優雅風韻,加上設計師的現代思維和精致改造,令其完成了一次貫穿古今的華麗轉身,釋放出自然舒適又平易近人的低調奢華氣質。

 

51.莫斯科33㎡緊湊型多功能公寓 

設計師將這間位於莫斯科老城區公寓改造為符合當代人居住的時尚公寓,廚房、書架、洗衣機、儲物間、抽屜等都井井有條的隱藏在緊湊的居住空間裏。

 

52.王老吉也開線下實體店了

早在17年6月王老吉就在廣州開了全國首家概念店——1828王老吉現泡涼茶。而升級版的王老吉門店在延續了紅色作為主要色調外,加入了標誌的大葫蘆圖形,打造了全新的視覺形象。

 

53.你們喜歡的工業風小宅集合來啦

酷酷的工業風,不隻是男人們的專屬,仙女們也是很喜歡的~今天LOFT中國整理了往期分享的32個工業風住宅案例供大家參考~

 

54.舊招待所改造城市民宿設計之上海渝舍印象

項目地址位於中國上海市複興東路上,毗鄰豫園,故取諧音“渝舍印象”。項目原是一家舊招待所兼棋牌室,隨著時代變遷和城市再造更新,業主希望在加固原有結構的基礎上解構新的民宿含義。原招待所由四棟舊樓組成,樓內空間狹小,光線不足,改造的重點便是空間重構,為原本狹小昏暗的內部空間引入陽光和自然。曆經半年餘,設計師將舊宅解構嫁接成現在的一棟庭院相間、內外相連的複合建築。

 

55.素淨淡雅,大理古城既下山酒店設計

基地位於大理古城葉榆路和人民路交口的南側,由兩戶相鄰的宅基地組成。基地北、西、南三麵都被鄰宅緊緊包裹,基地東側麵朝道路。任務書要求在這塊390平方米的用地上建設一個14間客房的精品酒店和一個麵對公眾開放的咖啡館。

 

56.90㎡中式木質簡約風住宅

設計師以「木舍」為靈感,將大量的木作家具連結純白牆麵,搭配低彩度的沙發、抱枕妝點空間,塑造宛如家中森林的風格,為喜愛純淨木質調的屋主創造富具空氣感的居所。

 

57.如恩新作:陽澄湖別墅設計

別墅的室內設計與建築相聯係,由兩個主要元素組成:底部起伏的磚牆和“漂浮”其上的白盒子。表麵材質的明顯分界也體現了內部空間在公共和私人區域的鮮明界限。

 

58.特拉維夫44㎡兩人一狗的幸福之家

該公寓位於特拉維夫市中心的一棟保護建築內,擁有非常高的天花板。公寓所在的建築建造於1931年,設計者是Dov Hershkowitz。後來由Bar-Orian在2017年重新設計。雖然建築麵積很小,高大的天花板卻帶來寬敞的感覺。公寓約有12平方米是不可移動的隔牆,因此,此次設計最大的挑戰是要盡可能地使剩餘的空間變得開放寬敞。

 

59.微型公寓|倫敦一家19㎡單身公寓

設計團隊將廚房、床和浴室擠進這一19平方米的概念公寓中,並創造了一對具有節省空間細節的膠合板生活單元,將傳統住宅的功能濃縮到一個高效的微型生活空間中。

 

60.烏克蘭165㎡簡約灰係獨棟自然宅

位於烏克蘭老城區的灰色建築,從路口處就能發現它迷人的蹤影,是當地設計團隊Ryntovt Design為一家四口規劃的舒適空間,屋頂采用經久耐用的白鐵,搭配易融於環境的深灰立麵,室內結合木質調家具與建材,營造出令人欣羨的好感居家。

 

61.台北一家四口的83㎡親子宅老屋改造

對於這間30年老宅,設計師調整格局,並把空間一分為二,左邊為休憩為主的主臥室與小孩房,右邊則是開放式寬敞公共區域;同時拆除一房隔間,保留弧形連續性落地窗,引入大量光線,加上開放式規劃,串連廚房、餐廳與客廳,延伸空間視覺效果,讓家看起來不隻83平。

 

62.莫斯科30㎡木作收納兩人宅

俄羅斯工作室 room design buro 以相似概念將電視櫃、衣櫃、儲藏室及床鋪結合成一個大型木作家具,關上時看起來是收納充足的電視櫃,其實內部上層藏有簡單的雙人床,經由側邊木作階梯便可走上床鋪,階梯拉開後則可作為衣櫃。

 

63.布達佩斯76㎡清新工業風三口之家

使用黑框玻璃門、皮質沙發與木質收納櫃定義的工業風居家,帶有粗獷不羈的豪邁感,很難想象是一家三口的溫馨住宅,但經過設計師的巧手打造下,運用分區設計的概念,依照客廳、餐廚區、主臥、小孩房、衛浴等空間功能著手進行,輔以大葉植栽點綴角落,導引清新氣息。

 

64.深圳150㎡喜茶中心書城店店麵設計

在喜茶這個年輕品牌身上,我們看到了關於喝茶這件事的更多可能性。注重傳播效益的網紅風格不再適合日益成熟的品牌,精致度、品質感、及顧客的停留體驗成為新的訴求。店麵應與產品相輔相成,幫助傳達年輕態的茶文化,並提供舒適放鬆的喝茶氛圍。

 

65.空間利用最大化!瑞典47㎡北歐風公寓

想為小宅創造溫度與機能共存的空間,不妨參考這間全麵翻新的瑞典公寓。善用玄關處的芥黃色牆麵吊掛外套,廚房設計成開放式,舍棄不必要的隔間,巧妙以混凝土地板和客廳的人字拚木地板為空間做出區隔,白色櫥櫃內置洗碗機、冰箱,簡化視覺外也提供足夠的收納機能,並以雪鬆木牆麵豐富空間層次;客廳采用鋪設座墊及靠枕的木箱當作沙發,貫徹北歐風回歸簡單的概念。

 

66.全球第二家MUJI HOTEL北京店正式亮相

繼位於深圳的全球首家酒店落地之後,6月30日MUJI HOTEL的第二家門店也正式在北京坊商業街區亮相。MUJI HOTEL新酒店坐落在北京大柵欄地區,即天安門廣場西南側的北京坊,這一帶擁有600 多年曆史,是有著厚重曆史文化底蘊的文化老街區,在未來計劃中,也將發展成融合曆史和現代風格的建築群落,真正為探索「中國式生活體驗」而生。MUJI HOTEL BEIJING更像是一個MUJI的形象綜合店,為深化入住者的品牌體驗,這裏從客房到公共區域都會采用MUJI的產品,酒店共含41間客房,分4層,配套設施包括咖啡廳、酒店、商店、書店、休息室、餐廳、酒吧等。

 

發表回複

您的電子郵箱地址不會被公開。 必填項已用*標注