美好居所不應僅局限於風格,而是將需求轉化為其中的環節,才是真實貼近生活理想模樣,正如钜程空間設計於三重的案例,因年輕夫妻喜愛黑色簡約氛圍,於是團隊運用開放式設計整並公空間,流暢動線讓透亮光感入室,並大膽采用深黑色布局整體一致性,延展公私空間的尺度。材質運用則透過質樸岩板、溫潤胡桃木、剛硬黑鐵、調配獨特風味,以利落垂直水平線條堆砌美學載體,使視感對稱而不紊亂,再用隱藏燈帶使室內滿溢柔和光線,沉穩基調中蘊含多變細節,完美詮釋專屬兩人的自在天地。
項目基本資料
中國台灣省新北市三重/新成屋/室內麵積190平/格局4房2廳3衛/居住人數2大人
<需求>
1.屋主偏好簡約黑色係做為空間主色
2.另辟獨立更衣間,增加儲物空間
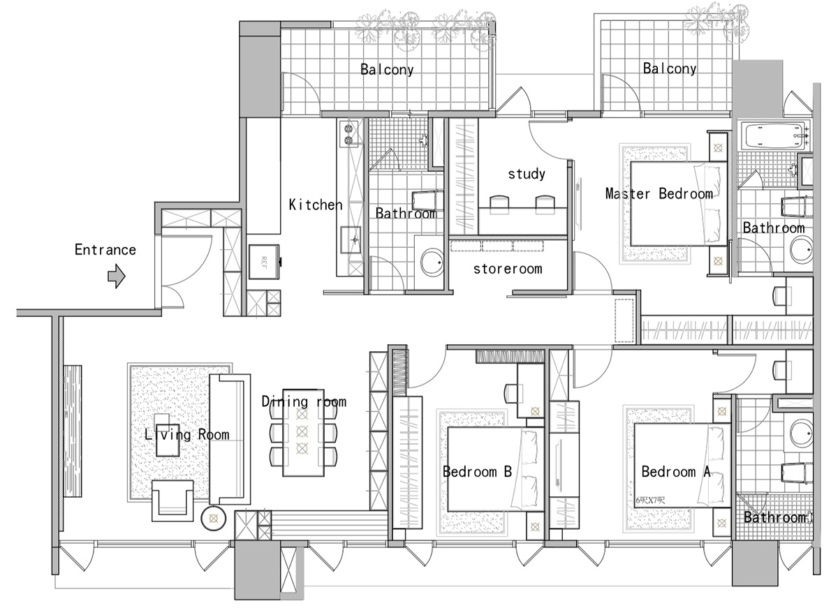
∇ 平麵方案
1.玄關設計
為了滿足屋主鞋子收納,落塵區運用墨黑L字型懸浮落地櫃展開,從玄關一眼望入餐廳背櫃,視線會串連成一幅現代黑色端景,成為銜接入口、客餐之間的橋梁,不僅胡桃木質櫃體凹凸交錯其間,塑造材質轉換的視覺節奏感,並於層櫃下方內置氛圍光帶,透過光源暈染因而不顯笨重壓迫。
2.客廳設計
客廳為夫妻倆生活重心,以開放式手法揉合豐沛采光,藉由木百葉調配溫煦光感,使無彩色基調顯得深邃仍含光影層次。地坪鋪排淺棕超耐磨地板延展溫潤氣息,除了電視背牆,其餘天花、立麵則留白,借此緩和拓采岩板帶來的冷冽感。
此外,為了消化連接客餐之間兩旁側柱,分別包裹深黑塗裝板隱身為展示層櫃,如同牽引為公空間一條隱形分界,形成對稱空間感。
3.餐廚設計
餐廚為了避免油煙沾染,另一方麵考量備料鍋碗瓢盆較不美觀,因此廚房采用黑鐵玻璃拉門築起分隔,上下運用灰玻璃保留光線穿透性,中間穿插半透直條玻璃塑造若隱若現意象,使視覺上能夠無礙遮掩。
懸空端景櫃連結餐廳與臥榻,藉由律動胡桃木鏤空方櫃,舒緩大麵積櫃體沉重感,中間則采用質樸麻料繃布牆,替冷硬黑鐵層板勾勒柔軟表情,其間妝點雲理大理石台麵,拚接冷暖異材質彰顯鮮明對比,讓屋主能擺放心愛的家飾品。
窗邊從側柱延伸帶有灰麻軟墊的臥榻,使女主人能舒適於此與日光共讀,跟寵物一起嬉戲同樂,將過度空間完美融入餐廳。
4.主臥/次臥設計
全室延伸深色元素為軸心,電視牆采用岩板粗獷紋理滿布立麵,將通往書房門片包裹胡桃木滾邊,選擇自動回歸門使內外通行無阻,團隊考量書房門造成視覺不對稱,於另一端刻意仿製相同門框,借此平衡左右側比重,塑成一道靜謐框景。
床頭材質則劃分為二,與藕灰窗簾設定為同等高度,使視覺更清爽利落。為了將女主人盥洗習慣植入動線配置,運用玻璃拉門做為區隔,不僅保有光線穿透性,亦可增添更衣著裝時隱私,通往衛浴廊道右端鋪陳係統櫃,大麵積鏡麵後方崁上暖黃照明,拓展輕透空間感。
次臥以淺灰進口係統櫃築起清爽氛圍,相較主臥則訴求舒適為主,床頭選配灰藍色工業吊燈,點綴紅色燈線活潑整體基調,入睡時即能伴隨寬敞視野放鬆休憩。
<總體規劃>
5.動線規劃
由於室內擁有充沛采光,因此配置著重開放式設計,讓光線能自由穿梭流動,集聚情感客餐廳則弱化空間劃分,僅以家具界定,輔用霧透玻璃滑門稍作隔閡,圍塑明亮流暢的居家動線。
6.收納規劃
因應屋主需求特意規劃獨立更衣間以外,其他皆運用分區規劃,公空間即配置懸空收納櫃、影視電器櫃、兩側展示書櫃、餐廳端景櫃滿足各區需求;私空間於臥室築起係統收納櫃,比如主臥通往衛浴廊道的更衣櫃,次臥整麵大型儲物櫃、床頭兩側抽屜,藉由門扇鏤空、開合增添變化性。
7.建材挑選
胡桃木皮染色、石材、拓采岩板、鐵件、超耐磨木地板、壁布、深黑噴漆板
8.家具配置
配合屋主要求的簡約風,家具多以冷色、大地色係為軸心,藉由量身訂製家具提升整體一致性。比如客製沙發呼應臥榻軟墊布料、餐廳主角黑棕色餐桌、臥室麻料拚接窗簾等,透過異材質交疊碰撞新火花,烘托黑色簡約中的獨特品味。
9.色彩配置
全室依循沉穩黑色係展開,多以胡桃木交疊深色噴漆板圍塑低調氣息,並於其中妝點藕灰係統櫃、黃銅燈具、灰藍紅線工業吊燈活潑冷色調,再輔用織紋凹凸變化畫龍點睛,襯出空間張力。
10.燈光設計
鑒於用色較深,除了天花投射燈照明以外,團隊特意於懸空櫃體下方隱藏環伺燈帶,提增整體深遠明亮感,使暖黃光線灑落各邊角,再透過重點式布局如餐廳現代幾何燈具、床頭黃銅輔助吊燈、臥榻圓壁燈等,給予空間豐富光影層次。
完整項目信息
項目名稱:190㎡線性美學框構品味居所
項目位置:中國台灣新北
項目類型:住宅空間/現代風格
建築麵積:190平方米
完成年份:2018
主要建材:胡桃木皮染色、石材、拓采岩板、鐵件、超耐磨木地板、壁布、深黑噴漆板
建築公司:钜程空間設計
攝影師:钜程空間設計































