Cercal住宅是位於葡萄牙Cercal do Alentejo的極簡主義住宅,由Atelier Data設計。建築師主要關心的是建築與周圍景觀的關係。房子坐落在一個斜坡上,附近有一條河。因此,設計師在自然光、視覺環境、建築的可行性方麵和對住宅的朝向非常敏感。他們想要保持一個傳統的結構原型,作為新空間詮釋的基礎。
Cercal House is a minimalist residence located in Cercal do Alentejo, Portugal, designed by Atelier Data. The architects’ main concern was the building’s relationship with the surrounding landscape. The home is situated on a sloped terrain with a nearby river.As such, the designers were sensitive to the home’s orientation in regards to natural light, visual environment, and feasibility of construction. They wanted to maintain a traditional structural archetype that would serve as a foundation for new spatial interpretations.
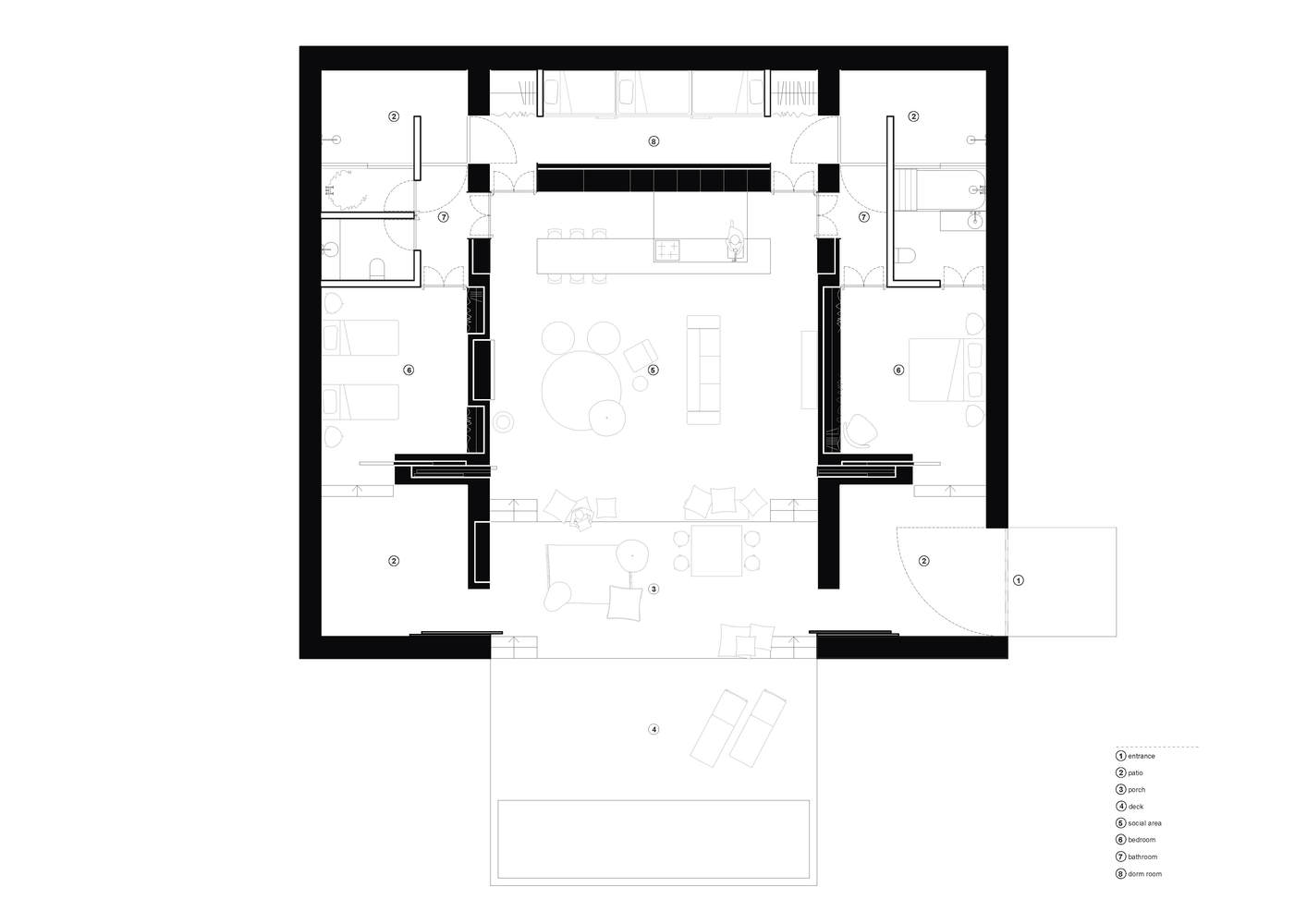
天井的引入不僅提供了更多的自然光,而且本質上是可使用的外部空間光的兩倍。社交區域集中在住宅內部,並通過一係列滑動門窗無縫連接室內外。在Cercal House中,時間和空間不是獨立的維度,而是相互依存的。有與自然周期相對應的時間,有居住在這個地方的人的時間,也有被它塑造和影響的空間。
Patios were introduced to not only provide more natural light, but essentially double the usable exterior space. The social areas are centralized within the home, and seamlessly connect the interior with the outside through a series of sliding partitions.In Cercal House time and space are not separate dimensions but rather interdependent. There is the time that corresponds to the cycles of nature, the time of who inhabits the place and there is the space that is shaped and influenced by it.
房子位於Alentejo地區也是一個挑戰。正如Miguel Torga所說,Alentejo代表了“我們能渴望的最大和最小的東西:無限夢想的荒野和貧瘠土地的現實。因此,Cercal住宅是一個探索一個新的時間和空間的可能性方案,這個空間也被住宅的新穎性標記和改變,希望最終在人類和景觀之間建立一個新的承諾。
Alentejo – the place where the house is located – is also a challenge. As Miguel Torga says, Alentejo represents “the maximum and the minimum we can aspire to: the wilderness of an infinite dream and the reality of an exhausted soil.”The Cercal House is thus a proposal that explores the possibilities of a new time and space in a place also marked and altered by the novelty of the house, wishing ultimately to build a renewed commitment between man and landscape.
該住宅位於一個地勢上,被植入河流劃分的斜坡中,旁邊是一個舊建築的遺跡。在尋找正確的位置和太陽方向的同時,在體量測量中尋找與坡度的最佳位置,以及對最佳視覺視野的追求,綜合了主要的幹預策略指導方針。此外,該項目設法滿足我們強調的其他原則:呼籲傳統的住宅原型,作為一種結構,承載著堅實的記憶,並作為新的正式操作和對空間解釋;引入天井作為增強光線的元素和在室內的反射,使外部空間加倍。功能項目分布將社交區域視為住宅的中心,圍繞著它組織了更多受空間限製的項目。
Located on a terrain whose halfpipe morphology is motivated by a water line that crosses it, the house is implanted in one of the slopes that the river divides, next to the remains of an old construction.The search for the right position and solar orientation, in parallel with a volumetry that searches for a skillful dialogue with the slope and also the pursuit of the best visual horizon, synthesize the main intervention strategy guidelines.In addition, the project sought to meet other principles of which we highlight:Appeal to the traditional house archetype as a structure tha carries a solid memory and as a support for new formal manipulations and spatial interpretations;Introduction of patios as light-enhancing element and reflection in the interior, doubling the exterior spaces with a more intimate vocation; Functional program distribution considers the social area as the centre of the house, around wich is organized the remaining program of more restricted acess.
通過延伸屋頂和突出一個社交區域的平台加強了室內外關係 ,頂部是一個水平麵——一個建立平台邊界的水池。通過門廊引入過渡空間,在室內外空間之間進行協調。這個空間通過引入滑動門來加強,擴展了限製房屋的邊界和地平線;使用當地的建築係統和傳統材料,重新以現代的邏輯解釋。牆壁和地板普遍使用白色,與“Alentejo藍”形成對比,“Alentejo藍”作為住宅的入口門用於空間過渡和提亮光線。
Intensification of the relationship between interior and exterior by extending the roof and projecting a platform that comes from the social area and is topped by a water plan – a tank that builds the platform boundary; Mediation between interior and exterior space through the introduction of a transition space – the porch. This space is reinforced by the introduction of sliding panels that expando r confine the house boundaries and the horizon; The use of local constructive systems and traditional materials reinterpreted in the logic of a contemporary
Prevailing use of white color in walls and floors in contrast to the “Alentejo blue” used in transitory and light elements as the access door to the house.
完整項目信息
項目名稱:Cercal House
項目位置:葡萄牙
項目類型:住宅空間/私人住宅
完成時間:2018
項目麵積:250平方米
建築設計:Atelier Data
設計團隊:Filipe Rodrigues, Inês Vicente, Marta Frazão, Filipa Neiva, Joana Matos, Ricardo Carvalho
攝影:Richard John Seymour





























