LOFT中國感謝來自 MOC DESIGN OFFICE 的餐飲項目案例分享:
水墨印象的立體化呈現
Ink and Wash Impression in Dimension
飲茶自從漢代出現以來,時至今日其作為傳統文化之一依舊在中國人的生活中扮演著極為重要的角色。從傳統的茶道到年輕人喜愛的新式茶飲“喜茶”, MOC DESIGN從這些變化中看到傳統文化隨著時代推進而催生出新的形式的更多可能。
As a traditional culture since Han Dynasty, tea drinking still plays an important part in Chinese people’s daily life. From the traditional Chinese tea ceremony to young people’s favorite tea drink brand HEYTEA, MOC DESIGN witnessed that traditional culture had stimulated many new forms as the advancement of the time.
在這個茶飲空間中,MOC DESIGN通過將中國傳統書法藝術用年輕人更關注的現代手段重構,探索傳統書法藝術在新時代語境下的可能性,從而達成空間設計與喜茶在品牌精神的高度契合。
In this tea drinking space, a modern approach, which is more related to young people, is employed to reshape Chinese traditional calligraphy and explore the possibility of calligraphy in the context of new era, achieving the high-level integration between the space design and HEYTEA’s brand spirit.
∇ 外立麵,Facade
∇ 透過玻璃幕牆看到室內的裝置 Glass facade to see through the indoor installation
茶助文人思。
Tea has inspired the literati for thousands of years.
茶是中國古代文人交流時必不可少的飲品,亦是揮灑水墨之際,激發靈感的妙物。
中國的書法藝術以水和墨為介質,講究的是在簡單的線條中傳遞豐富的精神內核,正如茶一般,總能品出不同的況味。
Tea is not only an essential drink in the social occasions among Chinese ancient intellectuals, but also the spontaneous inspiration for ink and wash improvisation.
The medium for Chinese art of calligraphy is water and ink and it is particular about the rich spiritual core delivered in the simple lines, just like tea offering different tastes.
書法的基本元素是筆觸。落墨或幹或濕、或濃或淡、或遒勁或悠揚,期間蘊含無盡的內涵。
The basic element of calligraphy is stroke. The stroke, either dry or wet, strong or light, steep or gentle, carries significant meanings.
MOC DESIGN將書法藝術中水墨筆觸的印象,以藝術裝置的形式在空間中立體化呈現。
The design team vividly transformed ink-wash strokes in calligraphy into the art installation in the space.
白色的空間為紙,懸浮於空間中的黑色竹子構成的藝術裝置,如同在三維空間中落筆揮毫。
With the white space as paper, the black bamboos are hung up in the air, just like the brush touch in a three-dimensional space.
∇ 裝置細節,Art Installation Details
∇ 黑色竹子構成的筆觸藝術裝置,“懸浮”於白色的空間中Black bamboos consisting of the brush touch installation and hanging in the white space
∇ 通過竹子的疏密排列,構成濃淡相宜的立體筆觸 The density interaction and disposition of the bamboos construct the color shades of the stroke.
∇ 設計細節,Design Details
隨著時代不斷前行,當新式茶飲延續了茶文化的生命,MOC DESIGN也與喜茶一道探尋傳統文化與當下年輕人連接的更多可能。
As time goes on, new-style tea drinking extends the life of tea culture. Together with HEYTEA, MOC DESIGN worked to explore more possibilities to connect the traditional culture with young generations.
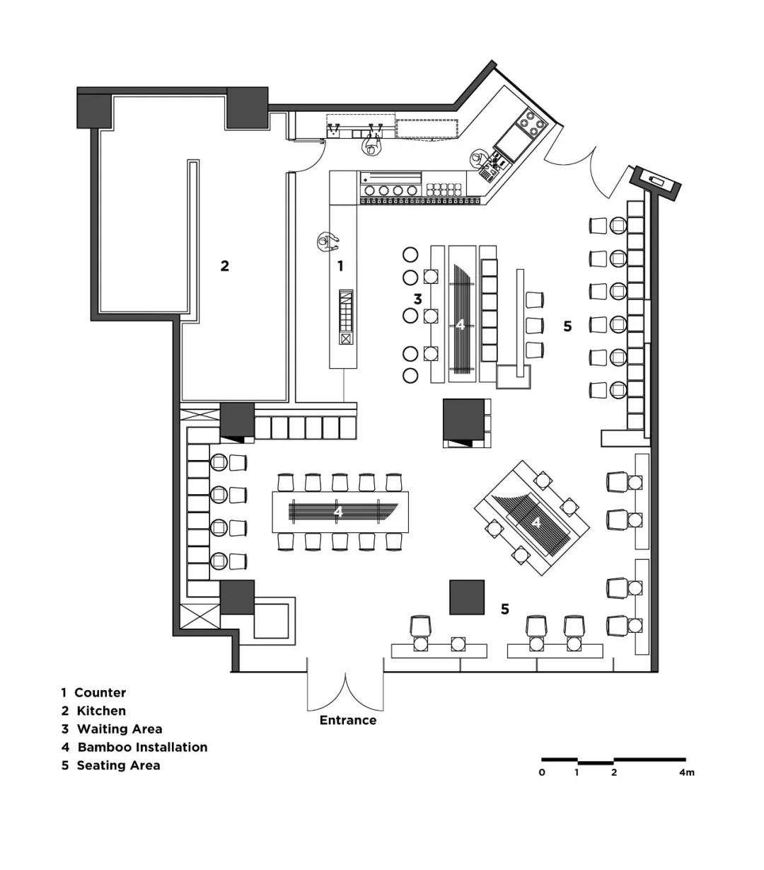
∇ 平麵圖 Plan
∇ 軸測圖 Axonometric
∇ 裝置概念演化說明,Evolution of the Installation Concept
∇ 牆麵設計概念演化,Evolution of the Wall Design Concept
完整項目信息
項目名稱:喜茶鄭州正弘城茶空間店
設計單位: MOC DESIGN OFFICE (www.moc-office.com)
主創設計師:吳岫微,梁寧森
設計周期:2018.8-2018.9
竣工:2018.11
項目地址:鄭州花園路與東風路交彙處正弘城一層
麵積:250 m2
主材:白色鋁單板,竹子,鏡麵不鏽鋼
業主:喜茶
裝置製作:藝和園
攝影師:直譯建築攝影
Project Name: HEYTEA at Zhengzhou Grand Emporium
Design Company: MOC DESIGN OFFICE (www.moc-office.com)
Chief Designers: Vivi Wu, Sam Liang
Design Phase: August 2018 – September 2018
Completion: November 2018
Location: Zhengzhou, China
Area: 250 m2
Materials: White lacquered aluminum sheet / Bamboo / Mirrored stainless steel
Client: HEYTEA
Installation Production: YOHO Art Studio
Photography: ArchiTranslator































