以公共劇場為引,構築文化型共享社區
覔書店是深圳友誼書城旗下的複合型文化書店品牌。覔,通古文“覓”,取探索、尋覓之意。2014年,第一家覔書店在深圳紅山九方開業。經過近10年的探索和發展,2023年覔書店邀請MOC團隊共同創作一家裏程碑式的旗艦店,在總結過往的同時也開啟對於品牌定位和空間形象的全新詮釋和探索。
∇ 入口
“我們希望這裏相比於傳統書店或者僅僅把書店場景作為氛圍營造的商業空間,
它更回歸本質,是一個充滿活力的社區中心。”
——楊振鈺
項目位於廣州黃埔,定位於文化型共享社區。設計師從城市曆史中吸取靈感,從“絲綢之路”的在地文化脈絡中,提取航船的風帆、南海古厝群等為元素,將現代美學與複合式的社區文化生活結合,將圖書閱讀、劇場、學習、兒童繪本、咖啡、藝文活動、展覽、交流等功能融合其中,旨在為周邊的居民提供一個舒適、輕鬆的人文社區。
∇ 入口處的主題展示區與通道
01 文化劇場
隨著時代的發展,知識傳播的媒介不僅局限於書本,傳統書店“知識交換”訴求變得更加複合,從單一的人與書的關係,到人與人的知識交換,空間的功能也對應的需要更加多元。
基於這種思考,設計師將兩層的場地中部打通,形成一個開敞通透的的通高中庭,使兩層空間更加流暢開闊。大麵積階梯式的座位的置入構建了一個開放的公共活動空間,因此也重構了兩層空間的交通動線與形式。
∇ 兩層通高的公共劇場,頂部造型取自航船的風帆為元素,回應在地文化
∇ 另一側設置連通二層的樓梯,保證了公共活動時的交通動線互不影響
在日常情況下,大階梯是一個閱讀區,是人流彙聚和交流的場所,根據活動類型的不同,還可以作為研學會、講座等公共活動的場所。
∇ 從公共階梯座位看向劇場舞台
在階梯上至二層的位置,一個懸挑的“紅色盒子”被安置在此處,盒子裏布置了幾個不同尺度的房間,麵向劇場舞台方向,作為劇場功能的補充;落地玻璃的展示麵則提示人們在這裏“交流討論”是被鼓勵的,另一方麵則保證了這裏與公共空間的聲音不會相互幹擾。
∇ 麵向劇場舞台的“紅色盒子”
∇ 二層“紅色盒子”入口
∇ 劇場與“紅色盒子”關係說明
“紅色盒子”的下方形成的小空間,則自然的形成了開放式的小型協作討論區。圍繞著劇場階梯組織的不同的交流協作區,讓交流的方式更加的多樣化。
劇場區域通高的空間結構,設計師通過連續的完整的書櫃矮牆完成圖書氛圍的橫向延續和銜接,同時視覺縱線上也達成了不間斷的效果。前矮後高的書櫃格局,也使圖書的呈現更具空間感。
∇ 從二層看向公共劇場
空間的頂部,設計師從城市曆史中吸取靈感,在“海上絲綢之路”的在地文化脈絡中,提取航船的風帆為元素,在空間頂部鋪陳開來,回應城市在地性文化。
02 動與靜的平衡——各得其所的共享社區
書店是一座城市精神的見證,也是文化成長的庇護所。這裏不僅吸引愛書之人,更是兼容各色人群文化需求的場所。
設計師以中間的文化劇場和公共閱讀區為界,進行動靜布局考量,向左規劃為兒童區和 “小小覔”繪本館,向右則規劃休閑社交功能的”覔咖啡”,以及咖啡上方的獨立自習室和沉浸式劇場。隨著動線的深入,實現從喧囂到沉靜的轉變,也讓不同的人群都能在這裏找到適合自己的空間。
∇ 覔咖啡入口,取自古厝屋頂的瓦片,以現代的語言得以轉譯呈現
“覔咖啡”作為社交空間被規劃在劇場的一側,設計師以傳統古厝群的聚合院落為線索展開布局。
抽象形態的屋厝框架構成錯落有致的微型院落組合,同時也隨之自然的劃分出屋舍與通道。屋舍融合座位和景觀,讓人與空間互為流轉的風景。
劇場的另一側是兒童區,這裏原本是室外階梯的底部空間,活潑的空間色彩和白色的喇叭形盒子的置入突出了傾斜頂麵並創造出趣味性的空間體驗。白盒子裏的樓梯連通兒童區與兒童繪本館,讓相對熱鬧的兒童區上下貫通,並與其他安靜的閱讀區在動線上各自獨立。
∇ 一層兒童區的白色喇叭形盒子
沿著喇叭盒子的樓梯進入二層的繪本館,色彩也隨之在統一的色調下豐富起來。在色彩的變奏之下,書架放置著分齡的兒童繪本,穿插其中的開放座位讓家長與孩子在其中共渡美好的親子閱讀時光。
∇ 二層的兒童區入口
穿過挑空中庭走廊的公共閱讀區,可供人們獨立學習的自習室和沉浸式劇場位於空間安靜的一角。
∇ 公共閱讀區與紅色盒子
∇ 自習室入口
人們在自習室可以安靜的學習和思考,抬眼望去的城市綠化也能在掩卷之間放鬆心情。
在這次從傳統的商業書店到文化型共享社區的設計實踐中,設計團隊在開放的基礎上,以更加現代包容的方式,打造複合型的城市文化空間,為城市帶來更多活力。
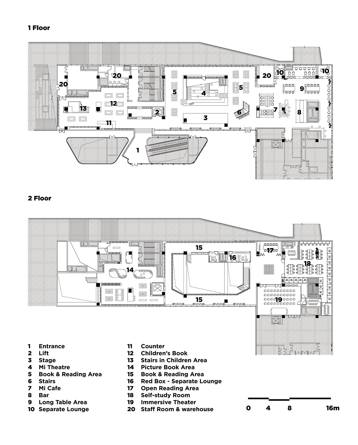
∇ 平麵圖
項目信息
項目名稱:覔書店,廣州黃埔大悅彙項目
設計單位:MOC DESIGN OFFICE
主持設計:楊振鈺,梁寧森
設計管理:吳岫微
設計團隊:梁秋紅,吳峰,吳心鴻
設計周期:2023.1-2023.3
竣工:2023.7
項目地址:廣州市黃埔區大悅彙4層
麵積:2470㎡
主材:人造石,木飾麵,木紋貼膜,瓷磚,地毯,烤漆板,肌理漆
業主:覔書店
攝影:聶曉聰





































