威尼斯Interior DR住宅是根據客戶的功能需求和審美趣味進行設計的,空間采用了落葉鬆木材和保留了原始結構牆,並運用了簡單優雅的材料和色調。
Interior design project for a rural house in the Venetian countryside. The project, designed for the functional needs and aesthetic tastes of the client, as the larch beams and the original structural walls in stone and brick, with the use of simple and elegant materials and shades.
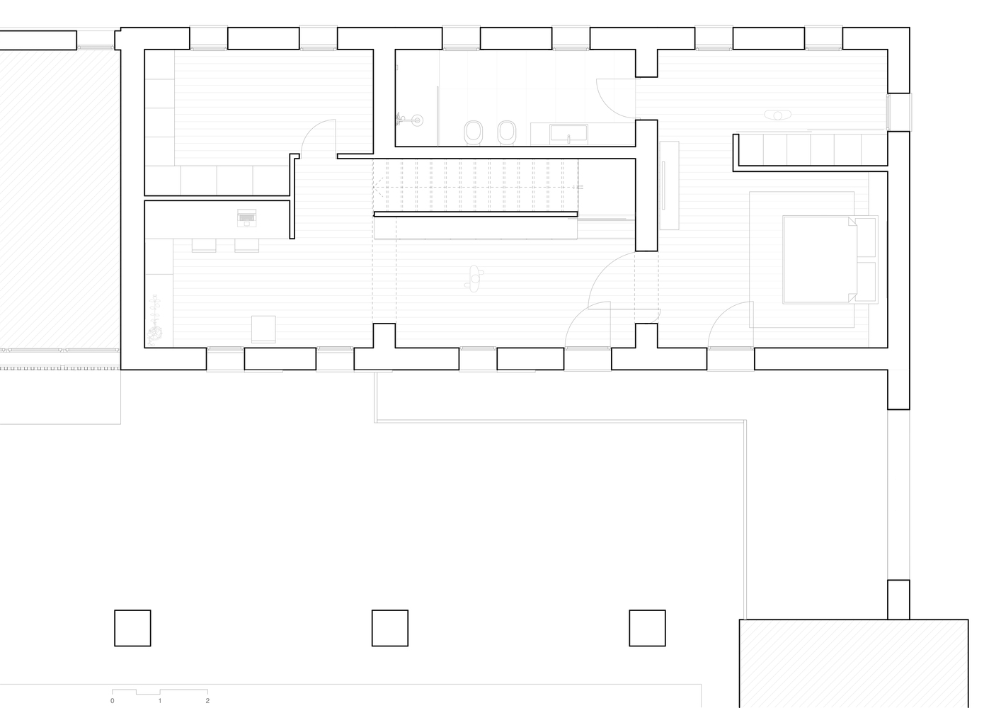
建築的入口空間可以看見玄關,充當一個過渡空間,將客廳與廚房分隔開來,並通過木製樓梯進入臥室。
The entrance space of the building overlooks a porch and acts as a filter that separates the living room from the kitchen and allows access to the sleeping area via the wooden staircase.
空間顏色和材料等新元素的運用使空間更加明亮,鋪設整個底層的鋪砌表麵由拋光的石材製成。餐廳區域的特點是有著大型的白色廚房和堅實的橡木桌子。
The colors and materials used for the new elements are reduced to an essential vocabulary and specially designed to make the space bright. The paving surface, which extends across the entire ground floor is made of polished oriental stone .The dining / kitchen area is characterized by the large white kitchen and the solid oak table.
客廳的特點是電視背景板由led燈照亮,給房間帶來柔和和間接的光源。背景板沿著整個牆麵放置,而長長的混凝土板充當了電視底座。
The living room is characterized by a background of OSB panels backlit by a led strip that gives a soft and indirect light to the room. These panels, placed along the entire length of the historic stone wall, rest on the long concrete shelf that acts as a TV base.
住宅的上層是主臥室,浴室覆蓋著灰色的石材,地板上也使用了相同的材料,使空間產生視覺統一的效果。
On the upper floor there is the master bedroom where the palette of the materials used on the ground floor is resumed, while the bathroom is covered with gray stone effect stoneware, also used on the floor to obtain a continuity of materials.
完整項目信息
項目名稱:Interior DR
項目位置:意大利威尼斯
項目類型:住宅空間/現代風格
完成時間:2019
項目麵積:250平方米
設計公司:Didonè Comacchio Architects
攝影:Alberto Sinigaglia






















