Lanaudière住宅是20世紀早期蒙特利爾高原皇家住宅區的一個典型的石頭複式建築,由建築師Michael Godmer改造設計。項目最重要的是,必須保存建築的記憶和曆史,因為客戶從她母親那裏繼承了房子。選擇了一個簡單的方法,使Michael Godmer能夠最大限度地利用現有的地板空間,這樣在他們30多歲的時候,主人和他們的兩隻狗可以在未來的許多年裏享受這個空間。
該項目首先進行了磋商,旨在解決一些設計問題,如最大限度地儲存或更新廚房和室內家具。客戶們還想要更多的空間,並夢想著把房子向外開放。最初的設想是挖掘地下室和修建一條通道,由於結構原因,這種設想被認為過於複雜和昂貴。為了簡化工作,決定將二樓單位納入項目。因此,建築物的總麵積被最大化,滿足了最初簡報的要求,建築物的限製也得到了充分的尊重。
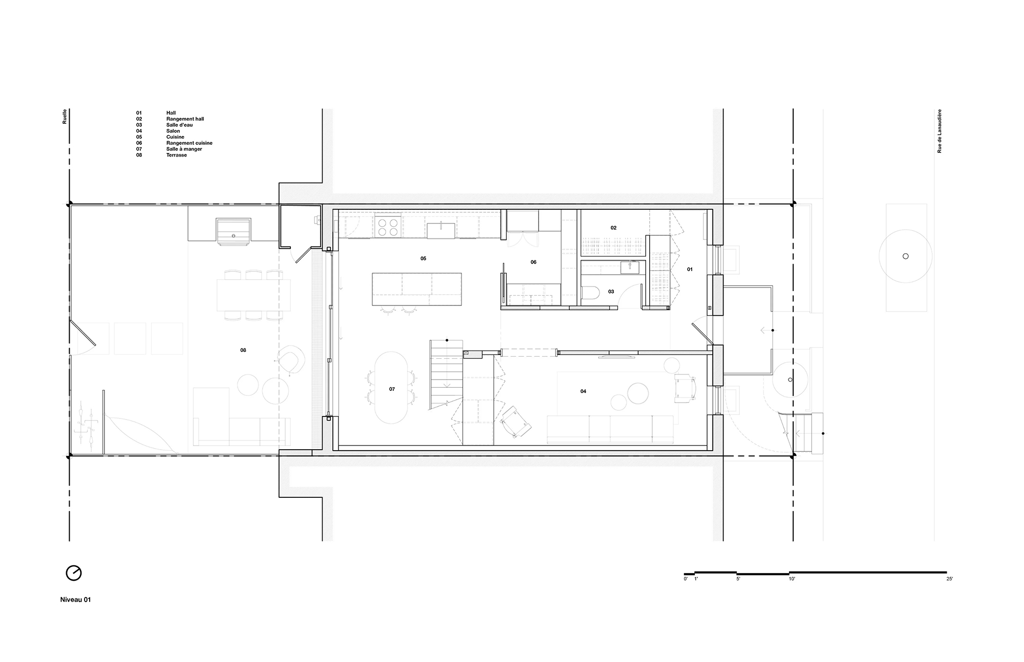
新的底層布局保留了原來的結構框架,同時創造了兩個不同的空間:入口附近的儲藏室、一個化妝室和一個二級廚房,一個房間和另一個客廳。新的布局還包括一個中央走廊,呼應原來的樓層布局。有限的開口以白橡木為背景,與多種深綠色的石灰形成對比,並提供了一些空間分離。色彩、質地和材料對比鮮明,整個空間和諧地融合在一起,確保了與剩餘的原始建築元素的平衡。
∇ 平麵圖
版權聲明:本站所有文章除投稿授權發布外,其他文字內容均為原創,享有著作權保護,未經許可不得以任何形式進行轉載(包括且不限於:媒體、網站、公眾號等)。所有項目照片/設計圖形版權歸原作者所有。本站部分內容源自網絡公開資源或用戶分享,如若侵犯了原作者的合法權益,可聯係我們進行處理。






























