總部位於巴塞羅那和墨西哥城的cadaval & sola-morales公司將一個以前的衛生紙倉庫改造成了一個現代化的生活工作空間。該建築位於巴塞羅那充滿活力的el poblenou區,最初是在19世紀晚期作為劇院建造的。通過利用該結構的規模和規模,該項目旨在恢複和利用建築物原始功能帶來的空間品質。
barcelona- and mexico city-based firm cadaval & solà-morales has converted a former toilet paper warehouse into a contemporary live-work space. located within barcelona’s vibrant el poblenou district, the building was originally constructed as a theater in the late 19th century. by exploiting the structure’s scale and size, the project seeks to recover and capitalize on the spatial qualities present as a result of the building’s original function.
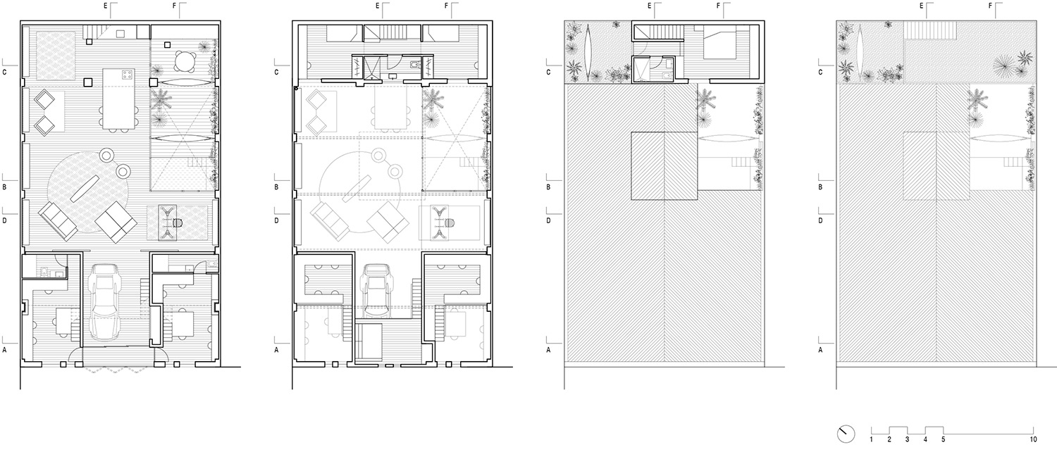
業主和客人通過一個入口進入住宅,在那裏,一輛古典汽車作為雕塑藝術作品出現。在這裏,休息室、餐廳、廚房和書房共享一個單獨的空間。通過拆除倉庫屋頂的一部分,設計團隊創建了一個庭院,作為主要生活區的戶外延伸。庭院為用餐提供了一個被植被環繞的環境。與此同時,一個小遊泳池提供了一個地方冷卻和放鬆後,運動或工作。這個空間也確保了房子的其餘部分是自然照明和通風的。
residents and guests access the house through an entrance where a classic car appears as a piece of sculptural art. the home is articulated around a vast central space that has been programed for loft-like use. here, the lounge, dining room, kitchen, and study share a single space.by removing part of the warehouse’s roof, cadaval & solà-morales created a patio that serves as an outdoor extension of the main living area. the patio offers a setting for meals surrounded by vegetation. meanwhile, a small swimming pool provides a place to cool off and unwind after exercise or work. this void also ensures that the rest of the home is naturally illuminated and ventilated.
兩個工作室位於住宅入口上方,由兩個與街道建立直接關係的大窗戶照亮。兩間工作室都占據了一層夾層,一層有廚房和浴室。臥室位於另一端,一樓有兩間臥室,二樓還有一間帶露台的臥室。
illuminated by two large windows that establish a direct relationship with the street, two work studios are positioned above the entrance to the house. both studios occupy a mezzanine level with an area for a kitchen and a bathroom on the ground floor. the sleeping quarters are found at the opposite end of the property, with two bedrooms on the first floor, and another, with an adjoining terrace, situated on the level above.
cadaval & sola-morales事務所解釋說:“該項目試圖最大限度地尊重現有倉庫的原始條件。它的結構沒有改變,隻是加強了。它的牆壁並沒有被拆除,隻是被修複了,少數新的建築元素在不顯著影響原有建築的情況下被添加進來。其理念是在不影響現有建築的前提下建造。他明白,隨著時間的推移,劇院肯定會有另一種用途和另一種生活。”
‘the project tries to respect to the maximum the original condition of the existing warehouse,’ explains cadaval & solà-morales. ‘its structure is not modified, only reinforced. its walls are not demolished just restored and the few new architectural elements that are added do so without significantly affecting the original building. the idea is to built without affecting the existing. understanding that over time the theater will surely have another use and another life.’
∇ 平麵圖 plan
∇ 立麵圖&剖麵圖 elevation§ion
完整項目信息
項目名稱:the theatre
項目位置:西班牙巴塞羅那
項目類型:建築改造/loft公寓
完成時間:2019
項目麵積:330平方米
設計公司:cadaval & solà-morales
攝影:sandra pereznieto
name: the theatre
architect: cadaval & solà-morales
project: eduardo cadaval & clara solà-morales
structural engineering: carmela torró micó
location: barcelona
area: 330 sqm (3,552 sqf)
date: 2019
photography: sandra pereznieto



























評論(1)
好