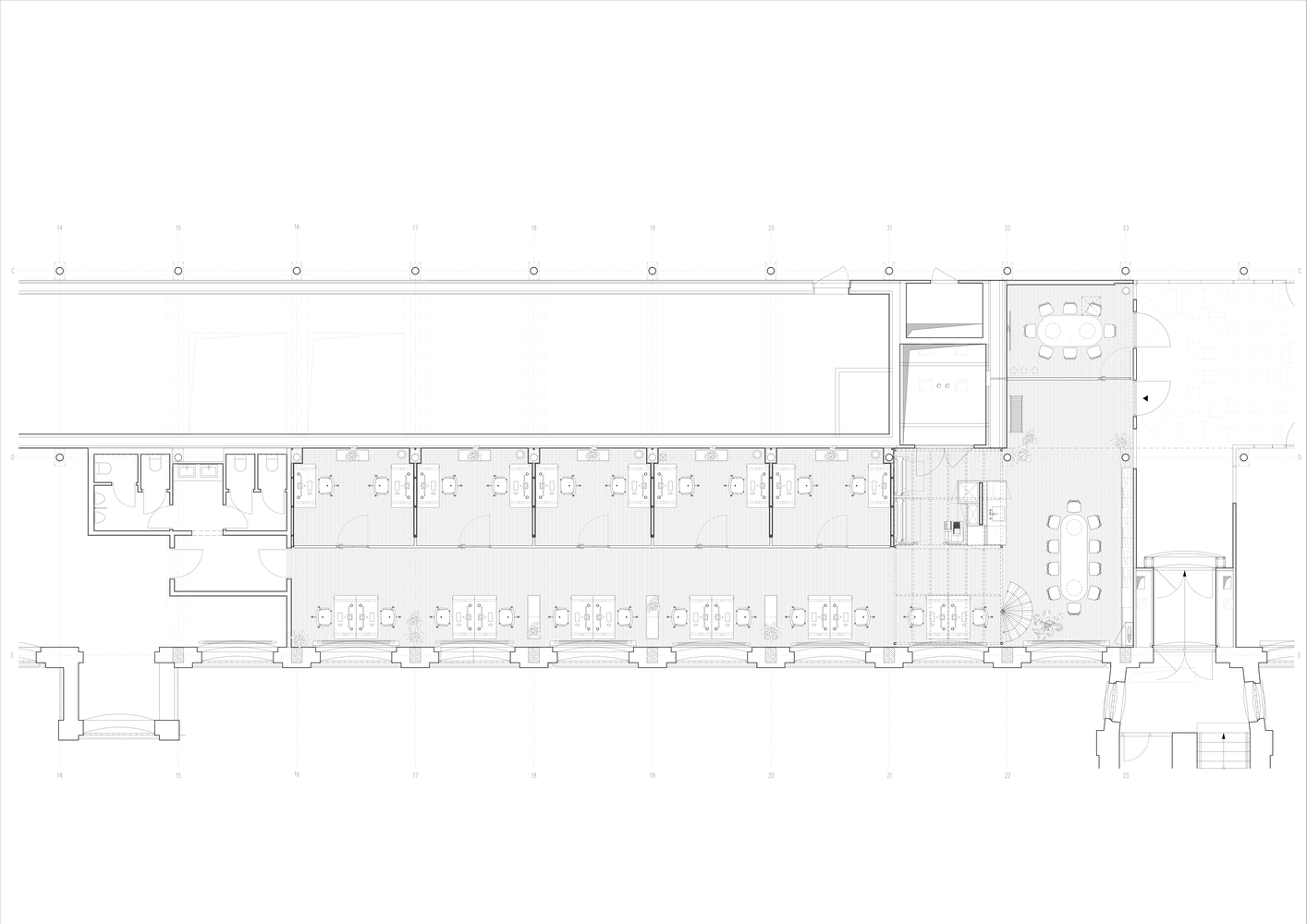
這個概念就是創造一個”辦公機器”,插入舊工廠的空間。布局明顯分為兩個不同但相互關聯的單元。入口區域、會議室和普通餐桌由一個放鬆的閣樓與純辦公室分開。在閣樓下麵是一個多功能的盒子,它集成了一個小廚房和一個技術區域。
閣樓不僅是業務布局的中心,也是員工工作生活的中心。它將工作和放鬆的世界聯係在一起,隻留下很小但有效的足跡。閣樓的上升生活區提供了座位和視野。通過一個金屬螺旋樓梯進入。
在閣樓後麵,純辦公室延伸到空間的後麵。這包括大窗戶自由放置的桌子、走廊、以及一個由五個辦公室。整體設計的材料混合既反映了客戶的技術重點,也反映了1900年建築的工業特點。整個地板是由木拚花,插入的結構元素是金屬表麵和玻璃隔板的組合。
∇ 軸測圖
∇ 平麵圖
版權聲明:本站所有文章除投稿授權發布外,其他文字內容均為原創,享有著作權保護,未經許可不得以任何形式進行轉載(包括且不限於:媒體、網站、公眾號等)。所有項目照片/設計圖形版權歸原作者所有。本站部分內容源自網絡公開資源或用戶分享,如若侵犯了原作者的合法權益,可聯係我們進行處理。
























