E C A和E G A設計了一家位於阿根廷布埃諾艾利斯的Community廣告公司。團隊將這棟建築的底層和上麵的一層進行設計,外立麵用采用黑色金屬板,將其改造成一個黑色內斂的盒子,其唯一的“窗戶”是通往外麵街道的玻璃通道門。空間也可作為一個小型靈活的展覽空間,內部的作品、雕塑和圖形藝術作品等定期更換。
Estudio Carranza Arquitectura with ESTUDIO GALVEZ AUTUNNO designed the Community offices, an advertising agency located in Bueno Aires, Argentina.
The building, with a ground floor and one floor above, had already been intervened and had a black metal sheet covering on the upper part: we decided to continue it on the ground floor, transforming it into a dark, introverted box, whose only “window” to the street outside were the access door, which is glazed and functions as a small flexible exhibition space, inside which the agency’s works, sculptures, graphic art works are periodically rotated.
室內與室外形成對比,室內是開放的淺色調,由組成會議室的立方體組織而成:一樓會議室外由木材覆蓋,頂層會議室則覆蓋鏡麵牆。這兩種材質的簡樸特性為室內帶來了驚喜。
The interior spaces, in contrast with the exterior, are open, of light tones and are organized from the cubes that make up the meeting rooms: on the ground floor, diagonally covered with petiribí wood and on the top floor with mirrored walls. In both cases the austere character of the homogeneous cladding gives rise to surprise in the interior.
廚房與花園融為一體,擴大了空間,使空間氛圍更輕鬆。
The kitchen merges with the garden, magnifying the space, inviting the meeting and relaxation.
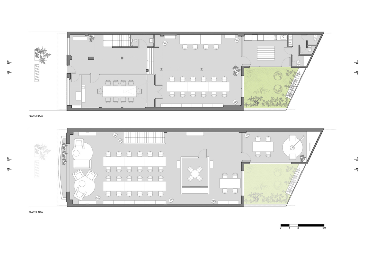
∇ 一層平麵圖 & 二層平麵圖 1F plan & 2F plan

∇ 剖麵圖 & 立麵圖 section & elevation

完整項目信息
項目名稱:The Community Offices
項目位置:阿根廷布埃諾艾利斯
項目類型:辦公空間/辦公室
完成時間:2016
項目麵積:240平方米
設計公司:Estudio Carranza Arquitectura&Estudio GALVEZ AUTUNNO
攝影:Jackie Rios



































