該住宅最初由兩個主體組成——與主立麵相連的住宅和占據基地底部的穀倉。在它們之間,其他空間元素隨著時間的推移而出現,填補了必要的空間。
The original house was composed of two bodies, the house in contact with the main facade and a barn that occupied the bottom of the plot. Between them, other elements have appeared over time and have filled a necessary space to breathe.
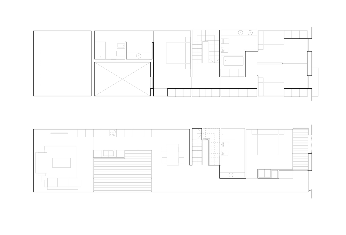
為此,天井將成為主要元素,能夠照亮、連接空間,並賦予了房子必要的特色,在過去、現在和未來之間建立對話。一層是公共空間,整個地塊的大小為5米寬和22米長。
For this, a patio will become the main element, able to illuminate, articulate spaces and also give the house the necessary character, establishing a dialogue between the past, the present, and the future. The ground floor includes the public use of the house, developed throughout the size of the plot, 5 meters wide by 22 meters long.
立麵沒有改變現有的空間節奏,隻是幹預底層窗戶的深度,用一個有植被的露台取代了原來的,改善了住宅的私密性,同時可以讓整個公共區域通風。在材料上,住宅采用中性色調,強調自然光和原始元素的幾何形狀,為庭院留下了獨特之處,庭院由垂直磚砌而成,貫穿整個表麵,種植著豐富的植被,賦予了整個空間生命和色彩。因此,磚、植被和自然光等主要元素造就了這個空間。
Facade, far from altering the existing rhythms, intervenes in the depth of the ground floor window, replacing the original one with a terrace inhabited with vegetation that improves the privacy of the house while allowing ventilation of the entire public area. Materially, the house is designed with neutral tones that emphasize the natural light and the geometry of the original elements, leaving the singularity for the patio, built entirely with vertical brickwork that runs throughout its surface and inhabited by abundant vegetation giving both together life and color to the whole. Therefore, brick, vegetation and natural light, primary materials.
完整項目信息
項目名稱:AM House
項目位置:西班牙
項目類型:住宅空間/私人住宅
完成時間:2018
項目麵積:240平方米
設計公司:Horma
攝影:Mariela Apollonio



























