現代極簡居住空間中體積感、尺度的表達
spatial volume dancing with minimal and modern touch
項目位於浙江義烏市綠城桃花源,遠離城市中心喧囂,僻靜的環境屬性和四層的建築空間,使得設計的核心落於給居住者營造一個舒適且自由的生活空間。
The project is located in a four-story villa that is away from the hustle and bustle of the city, enabling the design to embrace the core idea of creating a comfortable residential space for the inhabitants, fulfilled with free spirit.
室內麵積約為510平方米,我們在設計上結合了對不同空間體積及尺度的思考,輔以現代極簡風格和對細節的珍視、處理,讓居住空間得以在悠久的時間裏,合乎功能和日常使用的各種實際需求,同時也映襯出居住者的個性、生活方式和生活品味。
The interior encompasses 510 square meters, and considerations for divergent spatial volumes and scales were incorporated into the design, complemented by a modern minimalist style and attention to details. This allows overall space to meet various practical needs for functionality and daily usage over a long period of time, while also reflecting personality, lifestyle, and taste of the homeowner.
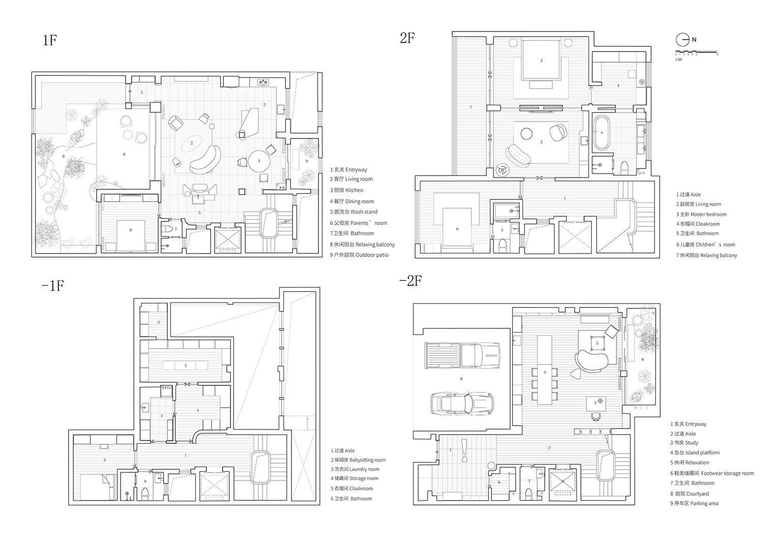
一層區域在平麵規劃中由三個主要的生活支點展開,分別為廚房、客廳以及餐廳。
廚房是居住者每日活動的中心,在體積和尺度感上,我們消除了牆體即存的邊界線,空間得以延展,在整體動線上更加靈活多變,屋主們日後在廚房的使用中也能更好地互動、交流。
Starting from three main living pivots, the first floor is organized into kitchen, living room and dining room.
Inhabitants’ daily activities are centered around the extended kitchen by virtue of elimination of the structure walls, simultaneously the circulation of the space becomes more flexible. In the block connecting the kitchen and dining room, an original supporting column that runs through the ceiling and ground, was wrapped in natural stone textures and exemplified in triangles to alter the original cylindrical bone shape. The wall structure alongside the dining room involves existing drainage pipelines. We have assigned new geometry surface was employed to cover the periphery of the pipeline, and the balance of visual experience has been achieved by mirrored and replicated touch.
在廚房和餐廳連接的區塊內,有一根建築原有的支撐柱體,貫穿著天花和地麵。在細節設計上,我們用三角改變原始的柱體骨骼形態,表皮則包裹上天然石材肌理。靠近餐廳的牆體結構內部為原始建築排水管道,我們將管道的外圍賦予秩序幾何,再鏡像複製,平衡視覺。
A dividing unit is added up between the living room and the parents’ room, which blurs the boundaries between the main area and the secondary, marking a sublime interpretation of spatial separation and connection. To process details of the segmented edges, the designer has placed a three-dimensional installation, providing supporting thickness in terms of volume scale, juxtaposed with practical functions to erect an independent system. Different functional needs of daily life have been taken into consideration with this new involvement that also speaks to the concept of spatial volume and shape applied in a sensitive design language. The existing architectural beams and columns are treated with different volume scales, achieving a minimalist aesthetic of unified expression throughout the space.
在空間的間離和鏈接上,我們在客廳和父母臥室的空間中增加了一條分割線,主單元與次單元以一種模糊的關係融合在一起。在分割的邊線的細節處理上,設計師於此置入了一個立體裝置,給予體積尺度感上的厚度支撐,同時與實用功能相結合,讓此處空間成為一個獨立的體係。
介入的全新裝置不僅僅局限於體積造型感的表麵,而是真正地滿足日常生活的功能。項目中所有建築自有的橫梁和柱體,都有著不同體積尺度的處理,達到整體空間統一表達的極簡之感美學。
A parabolic line is used to connect from the beginning to the end at the top of living room and bedroom on the second floor. The sliding doors on the left and right sides can be folded into the wall that is inserted in the longitudinal axis, so the two partial structures were connected while detached in a way that the independence and privacy were maintained.
二樓起居室與臥室休息區的頂部由一根拋物線連接首尾。在縱向軸線中插入邊界牆體,左右兩側的移門消隱在牆體內側。這樣盡管主體相連,但卻又保持各自的獨立性。在負二層的頂麵置入一個方形幾何體,幾何體的內部如同一個巨大的容器承載著儲物功能。在其外側,我們通過人為幹預把幾何體的網格邊線向右側移動,給居住者形成一個有意識的空間形變。在幾何體外側的挑空處,我們預留了五個透明的盒子,光引入室,通過光的陰影與折射給空間增添自然厚度。
A square geometry was employed on the top of the first basement, of which function like a huge container with the storage capability. Grid edges of the geometry is shifted to the right from its outer side through purposeful intervention, casting a conscious spatial deformation for the inhabitants. Five transparent boxes are reserved in the upper void space at outer part of the geometry, bringing light into the space where natural elements are punctuated by the shadow and refraction of lights.
所有的家具和功能區域都經過精心的布局,確保動線的合理流暢外,最大程度地優化到日常生活中的使用層麵。在空間的材質和顏色選取上,設計師以呼應和對比的處理,呈現色彩和不同肌理的表現。休閑茶吧的儲物櫃體與牆體飾麵,由兩個不同顏色的木飾麵拚接,在空間呈現的主要表麵上形成對比。深色的櫃體表麵與折疊造型門相呼應,讓材質與材質之間發生對話。
Every piece of the furniture and section of the functional area were carefully planned to ensure a reasonable and smooth circulation, completed by optimization for daily use. In terms of material and color selection, texture of the palette was completed by contrasting and continuous cohesion. The storage cabinet and wall ornaments, placed in the bar area, are presented with two different colored wood finishes, generating a contrasting spatial color layer. Furthermore, a dialogue between materials was formed through unified texture of the dark colored cabinet to the folding door.
∇ 建築剖麵圖
∇ 原始結構圖
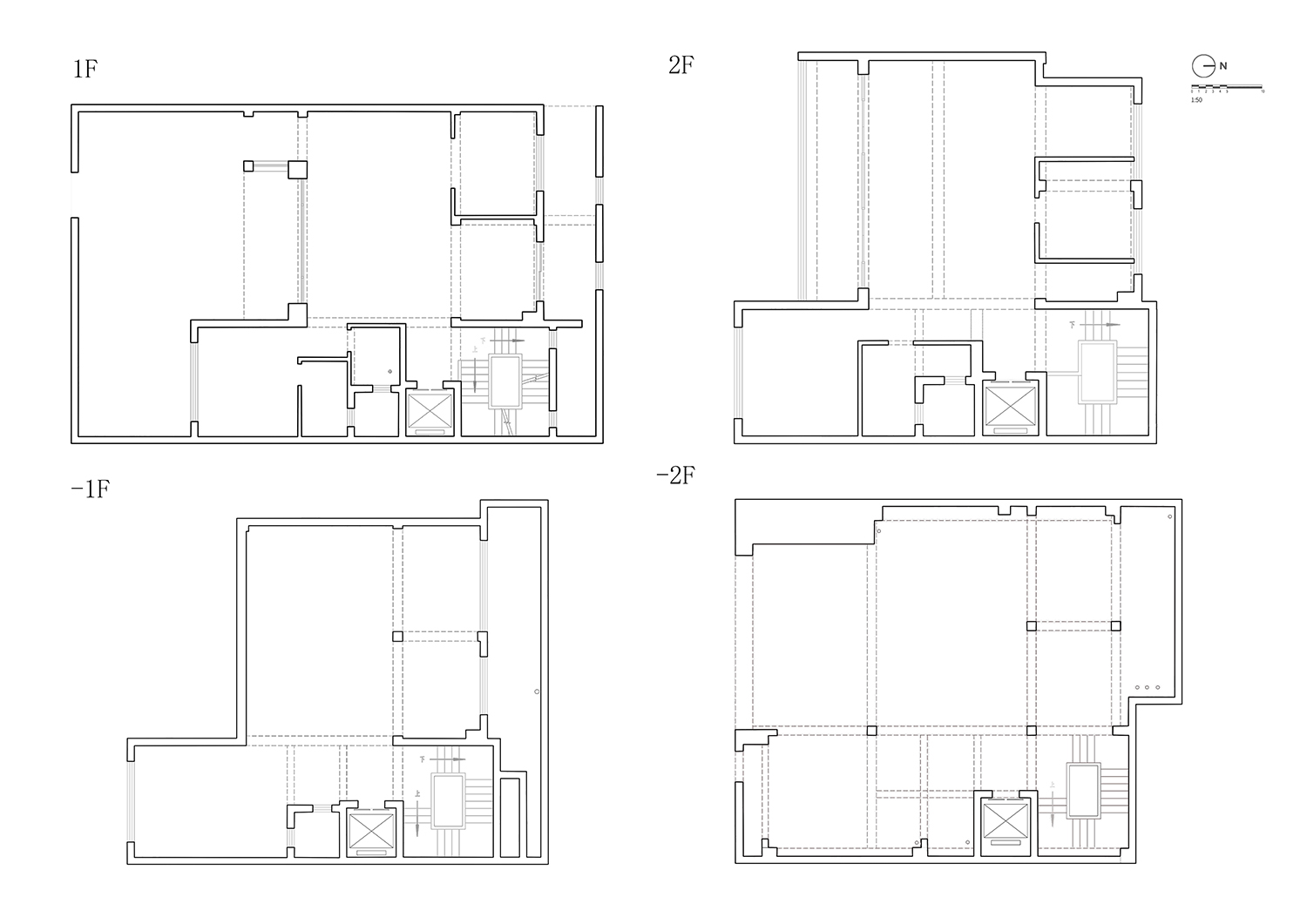
∇ 平麵圖
項目信息
項目名稱:義烏桃花源住宅
項目類型:幾何感、簡約現代住宅
室內設計:杭州山地土壤室內設計
聯係郵箱:mountainsoil@163.com
項目設計:2021年2月
完成年份:2023年02月
設計總監:董甜甜
項目地址:浙江省義烏市
建築麵積:510㎡
攝影版權:Wen Studio
燈光設計:華豪照明
施工公司:上海淳霖建築裝飾有限公司
主要材料:藝術塗料、銅、大理石
Project Name: Peach Blossom Land Villa
Project Type: Residence
Interior Design: mountain soil
Contac: mountainsoil@163.com
Design Year: Feb. 2021
Completion Year: Feb. 2023
Design Director: Tiantian Dong
Project Location: Yiwu City, China
Floor Area: 510㎡
Photo Credit: Wen Studio
Lighting Design: HUAH Lighting
Construction: Shanghai Chunlin Building Decoration Co.,Ltd.
Materials: art painting, copper, marble





































