GRAFT工作室設計了Trilux照明公司位於德國科隆的新總部,矩形建築的設計很大程度上受到了客戶工藝的啟發:光、折射和反射在整個建築中得到了最真實的反饋,其設計體現了燈具製造的精確性。
GRAFT designed the new headquarters of the German lighting company TRILUX in Cologne. The design of the rectangular building is strongly inspired by the client’s craft: light, refraction and reflections are reflected – in the truest sense of the word – throughout the building and its design embodies the precision of lamp manufacture.
連續的交錯玻璃立麵從不同的角度呈現出不斷變化的反射圖案,並從聚光燈反射鏡的美學中汲取靈感,從而優化光源的光學分布。為此,每個立麵圖案圍繞其中心軸以相同角度旋轉。是一個整體式建築,根據視角產生不同的光和變化效果。
The continuous, staggered glass façade presents a changing pattern of reflections from different viewpoints and draws inspiration from the aesthetics of spotlight reflectors, which optimize the optical distribution of the light source. To achieve this, each façade module is rotated at the same angle about its central axis. The overall impression is of a monolithic building that produces different light and depth effects depending on the point of view.
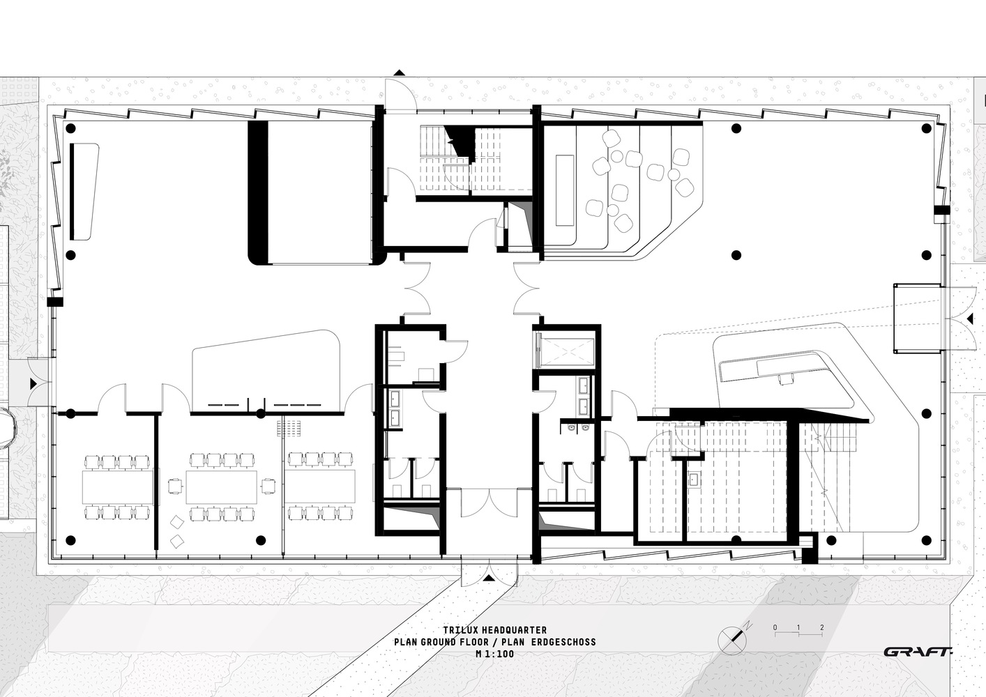
Trilux總部的主入口在與北邊的街道交彙的拐角處設置了迎賓處,,圍繞著大樓的拐角玻璃幕牆從一層上升到兩層。新建築在西部邊緣形成了建築框架,定義了新建築和現有建築之間的新的互動空間。Lill+Sparla的景觀設計創造了一個全年都是綠色的室外廣場,精致的草地與建築的統一整體印象形成鮮明對比。
The main entrance of the TRILUX headquarters makes an inviting gesture at the corner where it meets the street to the north, its glazing rising from one to two floors to wrap around the building corner. The new building frames the site on the western edge, defining a new space of interaction between the new and existing buildings. The landscape design by Lill + Sparla creates an outdoor plaza that is green all year round, with delicate grasses that contrast with the uniform overall impression of the building.
廣場的主題繼續在建築的內部延續。寬敞的兩層門廳和接待區將公共區域延伸到建築內,並與一樓的畫廊一起,為展覽或公共活動提供了寬敞的空間。天花板上是由GRAFT和Trilux共同設計的雕塑式燈,專門為門廳設計的具有建築和燈具美感的燈。燈具從天花板上折疊出來,在大廳上方輕柔地向下形成弧形。大樓的上層為公司的辦公空間和Trilux產品的展覽區,因此是公司技術中心的重要組成部分。辦公室的上四層是流動的樓層平麵,並延伸至整個建築的程度,僅被三部電梯和衛生間組成的核心筒打斷。“智能工作區”包括開放式通信區和封閉式工作區,配備有可在模組中可變組合的混合家具元件。
The upper floors of the building house the company’s office spaces as well as exhibition areas for TRILUX products and is therefore an essential part of the company’s own competence center, which already partially existed on the site. The flowing floor plan continues in the upper four floors of the offices and extends the entire depth of the building, interrupted only by three circulation and washroom/WC cores.These so-called “Smart Workingscapes” comprise both open communication zones and enclosed work zones equipped with hybrid furniture elements that can be variably combined in modules.
∇ 首層平麵圖
∇ 二層平麵圖
∇ 三層平麵圖
∇ 四層平麵圖
∇ 剖麵圖
∇ 東北立麵圖
∇ 西北立麵圖
∇ 西南立麵圖
∇ 東南立麵圖
完整項目信息
項目名稱:Trilux
項目位置:德國科隆
項目類型:辦公空間/總部
完成時間:2019
項目麵積:2794平方米
設計公司:Graft Architects
攝影:Trilux


































