Sans-Arc工作室為澳大利亞Torrensville的一間小屋增添了一個俏皮的廚房,其特點是有著白色石膏牆、拱門和水磨石。
Sans-Arc Studio has added a playful kitchen extension to a cottage in Torrensville, Australia, which is characterised by white-plaster walls, arches and terrazzo.
該住宅被命名為灰泥遊樂屋,旨在成為一個有趣、輕盈和緊湊的空間,與城市中常見的棕色磚房形成鮮明對比。改造將小屋升級為一個寬敞實用的家。這是一個有趣且充滿陽光的空間,可供屋主做飯、娛樂和放鬆。該項目故意與周圍的建築風格相背,通過使用灰泥和拱門形成自己的身份,空間給人的感覺就像一片綠洲——一個明亮的、充滿藝術裝飾的時刻。
Named the Plaster Fun House, the home is intended to be a fun, light and compact space that contrasts with the city’s commonplace brown-brick houses.The alteration has upgraded the cottage into an expansive and functional home. It is a playful and light-filled space for the clients to cook, entertain and relax in.The project intentionally resists the surrounding building styles, forming its own identity through the use of plaster and arches,The space feels like an oasis – a bright, art-deco moment.
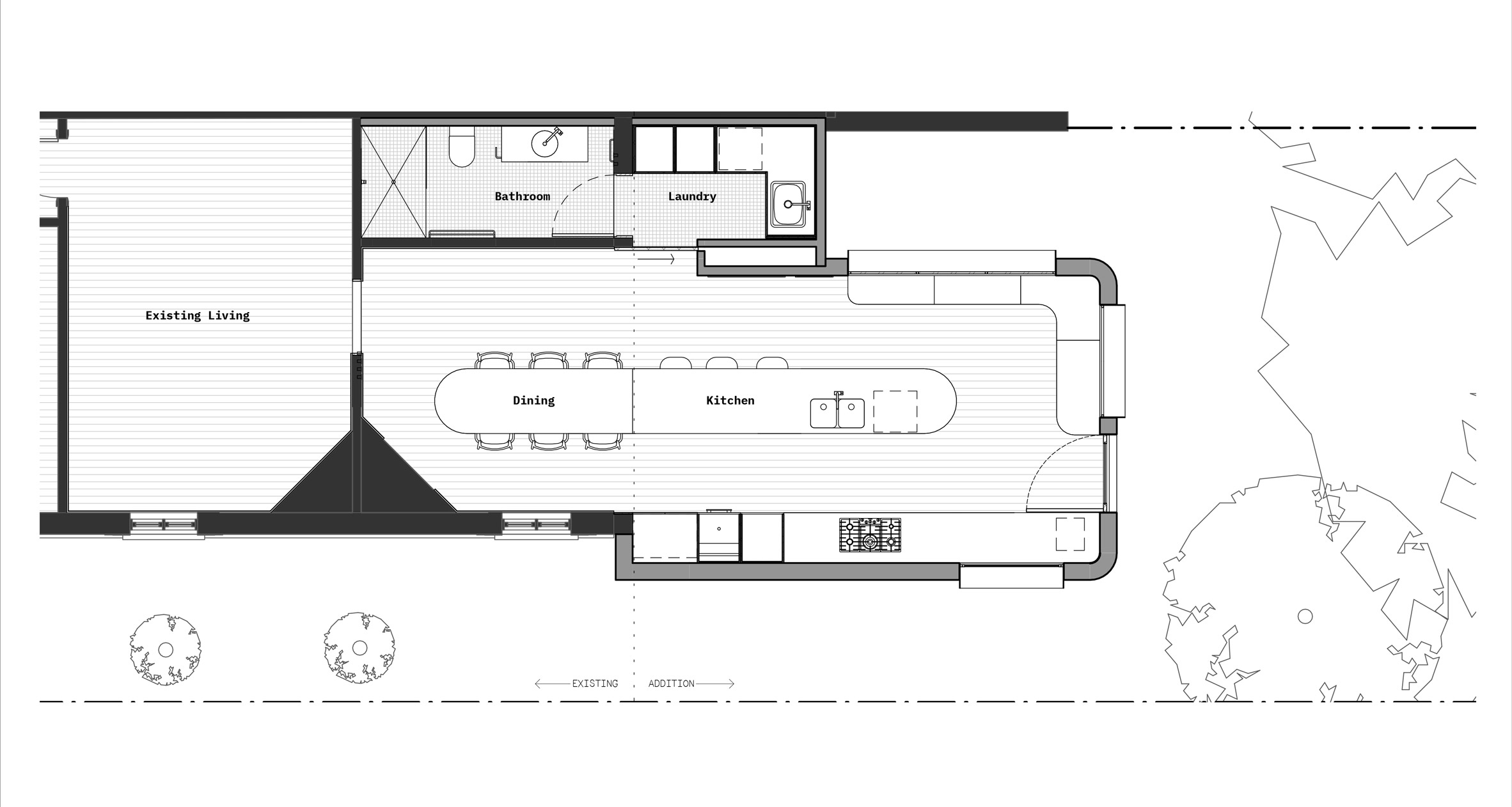
在項目開始之前,小屋有一個“一個很大的餐廳”,Sans-Arc工作室選擇將其整合到灰泥遊樂屋擴建區,以創建一個線性的開放式廚房和餐廳。
Prior to the project, the cottage had “a good-sized dining room”, which Sans-Arc Studio chose to integrate into the Plaster Fun House extension to create a linear open-plan kitchen and dining room.
為了將兩個空間連接在一起,工作室在中心放置了一個粉紅色水磨石早餐吧,形成了空間的核心。
To tie the two spaces together, the studio placed a large, pastel-pink terrazzo breakfast bar at the centre, which now forms the heart of the space.
Sans-Arc工作室將水磨石與鴨蛋色的廚房櫥櫃和瓷磚組合在一起,並在球形吊燈和牆上的書架上采用豐富的黃銅細節裝飾。為了確保擴建部分自然光線充足,Sans-Arch工作室用一個大型拱形窗戶和門穿過朝向東麵的新牆。
Sans-Arc Studio has teamed the terrazzo unit with duck-egg blue kitchen cabinetry and tiles, alongside an abundance of brass detailing, seen on the spherical hanging lights and a bookshelf on one of the walls.To ensure the extension is well lit by natural daylight, Sans-Arch Studio punctured the new east-facing wall with a large arched window and door.
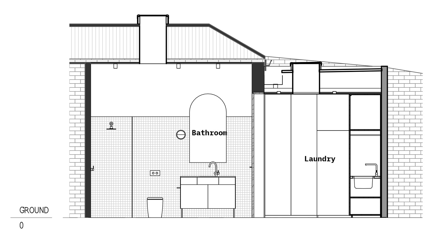
旁邊彎曲的角落長椅兼作閱讀角,旨在鼓勵屋主坐在陽光下放鬆,同時花時間在空間社交。在灰泥遊樂屋擴建的一部分中引入了一間雜物間,住宅現有的一樓浴室也擴大了一倍。布滿廚房的黃銅細節和藍色瓷磚一直延伸到浴室,浴室頂部有一扇巨大的天窗。
Beside them, a curved corner bench doubles as a reading nook, intended to encourage the clients to sit and relax in the sun, while spending time socialising in the space.As part of the Plaster Fun House extension, a utility room was introduced and the home’s existing ground-floor bathroom was also doubled in size.The brass details and blue tiles that fill the the kitchen continue into the bathroom, which is topped by a giant skylight.
完整項目信息
項目名稱:PLASTER FUN HOUSE
項目位置:澳大利亞
項目類型:住宅空間/住宅擴建
項目麵積:80平方米
設計公司:Sans-Arc Studio
攝影:Tash McCammon






















