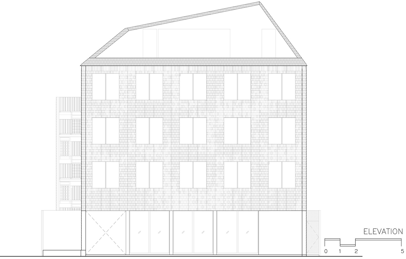
總部位於曼穀的建築事務所Department of Architecture最近完成了一座半透明的酒店,向泰國清邁的鄉土建築致敬。酒店屋頂形式的靈感來自傳統的髖部屋頂,並以不對稱的形式與周圍的樹梢輪廓自然地融合在一起,重新詮釋了酒店的屋頂形式。屋頂的西側部分敞開形成屋頂平台,供客人欣賞日落時的河岸全景。
Bangkok-based firm Department of Architecture has recently completed a translucent hotel that pays tribute to the vernacular architecture of Chiang Mai, Thailand. The hotel roof form inspired by traditional hip roofs as homage to the local architecture has a little reinterpretation with an asymmetrical form blending naturally with the surrounding tree top silhouette. The west side of the roof is partially carved out to become a roof deck for guests to enjoy the panoramic river view at sunset.
通過使用主要的傳統材料——木瓦,設計延續了當地的建築特色。這種材料最有趣的地方在於它的體係已經發展了幾百年。小塊的木瓦像魚鱗一樣排列,成為一個防水的建築平麵。該設計探索了將新材料融入係統的可能性,創造了一個深植於傳統的當代建築表麵。
The design continues the local architectural character through the use of the predominant traditional material – the wood shingles. The most interesting aspect of the material is in its system that has been well developed for hundreds of years. Small units of wood shingles are laid out like fish scales to become a watertight architectural plane. The design has explored a possibility to fuse new materials into the system to create a contemporary architectural surface yet deeply rooted in tradition.
木瓦用於屋頂和側壁。在河立麵上,聚碳酸酯板被切割成與木瓦大小相同的尺寸,構成了半透明的建築立麵。在入口立麵上,上部由實木瓦組成,並與下部的聚碳酸酯瓦混合。雖然使用傳統的木瓦係統,但不間斷的半透明表麵是通過使用半透明螺柱和特殊透明螺釘的特殊細節設計實現的。
The wood shingles are used on the roof and side walls. On the river facade, polycarbonate sheets are cut into the same size as wood shingles and constructed to become the architectural translucent facade. On the entrance façade, the upper portion is composed of solid wood shingles and they trickle down to mixed with polycarbonate shingles on the lower part. Although working with the traditional shingle system, the uninterrupted translucency surface is achieved by a special detail design using translucent studs and special transparent screws.
立麵在陽光下閃閃發光,因為光線接觸到不同的材料顆粒,從實木瓦到聚碳酸酯瓦的不同半透明水平。光線穿過立麵,隨著天空光線條件的變化,在不同的時間創造出不同的室內氛圍。到了晚上,有了室內的燈光,建築就成了河堤上一盞燈火通明。這個結構看起來不像建築,而更像是一件工藝品。
The facade is glittering in the sun as the light touches different material grains, from the solid wood shingles to the different translucency levels of the polycarbonate shingles. The light passes through the facade and creates varying interior atmosphere at different time with the changing light condition of the sky. At night with the light from the inside, the building becomes a lantern glowing on the riverbank. The structure seems less of a building but becomes more like a piece of craftwork.
公共區域內部補充了外部的簡單性,給人一種畫廊般的感覺,容納了場地特定的裝置,靈感來自著名的布郎傘,創造了精致和戲劇性的剪影,表達了當地手工藝的當代詮釋。
The public area interior complements the exterior simplicity, gives a gallery-like feeling that accommodates the site-specific installations inspired by the famous Boh–Srang umbrella, and creates delicate and dramatic silhouettes expressing contemporary interpretation of the local handicraft.
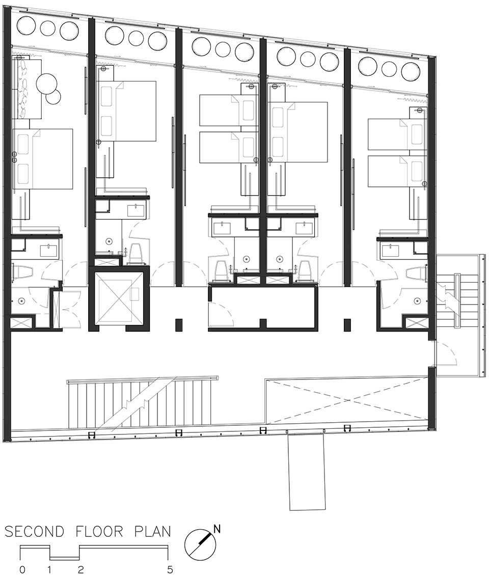
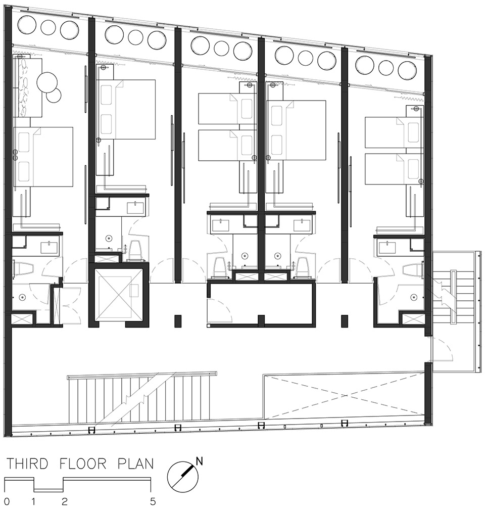
客房內部為客人們提供了發現清邁的全新視角。清邁的重要地點和事件的圖像,如古城牆,水燈節,鬆林,Pah-Chor峽穀等,都反映在了天花板上。 這些圖像無限地反射到兩個長長的牆壁上,上麵覆蓋著小鏡子帶狀皰疹,給人一種超現實的無邊框感。 十四間客房中的每一間都有不同的圖像。每一種都散發出不同而獨特的感覺:寧靜,俏皮,文化,神秘等,適合客人的任何喜好。它向遊客介紹了清邁的過去、現在,或許還有未來。
The guest room interior is a place to rediscover Chiang Mai in a new angle, literally. Images of important places and events of Chiang Mai such as its ancient city wall, floating lantern festival, pine forest, Pah-Chor canyon, etc., are placed on the entire ceiling. The images infinitely reflected onto the two long walls cladded with small mirror shingles, giving a surreal borderless sensation. The images are all different for each of the fourteen guest rooms. Each emanates different and unique feeling: tranquil, playful, cultured, mysterious, etc. suitable for any preferences of the guests. Little Shelter is not only a place to sleep. It is an introduction of the past, the present, and probably the future of Chiang Mai to its visitors.
∇ 平麵圖
∇ 立麵圖
完整項目信息
項目名稱:Little Shelter Hotel
項目位置:泰國清邁
項目類型:設計酒店/度假酒店
完成時間:2019
設計公司:Department of Architecture
攝影:W Workspace Company Limited

































