青空冀翼民宿位於新疆伊犁特克斯縣瓊庫什台村。
這是一個海拔2000米的遊牧民族村落,也是中國100個曆史文化名村之一。獨特的地理位置造就了絕佳的自然景觀,讓這裏被稱為伊犁最後的秘境。
經過在地研究,綜合各方麵因素,設計師決定以克製的姿態進入這個項目:不為了設計而設計,而是讓設計服務於自然和體驗。
通過梳理場地關係,確定景觀的朝向和光線的流動軌跡。保留哈薩克小木屋原始風貌的同時,改變開窗方式和位置,通過不同形式的窗引景入室,模糊室內外的邊界,讓客人不管走到房間的哪一處,都能有風景跳入眼中,看到驚喜。
隨著天光和季節的變化,風景也是變化的,窗景就像一幅流動的畫卷,讓人流連忘返。
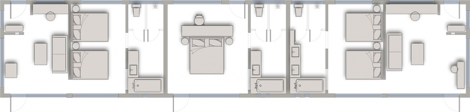
因為政策原因,四棟小木屋,總體量360㎡,不可擴建和改建,設計師利用僅有的麵積,規劃出1個接待廳和12個房間。
∇ 四棟木屋分布
幾乎所有的房間裏,床鋪都是麵朝風景的方向擺放的。通透的窗戶延伸了視線,讓局促的空間變得不再局促,室內外的邊界變得模糊,讓旅人真正的住進了風景裏。
室內沒有堆砌多餘的裝飾元素,僅用了原木、塗料作為主要材料。用少量拱形回應當地的裝飾特點。
更接近當地特色的居住方式也成為設計考量之一,沒有床頭的床鋪設計,回應著哈薩克遊牧民族睡地台的生活方式。
節能環保也是設計師考慮的要點之一。所有戶外照明係統都采用太陽能燈具。入夜,身處安靜的草原,抬頭就可以看到滿天的繁星,戶外燈光著重於氛圍感的營造。曠野中亮著燈的小木屋,猶如溫暖的爐火,帶給旅人歸屬感。
∇ 一棟平麵圖
∇ 二棟平麵圖
∇ 三棟平麵圖
∇ 四棟平麵圖
項目信息
項目名稱:青空冀翼民宿
項目類型:民宿/酒店
設計方:魔匠德克空間設計
項目設計:2021.10
完成年份:2022.05
設計團隊:徐珊珊 / 張思婧
項目地址:新疆伊犁哈薩克自治州特克斯縣瓊庫什台村
建築麵積:400㎡
攝影版權:盛淩劍




































