LOFT中國感謝來自 浙江大學建築設計研究院 的酒店項目案例分享:
基地位於杭州市西湖區虎跑路和三台山路交彙處的西南角。周邊山巒起伏,視野開闊;內部山水俱佳,自然植被保存良好。
The base is located at the southwest corner of the intersection of San Tai Shan Road and Hu Pao Road of West Lake District in Hangzhou. There are some hills surrounded with wide viewing; the landscape is beautiful inside and the natural vegetation well preserved.
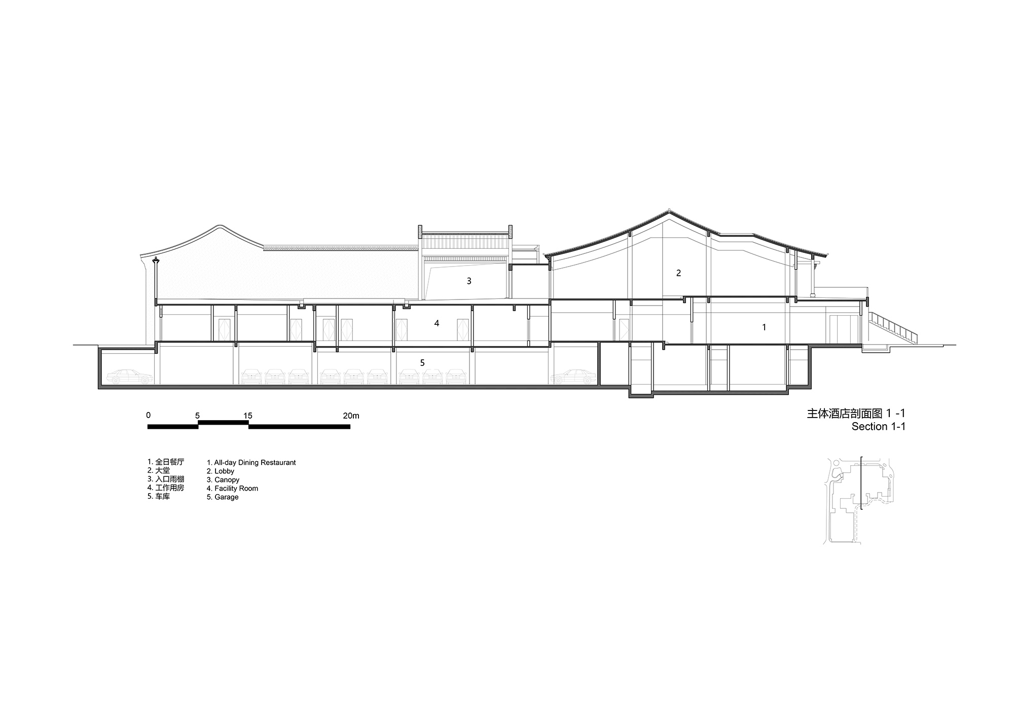
酒店總建築麵積31363平方米,總客房數182間,其中主體酒店客房109間、獨棟式客房21幢合73間;並配有宴會廳、中餐廳、全日餐廳、會議室、健身房、室內泳池等配套設施。
The hotel’s total building area are of 31363 square meters, the total number of rooms are 182 rooms, from which the main parts of hotel are 109 rooms, the main type of single room are 21 building and 73 rooms with banquet hall, Chinese restaurant, all-day restaurant, conference room, gym, indoor swimming pool and other facilities.
設計遵循“尊重自然環境,傳承曆史文脈”的宗旨,通過在地化建築營造,實現自然與人文的連接與共生。
The design is adhered to the purpose of “respecting the natural environment and inheriting the historical heritage”, through the construction of the ground architecture; the connection and symbiosis between nature and humanity are realized.
位於二層的入口景觀回院,用極簡的設計手法,試圖呈現“計白當黑”的整體藝術效果。透過北側白牆的背景是基地內保留的一排高大杉樹,無論是從入口坡道還是入口門廊望去,白牆綠樹自然山石的水墨意象倒映在平靜的水麵,勾勒出入口空間所試圖表達的靜謐和禪意。
The backyard of entrance landscape is located in second floor, which used the minimal design techniques so as to show “white when black” representing the general artistic effect. Through the background of the north white wall, there are row of tall cedar retained in the base, when you observe from the entrance ramp or entrance porch, the ink image of white walls, green trees and natural rocks is reflected in the calm water, which present the outline of entrance space and express the quietness and Buddhist mood.
主入口中軸線兩側的庭院組織了酒店公區的主要功能。東側庭院保留了基地內原有的高大喬木。西側庭院設置在一層屋頂之上,旨在營造二層客房簡潔大氣的私密環境。
The main functions of the hotel community are composed by courtyards located on both sides of the central axis of the main entrance. There are some tall arbors at the eastern side of the courtyard in the base. The west side courtyard is built on the top of a roof so as to create a private atmosphere of two rooms with a simple atmosphere.
主體酒店的西南側是集中客房區,圍繞著中心綠化庭院,布置以綠化和枯石,還有有色灌木、數顆喬木和一角古亭,令庭院飽滿而富場所感。
The hotel rooms are located at the southwest of the main part of hotel, which is surrounded by the green courtyard and spotted by green plants and dry stone, and there are several pieces of trees, shrubs, and a ancient Pavilion at the corner, which makes the courtyard prosperous and having rich sense of place.
基地西側的獨棟客房區,通過變化的院落組合,因地製宜的豎向關係,不同的開放度和連貫性,建築體量被有機削減,空間有了起承轉合。
The standing room area are located on the west side of base, which is designed by changing of courtyard, vertical relationship of local conditions and different degree of openness and consistency, so the building volume is cut organically and transforming its space.
白牆、黑瓦、深簷;純樸精致的青灰石板地麵;黑色小青瓦屋麵;以及經過精心挑選和設計的菠蘿格木外牆掛板所成就的建築群體中彌足珍貴的暖色基調,烘托著白色牆體,成為高大水杉林的背景,構建了係統而極富內涵的設計語言,使得酒店在富有江南韻味的基調上清晰明朗地表達了杭派建築墨色相映、隱逸詩化的特性與意境。
White walls, black tiles, deep eaves; the slate floors are simple and delicate; the roofing color is black grey tile roof; and the achievement of precious warm tone, which is formed by the carefully chosen pineapple wood wall panels of the building groups presenting the white wall and forming the background of China fir forest, building a systematic and full of connotations design language, making the hotel in the rich southern charm tone, clearly expressing the clear characteristics and the artistic conception of building form of Hangzhou style with the poetic invisible sense.
材料產品介紹:
Introduction of materials and products:
典型材料一:深灰色小青瓦,采購自杭州市上城區捷雯古建築材料經營部,產地蘇州。
Typical Material One: dark grey little tile, which are purchased from the Jie Wen Ancient Building Materials Business Department located in Shang Cheng District, city of Hangzhou, its production origin is in Suzhou.
酒店所有的坡屋麵均采用以體現江南傳統建風格的深灰色(接近黑色)的小青瓦,以達到建築表現的神韻的一致性。與小青瓦配套的有蓋瓦,滴水等成套構建。屋麵施工采用預埋掛鉤和水泥砂漿坐漿的方式加以固定,施工工藝比較傳統,無特殊手段。
The construction materials of all the roof surface of hotel adopted the little tile colored in the dark grey (almost black), which reflects the South China’s traditional style of architecture, so as to achieve the consistency of architectural expression charming. There are other completed sets of construction of tiling and dripping for matching with little tiles. The roof construction is fixed by the embedded hook and the cement mortar, and the construction technology is more traditional, without special means.
典型材料二:印尼菠蘿格木飾麵,采購自杭州億盛園林工程有限公司,產地印尼
Typical Materials two: Indonesia pineapple grid- wood facing, which are purchased from Hangzhou Yi Sheng Garden Engineering Co. Ltd., the origin of it is from Indonesia.
基於杭州西湖周邊傳統建築文化的體現,除了粉牆黛瓦,還有大部分木飾牆麵和可開啟木構窗的表現,以達到建築神韻表達的一致性。此部分設計經過了構造處理的相對簡化,傳統木窗改為鋁包木窗,牆麵的木飾肌理保持不變,但是采用了在鋼筋混凝土牆麵基礎上的“幕牆”幹掛處理,確保建築節能和保溫的穩定性,從而達到現代構造與使用功能滿足的雙重統一。
Based on the traditional architectural culture reflection beside the Hangzhou West Lake, in addition to the pink walls and black tiles, there are wood-decorated walls and opening wooden windows as well, so as to achieve consistency in the expression of architectural style. This part of the design is completed from the relatively simplified structure processing, the traditional wooden window are replaced instead of the aluminum clad wood windows, and the wood texture walls remain unchanged, but the “dry hanging process of curtain wall” are adopted based on the reinforced concrete wall, so that it will ensure the building energy-saving and heat preservation stability, so as to achieve the unity of building structure and function of modern usage requirement. .
典型材料三:火燒麵中國黑花崗岩,采購自內蒙古順意石材廠,產地內蒙古。
Typical Materials three: the Chinese black granite wit burning face, which are purchased from Shunyi stone factory of Inner Mongolia, its origin is from Inner Mongolia.
為與“粉牆黛瓦”的建築風格和江南神韻相協調,酒店的大部分戶外乃至部分戶內地坪,采用了火燒麵中國黑花崗岩鋪設,以尋求樸素低調和黑白灰整體效果。
To be coordinated with the pink walls and black tiles of architectural style with charm of Jiangnan building, the most part of the indoor and outdoor ground of hotel adopted the Chinese black granite with fire surface for paving in order to seek the overall effect of simple low-key with black and white color.
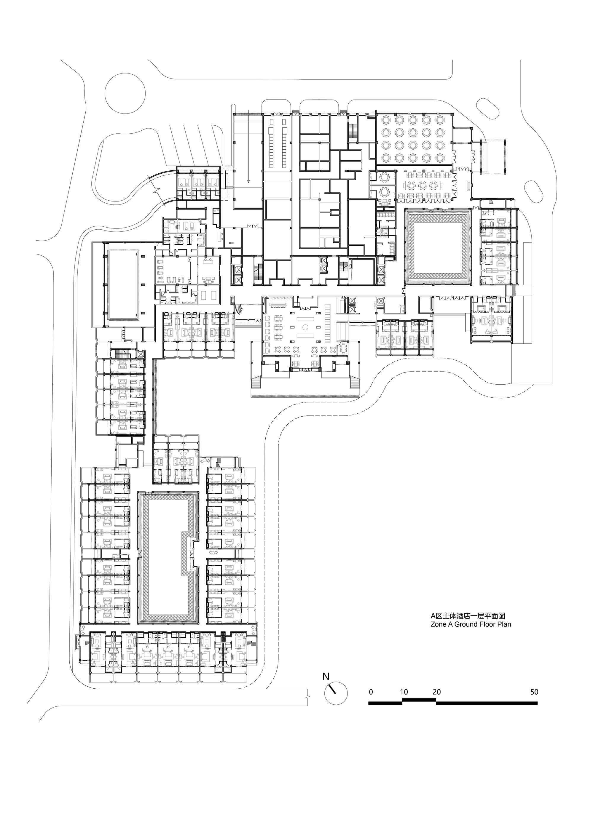
∇ 主體酒店一層平麵圖 Zone A Ground Floor Plan

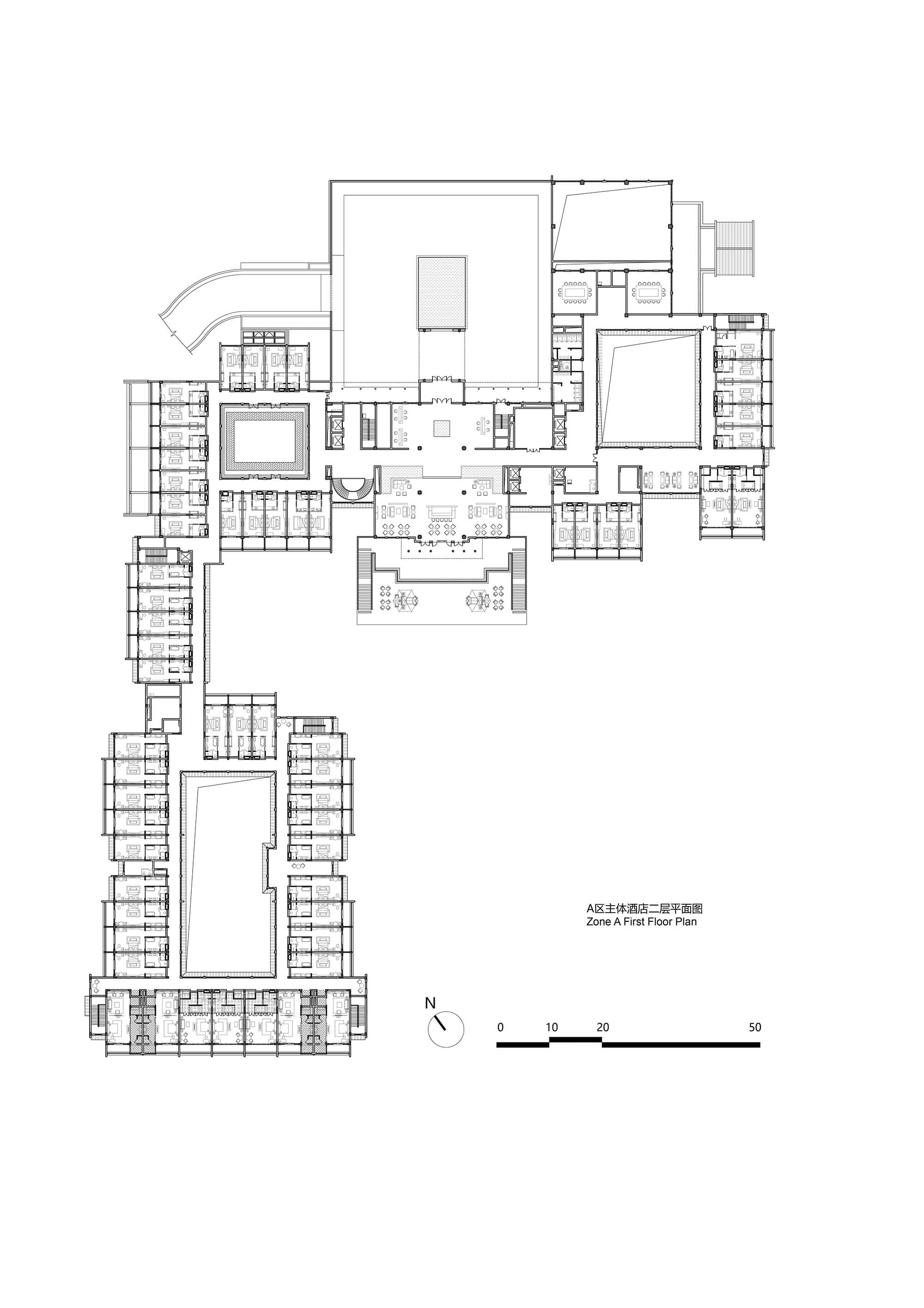
∇ 主體酒店二層平麵圖 Zone A First Floor Plan

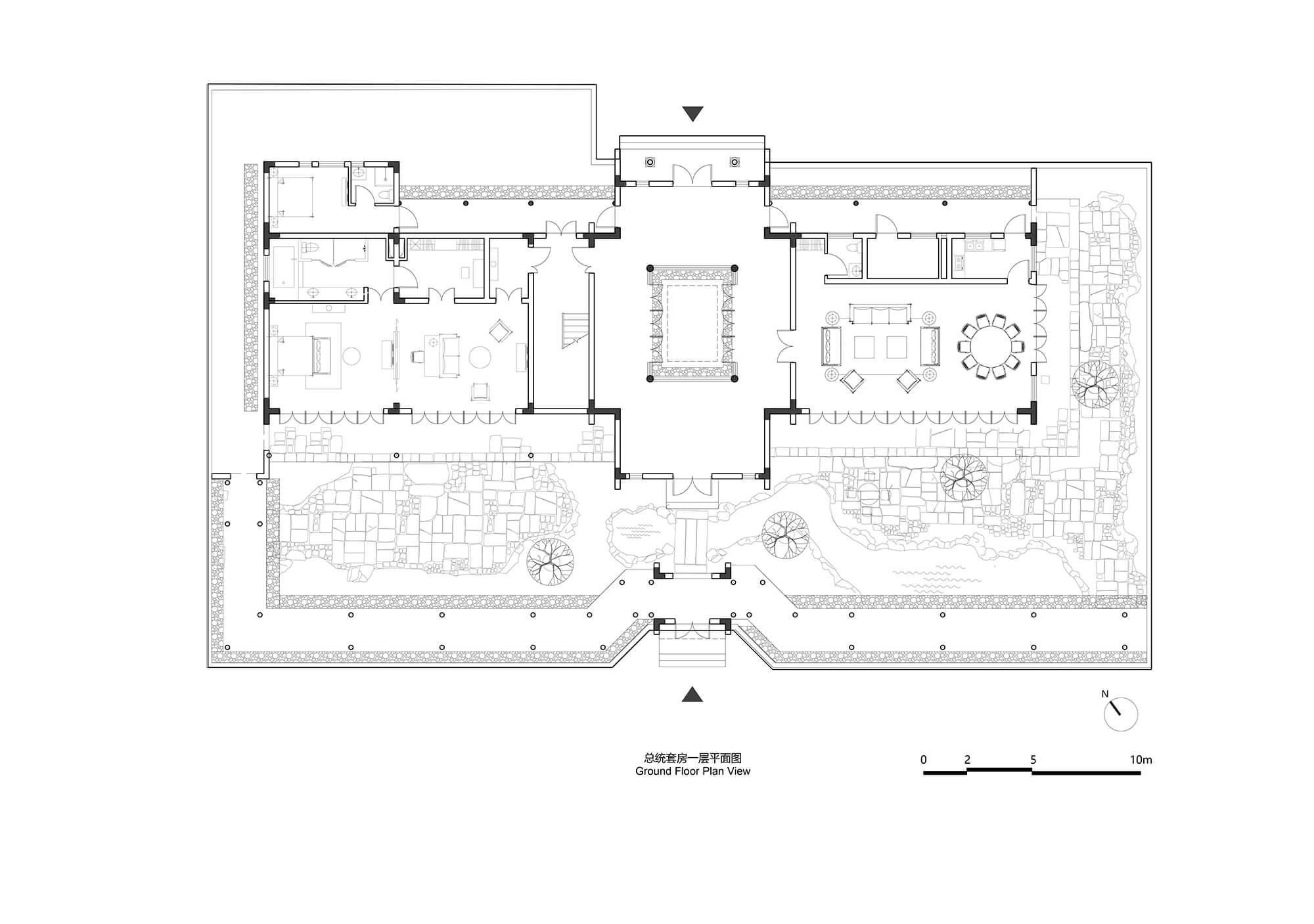
∇ 總統套房一層平麵圖 Ground Floor Plan View

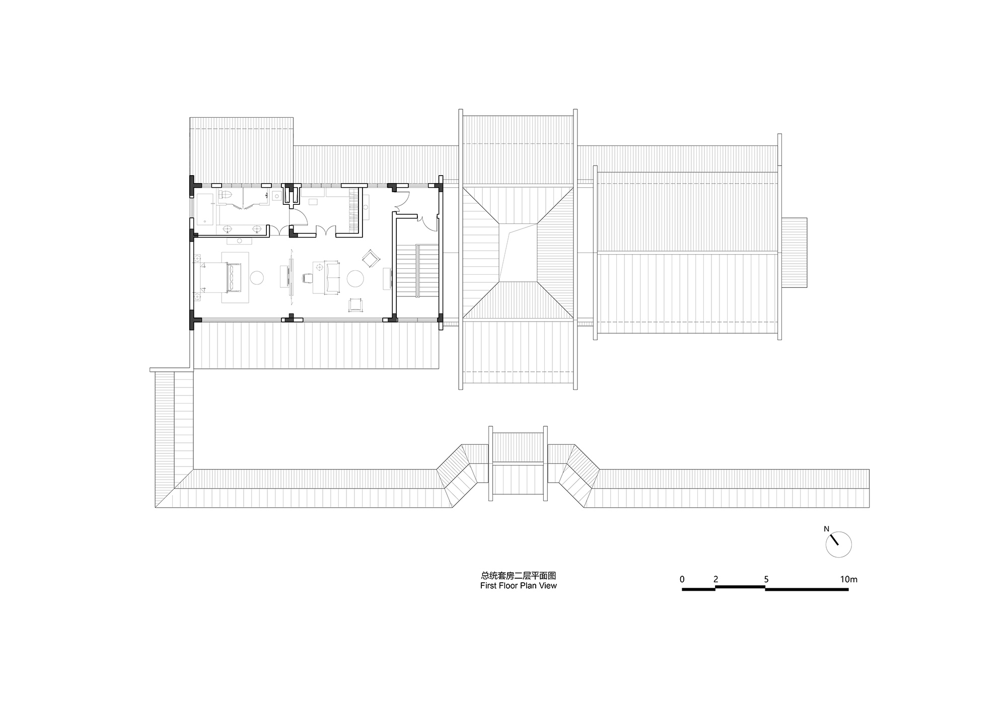
∇ 總統套房二層平麵圖 First Floor Plan View

完整項目信息
項目名稱:杭州雅穀泉山莊酒店整體翻建項目
項目地址:中國浙江省杭州西湖區三台山路147號
建築麵積:31363平方米
建築公司:浙江大學建築設計研究院有限公司
建築師:胡慧峰、賈中的
公司網站:http://www.zuadr.com/
概念規劃設計:波士頓國際設計BIDG
客戶:浙江省旅遊集團有限責任公司
攝影師:趙強、章晨帆(鳥瞰圖)
Project name: The overall renovation project of Hangzhou Ya Gu Quan Shan Hotel
Project address: No. 147, San Tai Shan Road, Xihu District, Hangzhou, Zhejiang, China
Gross floor area: 31,363 square meters
Architects / Architectural design company: Hu Huifeng, Jia Zhongde / The Architectural Design and Research Institute of Zhejiang University
Architectural design company website: http://www.zuadr.com/
conceptual design: BIDG
Photographer: Zhao Qiang, Zhang Chenfan (Bird’s eye view)
Client: Zhejiang Tourism Group





































