溫馨舒適永遠是家庭住宅的設計核心。本案位於錢塘江南側,房屋由地麵三層和地下兩層組成,室內總麵積為580平方米。
Warm and cozy is always the core of residential design. This case is located on the south side of the Qiantang River, and the house consists of three floors above ground and two floors underground. The total indoor area is 580 square meters.
∇ 餐廳,dining room © 瀚墨視覺 吳複鵬
當我們接手該任務時,各層的初步布局和局部施工已在原結構的基礎上展開。通過局部隔牆、樓梯、夾層連廊、上層混泥土牆等改造,開發了一係列極簡、靈活的空間,旨在滿足居住者的喜好和需求。
When we took over the task, the preliminary layout and local construction of each floor were already carried out on the basis of the original structure. A series of minimalist and flexible spaces have been developed through renovations such as local partitions, stairs, mezzanine corridors, and upper concrete walls, aiming to meet the preferences and needs of the owner.
∇ 客餐廳,dining and living room © 瀚墨視覺 吳複鵬
整個項目中,采用了大麵積的藝術塗料、木頭等原始材料,溫暖簡約的搭配方案,旨在最大限度地提升原材料的質感,加強視覺氛圍感和觸覺體驗感。
In this project, a large area of artistic coatings, wood and other raw materials were used, with a warm and simple matching scheme aimed at maximizing the texture of the raw materials, enhancing the visual atmosphere and tactile experience.
∇ 玄關,entrance © 瀚墨視覺 吳複鵬
自然原始的飾麵材料選擇,與曲線柔和的元素結合在一起,屋頂式的設計巧妙地消除了原本天花生硬的陰影,有助於創造出一個更為平和的空間容器。
Natural and original surface materials, combined with soft curved elements, the rooftop design cleverly eliminates the rigid contours of the original ceiling, helping to create a more peaceful space.
∇ 客廳,living room © 瀚墨視覺 吳複鵬
其他房間運用屋主喜愛的色係與元素做了設計點綴,自然的材質與色彩,碰撞出獨特的火花,增添了空間的趣味性與多樣性。
Other rooms have been decorated with colors and elements favored by the owner, creating a unique atmosphere with natural materials and colors, adding fun and diversity to the space.
∇ 主衛,master bathroom © 瀚墨視覺 吳複鵬
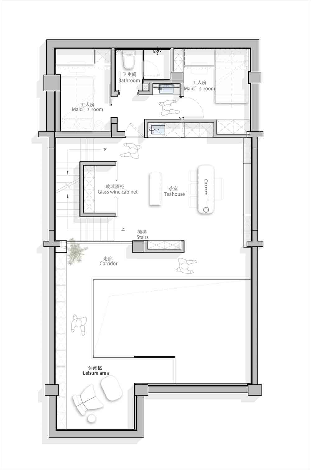
將原本光線較弱的地下空間改造為公共活動區,配置會客廳、烘培區、茶室、閱讀區、遊樂區、觀影區、保姆房等功能區域,讓生活軌跡也可集中在夾層與負一層的空間,盡可能地提升了空間的利用率。
Transforming the previously dimly lit underground space into a public activity area, equipped with functional areas such as reception room, baking area, tearoom, reading area, amusement area, reading area, nanny room, and etcetera, allowing private life to be concentrated in the space between the interlayer and basement floors, maximizing space utilization.
∇ 茶室,tearoom © 瀚墨視覺 吳複鵬
∇ 多功能區,multifunctional zone © 瀚墨視覺 吳複鵬
光影的斑駁,水流的律動,綠植的搖曳與居住者的生活軌跡都闡述著空間的流動性,靜謐的歸屬感確是居住空間與人最重要的共情力。
The mottled light and shadow, the rhythm of water flow, the swaying of plants, and the living traces of the owner all illustrate the fluidity of space. The sense of belonging is indeed the most important empathy between living space and people.
∇ B2平麵圖
∇ B1平麵圖
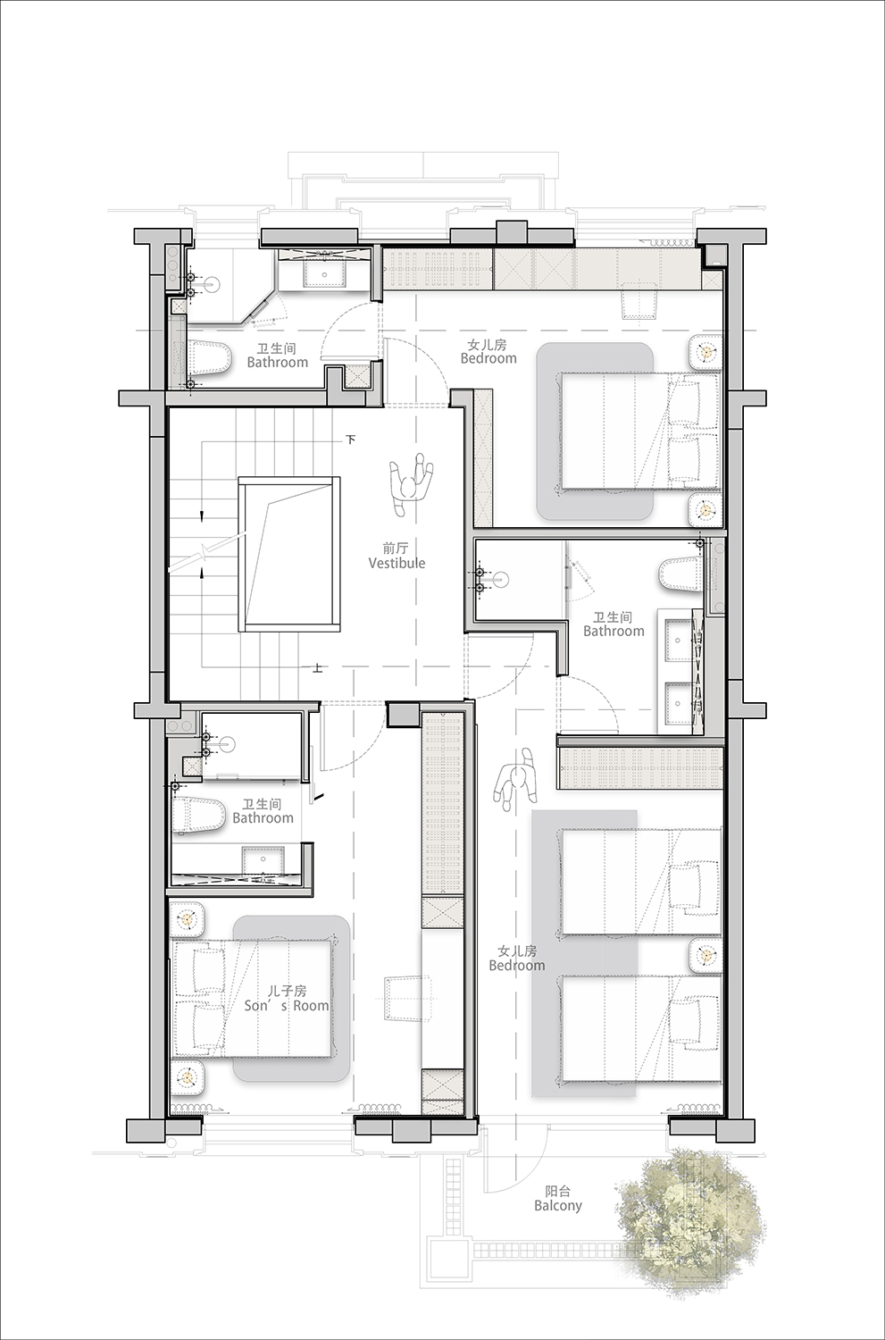
∇ 1F平麵圖
∇ 2F平麵圖
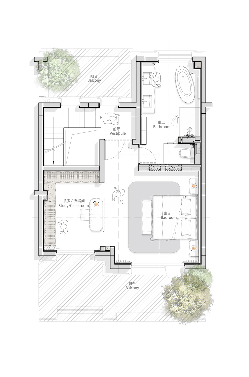
∇ 3F平麵圖
項目信息
項目名稱:禦江南別墅
設計公司:和己建築室內設計(杭州)有限公司
完成年份:2023
建築麵積:580㎡
項目位置:中國杭州蕭山區禦江南華庭
攝影師:瀚墨視覺 吳複鵬



























