LOFT中國感謝來自 艾克建築 的住宅項目案例分享:
“住宅是居住的機器”–柯布西耶 “A house is a machine for living in” — Le Corbusier
時代不同,現代城市依然充斥著大量的“住宅機器”,隨著時代的變遷、生活需求的改變,我們對家,對居住環境的需求同樣發生著翻天覆地的改變,樣板間是對居住環境的引導與定義。這一次我們想重新審視這個居住環境的演繹,在設計上發出一種異樣的聲音,更多的去闡述人與空間的情感和精神。
We now live in a different era, but modern cities are still filled with “living machines”. With the change of the times and living demands, our requirements for home and living environment have also undergone drastic transformation. This time, through approaching the interior design of two apartments, we want to re-examine the interpretation of living environment, express a different voice on design, and focus more on the emotional and spiritual connections between people and space.
建築空間不是純粹的物體,而是存在於人與人的相互關係中,因為建築與人的精神互相依存與影響,所以,越注重自身價值的人,越看重住宅的品味,越追求空間的獨特性與多元化。
Architectural space is not just an object. it exists in the inter-relationship between people. The spirit of humans and architectures are interdependent and influential, therefore, the more one pay attention to his/her personal value, the more they pursue the uniqueness and diversity of the dwelling spaces.
俏皮藝術 Nifty Art
C1戶型我們定義它是有個俏皮的藝術家。我們試圖通過一個多元複合的體驗式居住空間,來建樹一個張揚的空間性格。通過對形體、色彩、質感、軟裝來營造一個頗具性格的藝術宅。
We define apartment C1 as a playful and nifty artist.We attempted to construct a diverse and composite experiential living space and give it a flamboyant character. Through utilizing and integrating structural shapes, colors, textures and decorations, a characteristic and artistic residence was created.
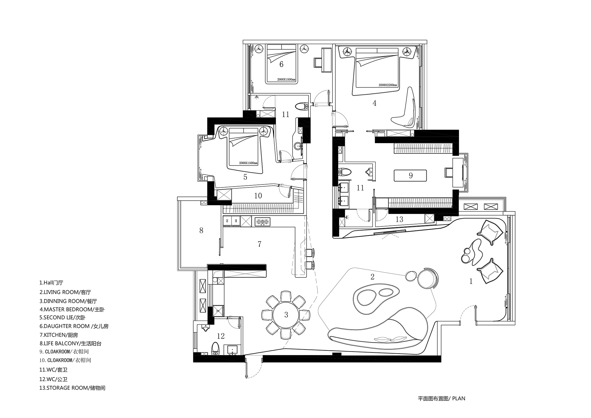
一個很普通的一個160平方米平層戶型,這個戶型有一個很大的缺點,很小的廚房與很小的餐廳,然而卻有兩個偌大的半戶外陽台。我們大膽的設想,這是一個三代同堂的家庭結構,且經常組織家庭聚會。設計的核心必須去滿足一個好的習慣,一個典型的中國式家庭–融合。我們要做的是傳承這樣的一種精神內核。同時更好的去挖掘戶型本身的潛力來提高戶型的商業價值。
Occupying an area of 160 m2, the apartment has a big drawback: small kitchen and dining room. However, it has two large semi-outdoor balconies. We made a bold assumption, and imagined that it would serve for a three-generation family which always hold family gatherings. The core concept of the design is to inherit the Chinese tradition and spirit of family togetherness. At the same time, we also intended to explore potential ways to improve the apartment’s commercial value.
金色成為空間的點綴色,配合牆體白色乳膠漆及灰色水磨地麵,通過色彩和質感的強烈對比來強調張揚的調性。
The space is dotted with striking golden color, which well matches and contrasts with the white latex paint on the wall and the gray terrazzo floor, thereby emphasizing the flamboyant tonality.
布局上,常規的方形的空間中,嵌進了一個圓,通過它來界定空間的邊界。這個圓也順其自然的解決了餐廳麵積過小的缺點,入戶的陽台花園,我們利用來做廚房,將原本使用率極低的空間變成使用率最高的空間,同時也擁有了一個舒適的廚房空間。
For the layout, a circle was embedded in the regular square space to define spatial boundaries. This circle also naturally solved the shortcoming of the dining room being too narrow. The balcony garden at the entrance area was used as a kitchen, hence transforming the originally least used space into the most frequently used, and obtaining a comfortable cooking space at the same time.
客廳空間立麵以白色的藝術漆為底,立麵的弧線線條來呼應餐廳的圓形,強調空間的線與麵的關係,通過弧形線條重塑空間的構成美學。深灰色水磨在居家空間的運用,更加彰顯空間的獨特。平天花更好的突顯餐廳圓形的天花線條,同時有力的拉升了高挑的空間感。餐廳與客廳一氣嗬成,互相融合。構成一個熱鬧的大家庭。我們可以想象人與人之間其樂融融的生活情景。黑色的QEEBOO骷髏邊桌,色彩斑斕的土耳其進口地毯等軟裝配飾,無一不是在強調空間的俏皮與精神性。
Finished with white paint, the walls and ceiling of the living room feature curves, which echo the circle in the dining room, highlight the relationship between lines and surfaces, and reshape the composition aesthetics of space. Besides, dark grey terrazzo was used as floorings, making the home more unique. In the dining room, the flat ceiling complements the circular lines on it, which injects a sense of loftiness to the space. The dining room and living room integrate into a whole, forming an area for the family to gather and spend a happy time together. Furnishings such as QEEBOO’s black skull side table and the colorful Turkish carpet all add playfulness and spirituality to the space.
臥室的設計我們強調最簡單的睡眠舒適性,通過圓形台燈與弧形玻璃去呼應客廳弧形的線條,背景的金色與空間整體理念搭配以強調設計的整體性。
For the design of the bedrooms, we focused on creating a comfortable environment for sleeping. The circular table lamps and curved glass echo the arcs in the living room. Besides, the golden backdrop is matched with the overall concept of space to underline the integrity of the design.
浴室以灰色水磨為底,金色不鏽鋼為構成要素,定製的手工不鏽鋼盆,強調設計者對設計細節執行的追求。
The bathroom is mainly covered with grey terrazzo, embellished by golden stainless steel and equipped with bespoke handmade stainless-steel basin, all of which demonstrate the meticulous pursuit of tiny details.
∇ 空間構成原型
∇ 平麵GIF
∇ 聚會場景
∇ 日常 家庭場景
∇ 收納空間
∇ 圓 幾何概念
∇ 圓邊界GIF
冷酷紳士 Cool Gentleman
C2戶型我們定義是一個冷酷紳士,理性與邏輯人文環境。空間似乎是動態的,一個穩定物質世界變化的存在。這是在幾何之外的一種邏輯,一種運動之中的形態。至於為什麼要這樣,我想這並不重要。
Apartment C2 is defined as a cool gentleman, a rational and logical living environment. The space seems to be dynamic, an existence to stabilize the changing physical world. It is a kind of logic outside of geometry, a form in motion.
冷靜與優雅並存的性格 它就像一個身穿黑色西裝的時尚寵兒。黑白相間的空間調性,少而精的軟裝配套也是我們對人居環境軟裝提出一種新的探討,追求一種極簡的生活狀態。
With a character that combines calmness and elegance, it is like a fashion darling dressed in a black tuxedo. The color palette of black and white, and the simple yet exquisite furnishings, showcase our new explorations into the decoration of human living environments, and pursuit of a minimalist lifestyle.
追求大宅的空間尺度,未來感的表皮與富有科技感的智能家居係統結合的人居空間,這是我們對現在豪宅的理解,功能隻是滿足現代人的生活基本訴求,體驗感與儀式感是功能之上的一種升華,用空間來表達一個人的氣質與性格是我們在探究的東西。
Going after large spatial scale, futuristic surfaces and smart home system, this is our understanding and impression of modern luxury homes. Functionality is only to meet the basic demands of modern life, while experience and sense of rituality are pursuits at a higher level, which are becoming increasingly important. What we are exploring is using space to express one’s temperament and personality.
入戶花園與客廳餐廳一氣嗬成,開放式廚房更豐富了空間的層次與節奏。在這沒有傳統的玄關與背景這種傳統手段的界限,隻有行雲流水的韻律,沒有動向的流動感,這樣的生活是不被界定的。我們希望把一種自然的無章法的物體變得有規律,建立一種秩序。我們將一種抽象的物質不停的在空間中重複,來建立空間的和諧與精神。
The balcony garden at the entrance area links up with the living room and dining room, and the open kitchen enriches the layering and rhythm of the space. There is no boundary set by traditional means such as a foyer or backdrop, only the flexible rhythm and fluidity of movement, making life here unconstrained. We hoped to regularize the disorganized objects, and establish an order. By repeating an abstract element in the space, we aimed to inject harmony and spirituality into the space.
空間中講究工藝與細節,天花多麵的曲線造型,弧線地麵石材與進口手工木地板的結合,鏤空的發光牆體無一不是對現代住宅中手工藝人的一種挑戰。
The interiors show meticulous details and exquisite craftsmanship. The curved shapes of the ceiling, the combination of stone floorings and imported handmade wooden floor boards, and the hollowed-out luminous wall, all posed a challenge to craftsmen during the production and construction process.
臥室以白為向,弧線與客廳的元素相呼應,和諧統一。白色的天花、牆體、床品搭配黑色木地板,結合燈光設計,營造動靜相宜的空間環境。
The bedroom is dominated by a white tone, with the curved lines corresponding with the elements of the living room, harmonious and unified. The white ceiling, walls and beddings go well with the black wooden floor, combined with lighting design, creating a spatial environment which intermingles the dynamic and static.
現代城市的居住環境中,我們希望打破常態,尋找空間的靈魂,做探究性的設計,我們正在發聲。
As for the living environment of modern cities, we wish to break the routine, find the soul of the space and carry out exploratory design. We are making a stand.
藝術不應是可望不可及的。在我們的設計裏,每一個作品都有屬於自己的空間表情。物理環境之外的藝術性與精神性。
Art should not be beyond reach. Each of our design works has its own spatial expression, and artistic quality and spirituality outside physicality.
∇ 線性概念
∇ 形體演變GIF
完整項目信息
項目名稱:C1-俏皮藝術|C2-冷酷紳士
設計機構:AD ARCHITECTURE∣艾克建築設計(WWW.ARCH-AD.COM)
總設計師:謝培河
設計團隊:艾克建築
施工團隊:艾克工程
項目地點:廣東汕頭
建築麵積:C1 160平方米|C2 205平方米
主要材料:大理石、啞光磚、藝術漆、白色啞光漆、木飾麵、木地板
設計時間:2018年10月
竣工時間:2019年5月
攝影師:歐陽雲
特別鳴謝:德國摩根智能家居、英國阿米納隱形音響、必美木地板、科勒、漢斯格雅、羅蘭西尼門窗、OIKOS、皓爾寶、梵品木飾麵、達興石材
Project name: Apartment C1 — Nifty Art | Apartment C2 — Cool Gentleman
Design firm: AD ARCHITECTURE (WWW.ARCH-AD.COM)
Chief designer: Xie Peihe
Design team: AD ARCHITECTURE
Construction team: AD CONSTRUCTION
Location: Shantou, Guangdong, China
Construction area: C1: 160 m2|C2: 205 m2
Main materials: marble, matte brick, special effects paint, white matte paint, wood veneer, wooden flooring
Start time: October 2018
Completion time: May 2019
Photography: Ouyang Yun
Special thanks to: German Moorgen Smart Home, Amina (invisible speaker), Beamy (wooden flooring), Kohler, Hansgorhe, Rolansini (doors and windows), Oikos, Heal-Power, Fanpin (wood veneers), Daxing (stone materials).
































































評論(1)
餐廳上方這麼愚蠢的一個大碗是怎麼想的,弄巧成拙,你吃飯頭頂扣一個如此具象的大碗而且配色笨拙的大碗不知道會作何感想