與自然相融 如草原般自由生長的住宅
西湖高爾夫位於西湖轉塘別墅區,配套杭州亞運會高爾夫球比賽場地,以遠山為背景,水岸與建築邊界的設計構想,植被獨特的肌理和野性之美,凝練出一席自己的天地院落。
自由 生長
FREE GROWTH
設計師以草原式住宅作為設計理念,充分利用景觀空間的最大化,以低矮舒展的外形,寬闊的屋簷,以及重複的水平線條,讓建築朝著地平線外無限延伸。
在建築設計上,注重屋簷的比例與輪廓,層層疊疊的水平方向讓陽台與庭院之間得到統一,整個建築猶如從地表中生長而出,生於自然,融於自然,構成與自然共生的有機建築。
連接 四季
CONNECT THE SEASONS
室外的草坪與高爾夫球場遙相呼應,自然地延續至居所之內。讓居住生活擁有了嬉戲於曠野之中的浪漫色彩。
庭院內延伸出一條石磚小道,鋪設出道道層次感,仿佛是一幅抽象的山水畫作,展現自然流動的詩意。
設立一處休憩場所,漫步道旁,景觀疊加,樹木林立,在此品茶交流,沐浴陽光享受舒適愜意的午後時光。
延伸 共生
EXTENDED SYMBIOSIS
設計師強調從內部空間到外部空間的延伸,增強了空間連續性,以壁爐為中心點向外蔓延,讓空間內呈現出與自然環境相聯的軸線傾向。
視線移遊,大理石桌麵、皮革沙發、木飾麵等自然材料應運而生,與黑白灰的極簡色調相互碰撞,帶來純淨大氣的視覺感受。
開放格局下,撥響人與自然相連的琴弦,廊間巨大的落地窗使窗外的自然景觀如同一幅巨型的油畫般屹立,四季盡收眼底,形成人與庭院自然景觀的對話。
餐區通透的一體化設計,打破了空間的局限性,溫潤的木質色調包裹圓形的大理石餐桌,與天花板內嵌燈帶相呼應,二者相輔相成。
自然 融合
NATURAL FUSION
才感盛夏,忽而立秋,
四季更迭,所至居所。
茶空間以“簡”和“素”為核心美學,遵循自然的本意,簡而不繁,雅而有致,用溫潤的實木和古風榻墊營造出一方深邃而幽靜的安放心靈之所。
淺色藝術塗料,讓樓梯區域的過渡更加自然,去除多餘的裝飾,一幅碩大的彩色肖像畫映入眼簾,足以展現空間的極簡美學。
室外的景色與空間結構形成一幅對比強烈的自然光景,帶來生機勃勃的家居氛圍,退去建築邊界,美的感受由內而外發生。
平直的長條形開窗,將室外景色引入車庫內,綠色從始至終環繞在家的每一個角落。收納櫃的設計讓車庫增加了儲物功能,為居家生活帶來更多便利。
從進入家的一刻開始,與自然棲居的生活,就此打開。
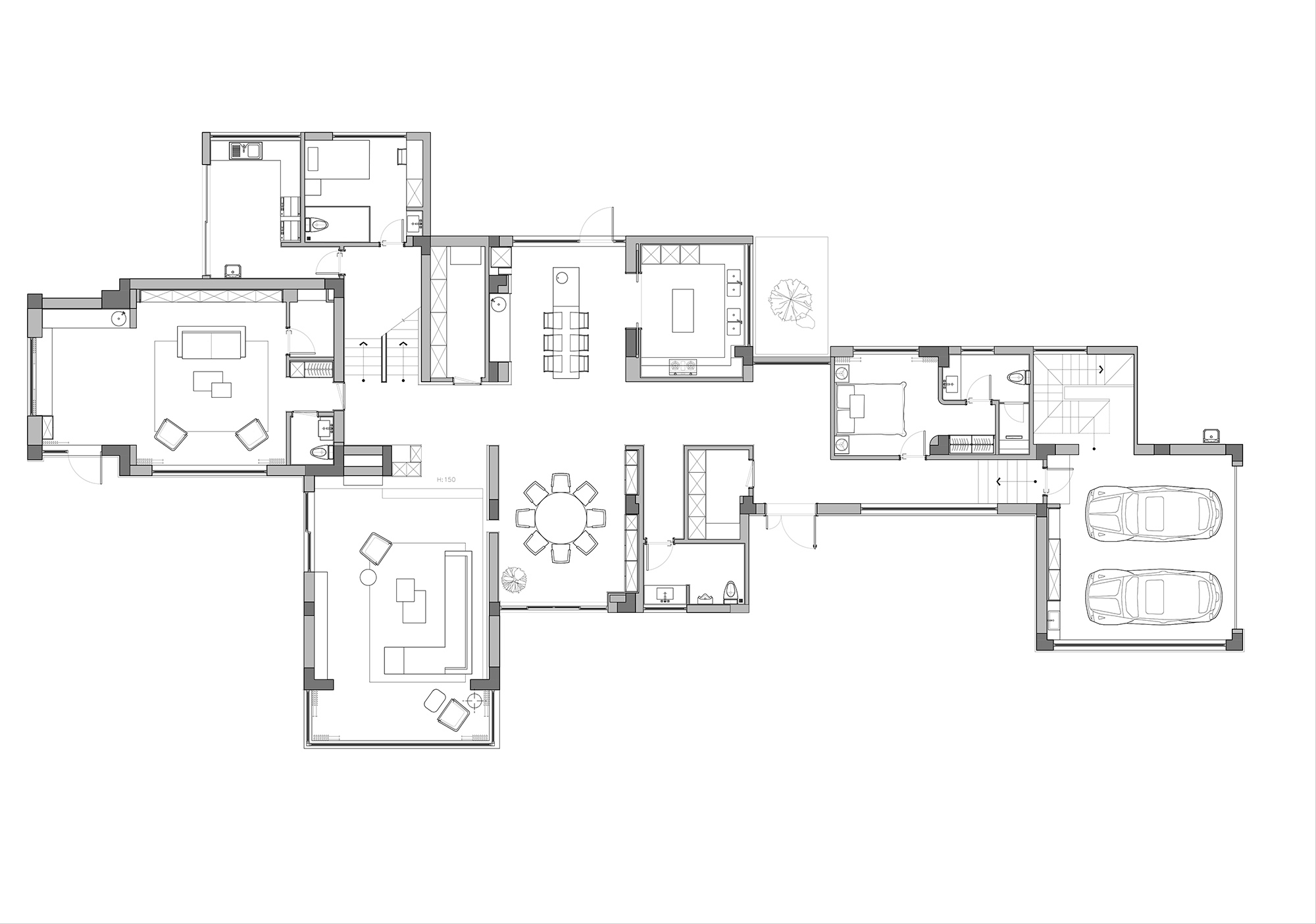
∇ 平麵圖
項目信息
項目名稱 | NAME:西湖高爾夫別墅
設計單位 | DESIGN:杭州時上建築空間設計事務所
設計內容 | DESIGN CONTENT :建築改造、室內設計
設計團隊 | DESIGN GROUP:沈墨、陶建浦、張浥塵、王俊傑
景觀團隊 | LANDSCAP DESIGN:杭州玖鹿景觀設計 張嘉元
燈光團隊 | LIGHT DESIGN:杭州樂瀚照明設計
軟裝團隊 | DECORT DESIGN:鄧雯倩
項目攝影 | PROJECT PHOTOGRAPHY:阿刁(瀚墨視覺)
建築麵積 | PROJECT SCALE:1000 ㎡
施工單位 | CONSTRUCTION:杭州渡彙裝飾
材料品牌 | MATERIALS:地板:術木,家具:minotti,智能:CONTROL.4,木作:C&L,藝術塗料:DANILO
項目地址 | PROJECT ADDRESS:杭州西湖高爾夫
完工時間 | COMPLETION TIME:2022/12









































