吉隆坡阿麗拉酒店位於這座城市曾經的殖民地布裏克菲爾德街區和新興街區孟沙的交界處,新與舊的街區之間體現著過去與現在的聯係。酒店包括一座塔樓的地上一層和頂部的八層,其中設有五層客房區域和三層公共區域。如恩負責酒店部分的建築和室內設計,采用整齊的方格結構貫穿建築外立麵和室內空間,並通過這種規律的格式框定出酒店不同功能空間的界限。
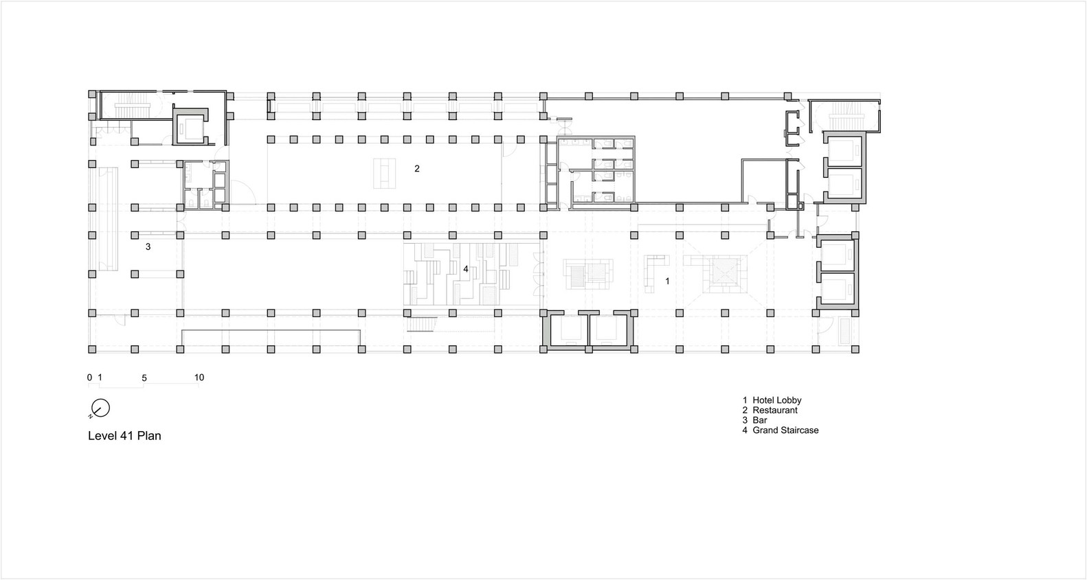
地上一層也采用同樣的方格結構,包括酒店的入口和頂篷。進入一層的空間,人們仿佛立刻置身於布滿茂盛植被的“城市綠洲”。到達42層的酒店大堂後,雙層挑高的空間和延續的方格結構構成一盞巨大的“燈籠”,點亮周圍的城市景觀,也為酒店內部空間帶來充足的自然光。
走出大堂,人們可以沿著一條設計頗具戲劇色彩的階梯進入泳池的區域,階梯本身也成為一個可以觀景的平台,而觀景的人本身也成為風景的一個部分。於此,室內和室外之間的界限變得模糊,室外庭院也延續了方格結構,將人群聚集的空間置於酒店的中心。
酒店的公共空間圍繞室外庭院依次布局,跨越三層樓高,由規則的柱梁組成,框定出吉隆坡令人驚歎的城市景觀,同時也將室外庭院與都市的嘈雜隔絕開來。自然與建築融合的景觀概念從建築外部延續至室內空間,成為串聯所有公共空間的關鍵要素,也定義了“城市綠洲”的設計構想。
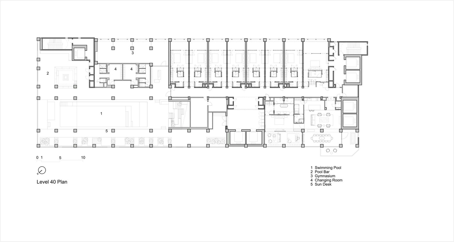
位於室外庭院之上的兩層是特色餐廳、雞尾酒酒吧和屋頂露天酒吧。圍繞著室外庭院的各個空間以各自的功能製造出驚喜的體驗,為酒店注入豐富的活力。定製家具和精致的黃銅元素為灰、白、木色基調的空間增添了恰到好處的點綴和細致美。
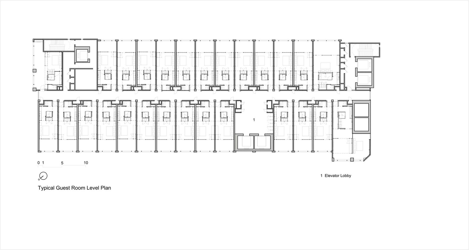
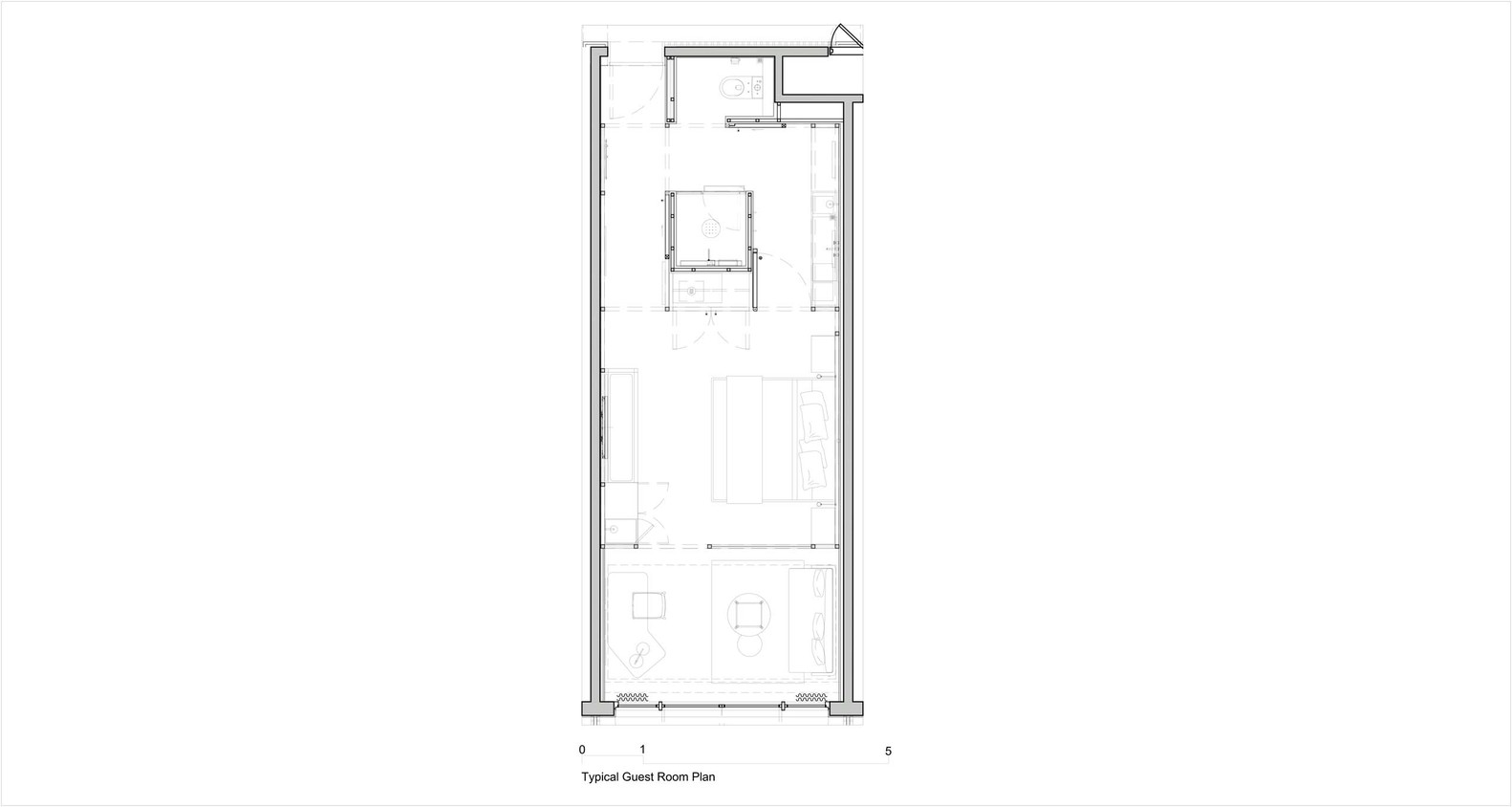
客房的設計著重於通過兩種不同的元素界定空間布局:“小屋”和“室內庭院”。“小屋”的概念源自小的村落,小屋就是一個容納生活日常的空間。浴室有如一個漂浮的盒子,置入“小屋”的結構中,同時形成自由穿梭空間的動線。
客房窗戶的區域采用“室內庭院”的設計概念,形成一片私人的“庇護所”,讓住客在這裏休憩放鬆時,還能夠欣賞到孟沙街區和更遠處的城市景觀。
∇ 地麵層平麵圖
∇ 標準客房樓層平麵圖
∇ 標準客房平麵圖
∇ 40層平麵圖
∇ 41層平麵圖
∇ 側立麵圖
∇ 背立麵圖
∇ 正立麵圖
∇ 剖麵圖
完整項目信息
項目名稱:吉隆坡阿麗拉孟沙酒店
項目位置:馬來西亞吉隆坡
項目類型:設計酒店/度假酒店
建築麵積:15000.0平方米
完成時間:2018
設計公司:如恩設計研究室
設計團隊:Carmen Marin, Chiara Aliverti, Daisy Yuen, Suju Kim
主要負責人:Lyndon Neri & Rossana Hu
高級經理:Federico Saralvo
高級建築設計師:Jacqueline min, Xiaofeng QI
攝影:Pedro Pegenaute
廠家:Grohe, Neri&Hu























































