關於
肆月叁日酒店位於長沙市天心區白沙路129號,周邊業態神秘有趣,被稱為長沙老九門,也是長沙最大舊貨市場天心閣古玩市場。這裏有許多上世紀的老物件,神秘複古的文化氛圍是一直存在的,而肆月叁日酒店作為後來者,既想要與之相融,還想要打造出獨特的品牌特性,在空間上,亦需用合適且巧妙的設計來回應。
01 入口
當天色漸暗,長沙這座城市的“麵紗”仿佛也被黑色分解,在燈火的照耀下,處處躍動著生機與活力。紮根於此,肆月叁日酒店也與之有著相似之處,無論白晝或暗夜,它始終會用包容與溫暖,來迎接你。酒店入口以黑色疊加木色,散發出內斂沉穩的意味,每當入夜,門頭上整齊排列的球燈便又展現了其閃耀、活力的一麵,給老建築賦予了新的生機,在新舊對比中走向平衡,迸發新的生機。
02 大堂
室內空間層高優越,入口即是接待前台,圓弧元素中和方正空間,陳列的抽屜上點綴細微光芒,向經典致敬,複古又摩登, 一排鑰匙掛在下方,連接著舊街區的記憶。
∇ 接待前台軸測
內斂複古的墨綠色的複古小花磚,與暖橙色的海洋板形成了巧妙的色彩效果,步入其間,仿若進入另一個世界,空間情境創造出的儀式感,讓每一個的駐足更加印象深刻。空間將舊有的一些裝置元素全新演繹,通過營造情景感,形成更有質感的空間體驗。光影灑落在材質表麵,另有一種複古又神魔的幻視感。圍繞著收銀台及行李寄存室,打造中心環繞的遊覽路線,利用體塊的拆解與重構,給空間的敘事增設了更加豐富的層次,不予路徑加法,隻予視覺新章。
03 餐飲區
後方是做了夾層處理的就餐區,天花使用鏡麵,打破夾層的空間限製,重複與陣列的形狀與光點,在天花上無限延伸,營造視覺觸點。
設計點的鋪陳無處不在,豐富而不繁雜,與高飽和的軟裝相搭配,構成了空間的故事感。
04 過道
光有了形狀,包裹著空間,也引導著客人前進的步伐。
走廊運用了大麵積的海洋板,複古的幾何紋路地毯,線條光與門牌光交疊,創造出更加有趣的空間層次。
05 客房
延續複古質感,客房的配色使得空間簡練又有質感,置身其中,既有空間的藝術美,也有家的溫暖與質感。
肆月三日,於業主而言,是一個意義重大的紀念日;於尺鍍而言,是一次風格上的創新與嚐試,而每一次的創造性工作也給予了同樣的回報,感恩!
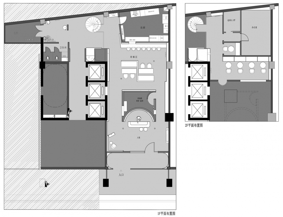
∇ 一、二層平麵圖
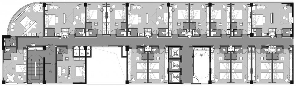
∇ 六層平麵圖
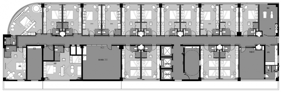
∇ 九層平麵圖
項目信息
項目名稱:肆月叁日酒店
項目類型:酒店
項目設計:2023.02
完成年份:2023.08
設計團隊:尺鍍美學
項目地址:長沙市天心區白沙路129號
建築麵積:2000㎡
攝影版權:肖湘攝影 – 人物攝影:子豐 – 模特:牙膏
客戶:趙總
材料:複古小花磚、海洋板、黃銅不鏽鋼
品牌:肆月叁日





























