LOFT中國感謝來自 阿穆隆設計工作室 的酒店民宿項目案例分享:
北京周邊有很多太過講究的房子,講究的千篇一律,講究的太不講究。瓷磚貼麵、洋紅粉藍,總是那麼出挑,這個項目原先也是這個樣子。
錢不能花太多,所以用在山上拾的荊條子把建築給裹起來,隱在山裏,好看也遮陽。
塔房子用剩下來的腳手架順手就搭在院子裏,拉上遮陽的網子,日頭出來的時候坐在底下,看著層巒疊嶂,美。
業主給他這個民宿起名叫“小也山穀”,但我更想叫它“野山穀”。
There are many houses around Beijing that are too fastidious, too uniform and too fastidious. Ceramic tile veneer, magenta pink blue, always so selective, this project was originally like this.
Money can’t be spent too much, so it is used to wrap up the building with the thorns picked up on the hill, hide in the hill, and shade the sun as well.
Tower house with the remaining scaffolding on the courtyard, pull up the shade net, when the sun comes out, sitting under, looking at the mountains, beautiful.
The owner named his house Xiaoye Valley, but I would like to call it Wild Valley.
∇ 改造前,Before transformation
∇ 外立麵,facade
∇ 庭院,Courtyard
∇ 庭院夜景,Courtyard night scene
∇ 公共空間,Public space
∇ 黑色房間,Black room
∇ 白色房間,White room
∇ 銀色房間,Silver room
∇ 木色房間,Wood room
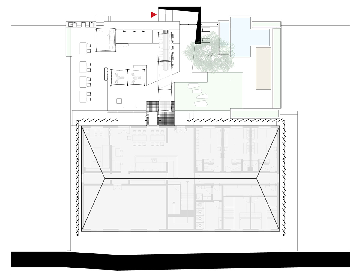
∇ 庭院平麵圖,Courtyard plan
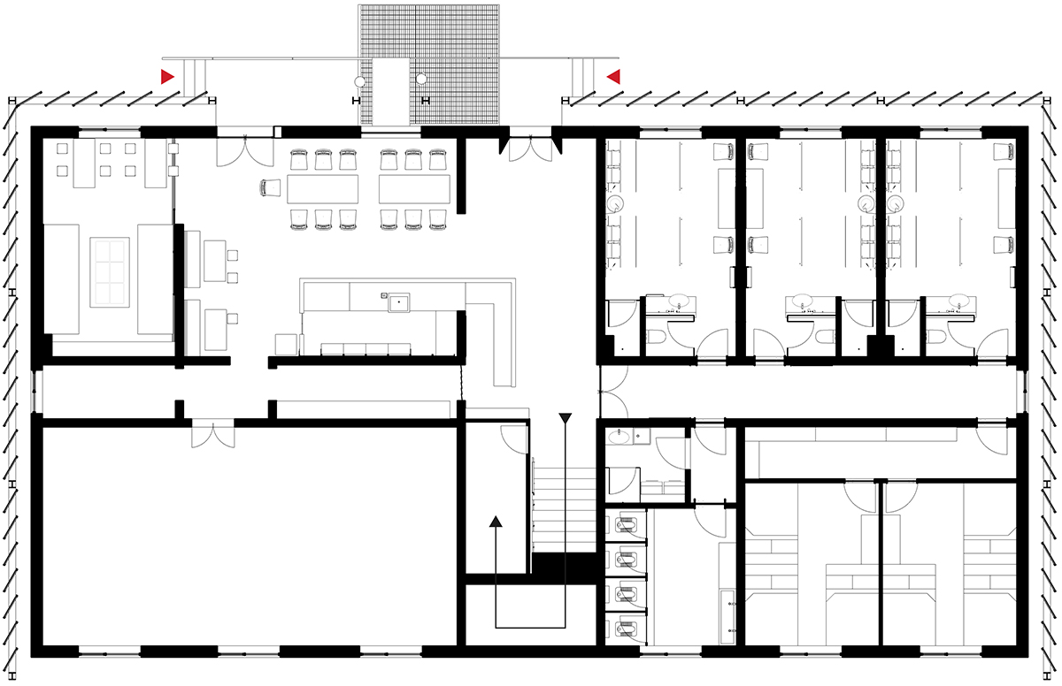
∇ 一層平麵圖,First floor plan
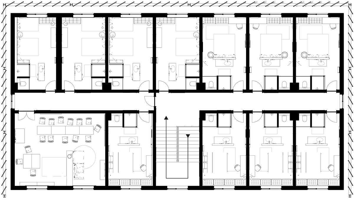
∇ 二層平麵圖,Second Floor plan
完整項目信息
項目名稱:“XIAO YE valley”小也山穀民宿·延慶
項目地點:北京·延慶石佛寺村
完工日期:2018.08-2019.04
項目麵積:850㎡
設計公司:阿穆隆設計工作室
聯絡郵箱:13522430436@163.com
主創建築師: 阿穆隆
設計團隊: 宋小有,劉寵
主要材料:荊條,多層板,鋼,鍍鋅板







































