設計的開始
業主是一對在北京城區工作的中年夫妻,2022年他們在北京遠郊平穀京東大峽穀附近租下了兩棟小房子,希望改造成一個有溫度、具有田園生活屬性的民宿。與業主的聊天中她提到的《人生果實》令我印象深刻,這是一部圍繞兩位夫妻三餐四季的日本紀錄片。雖未到現場,但通過前期的溝通我們已經對設計有了大概的想象。
初到現場,被項目環繞的山體及周邊自然環境所吸引。但原有建築現狀並不理想,兩棟房子一大一小位於道路的拐角處、背靠山體,室內及庭院空間完全暴露在人們下山時的視野之中。建築為典型北方農村自建房,外觀和功能布局過於粗野和單一。如何與周邊景觀對話、創造豐富的室內外空間以及營造舒適自然的田園空間氛圍成了此次改造設計的重點。
∇ 原始場地
幾何的介入
由於建築內部空間較小、北方冬季寒冷,將原有的庭院空間納入室內能很好的解決禦寒、流線以及擴展室內空間的問題。大房子東側山牆是上山時被觀看的主立麵,三角形在幾何圖形中易於識別,且極具視覺衝擊力。斜屋麵也比避免了因垂直體量過大造成的視覺壓迫,同時小房子的矩形體量作為背景,與斜屋麵一正一斜,互為因果。
除了考慮視覺和心理因素外,我們也希望能與中國傳統建築產生對話與呼應。屋頂、牆身和台基的中國古建經典三段式構圖,同時解決了此次設計中處理入口高差、內部圍合與采光觀景的實際功能需求。
∇ 概念草圖
入口空間
原有建築大門緊鄰並正對街道,設計將出入口方向垂直扭轉並嵌入建築內部,根據建築外部形態形成了三角形和矩形的入口空間,不僅具有雨棚的實用功能,同時強調入口的空間引導性,形成了內外過度的灰空間。
發光的盒子
即使在夏季,山裏的日落也很早,整個村子會變的暗淡。傍晚室內的燈光點亮建築和道路,發光的玻璃盒子為訪客和路人心中的“燈塔”。
觀景
場地道路南側有一片不大的園子,業主希望後期改造成為民宿的服務配套。斜屋麵伸出的挑台拉近了對麵山體的觀看距離,也成為日後與對麵場地對話的平台。
改造前原有建築屋頂無法上人,我們在兩棟房子間的縫隙設置了外掛樓梯,從而避免樓梯占用過多的室內空間,同時也能為訪客提供不同觀賞山景的視角和空間感受。
內部空間
斜屋麵覆蓋下的空間有了更多生活場景的可能性。通過重新設計標高和組織流線,原有樓梯得以保留,樓梯下部形成豐富的活動空間。
我們想把樓梯和連廊這種交通屬性的服務性空間重新定義,讓其成為空間造型要素中的主角。連廊不僅是聯係室內外的通道,在空間劃分和建築外部造型中也起著關鍵的作用。樓梯、連廊以及不斷變化的高差同時出現一幅場景,會讓人想起埃舍爾作品中那種不同空間和視角並至的畫麵。
設計室內空間時,我們沒有使用或挑選任何特殊的材料。設計基調是使用木材這種天然材料,希望通過使用普通但優質的木材來體現放鬆、舒適和某種程度的品質感。結構、玻璃、欄杆這些建築語彙成了室內元素的一部分,改造後室內空間具有更多建築的意義,模糊了室內和室外的界限。
客房空間沒有刻意做過多裝飾性設計,而是根據原有房屋現狀將起居、休閑、觀景等功能要素融入。同時結合經營需要呈現出建構、本質和獨特的空間形態。
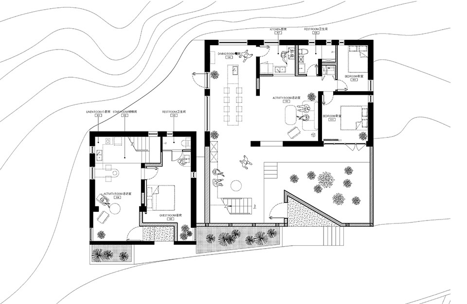
∇ 一層平麵圖
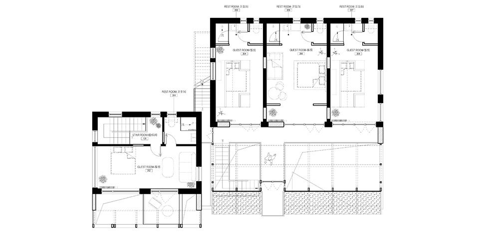
∇ 二層平麵圖
項目信息
項目名稱:有梨民宿
項目類型:民宿、度假酒店
設計方:積木盒子建築設計事務所
項目設計:2022
完成年份:2023
設計團隊:申明、馬妍妃、白焱飛
項目地址:北京
建築麵積:420㎡
攝影版權:積木盒子建築設計事務所
合作方:李根 (結構顧問)
客戶:有梨民宿
材料:玻璃、鋁板、鍍鋅鋼、毛石、木板








































