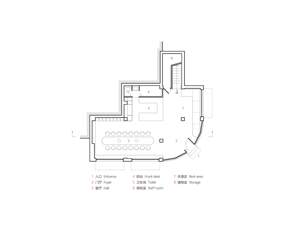
微流青旅位於上海市內環高架旁的路口轉角,背靠居民住宅區,前臨內環高架路。改造前,這裏是一家經營不善的家庭旅館,房間格局普遍狹小,半數房間無采光。一樓出租給快遞公司作為物流倉庫。微流拿下此處租賃權後,輯畫設計對此物業做了全方位的設計改造。
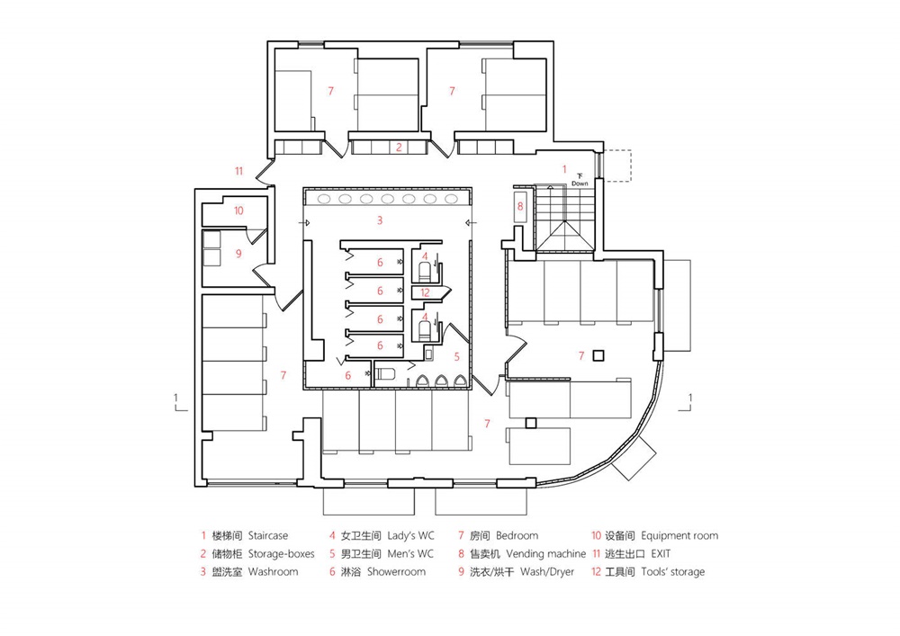
微流一共上下兩層,一層作為微流青旅的公共客廳,不但向客人也向城市24小時開放;二樓是微流的睡眠區,僅供微流客人入住使用。二層布局上做了全新調整,去除了全部隔牆,僅保留承重牆後,沿外牆全部布置房間,中間作為衛生間和淋浴間。所有隔牆均使用玻璃磚砌築,從而保證所有房間均有采光的同時,中央功能區也能有光線到達。
微流大量采用條紋玻璃磚。通過和玻璃磚供應商的合作,由工廠定製加工各角度的轉角玻璃磚以及封邊玻璃磚,最大可能的塑造出純玻璃磚牆的設計效果。房間床位是由輯畫設計為房間單獨設計定製的,根據每個床位的位置設計了不同高度和開窗方式。同時每個床位可以完全拆成板式,方便重複使用甚至批量生產。
外立麵化繁為簡,在保留原開窗的情況下,去除原來的窗套線腳。拆除房屋轉角的臨時鋁板,使用玻璃磚牆填充,外牆刷白。大麵積的玻璃窗和玻璃磚使公共客廳在白天和城市的互動最大化;而在夜晚,客廳的燈光能成為這昏暗街區的一座燈塔。
微流是城市的一道切口,他處於高架的背光處,周圍沒有配套,多是小加工店和物流公司,這是一個不太有商業氣息的位置。但微流通過簡約現代的設計,憑借互聯網的ota平台,突破街區的種種障礙。
在開業後微流青旅給街區帶了了每月超過千人的人流,而且他們大部分都是18-25歲的年輕大學生,其中不乏港澳台及外國人。微流成了這街區一道閃光的切口,他不依托於社區,而是用極具反差甚至批判性的姿態立足這個街區、影響這個街區。當地的居民常常駐足良久,看著形形色色的年輕人進出微流,感覺又好奇又驚訝,為何一條原來缺乏生氣的街道似乎一夜之間充滿的生機。
∇ 二層平麵圖
∇ 南-東立麵展開圖
完整項目信息
項目名稱:微流青旅
項目位置:中國上海市虹口區中山北路33號
項目類型:酒店空間/青旅
項目麵積:280平方米
完成時間:2018
設計公司:輯畫設計
主創設計:吳回飆
攝影:徐一斐, 劉洪曉

































評論(1)
可以 這個很棒