Tapí一開始是在食品卡車上運營的,現在他們有了自己的實體店,該項目麵臨的挑戰是如何將巴西的地方主義(北部/東北部)與一個年輕而成熟的品牌的國際化元素結合起來。客戶希望在裏約熱內盧的城市情景中實現低成本項目,而不會忽視其原料食品——木薯(從木薯根中提取的澱粉)。該研究考慮了顏色和紋理——從食物的製作方式來體現該地區的審美特征。
Tapí, which began operations with a food truck, migrated to the physical store with the challenge of planning the combination of Brazil’s regionalism (north/northeast) with cosmopolitan aspects of a young and sophisticated brand. The client wanted a low-cost project in Rio de Janeiro’s urban scenarios without leaving aside artifice of the origin of its raw material food – tapioca (a starch extracted from cassava root). The research considered colors and textures – from the way food is prepared for the region’s aesthetic traits.
我們為商店定義了一個清晰而中立的基調。沙子、木頭和稻草的陰影。從這個組織中,商店的所有元素在訪客的體驗中發揮了重要作用。籃子燈是在巴西北部發現的。典型的北/東北的二分門,以及立麵框架的構成,帶領觀眾到巴西旅行。櫃台上有一個銅的細節,靈感來自本土藝術,也是Tapi品牌的一部分。
We have defined a clear and neutral basis for the store. Shades of sand, wood, and straw. From this organization, all the elements of the store played a fundamental role in the experience of the visitors. Simple design joinery enhances the “handmade” aspect. Elements of the logo were printed on part of the wall tiles. The baskets lamps were found in North Brazil. The bipartite door, typical of the North / Northeast, along with the composition of the frames of the facade, take the viewer to a trip through Brazil. The counter has a copper detail inspired by indigenous art, and also part of Tapí’s branding.
∇ 外立麵圖
∇ 平麵圖
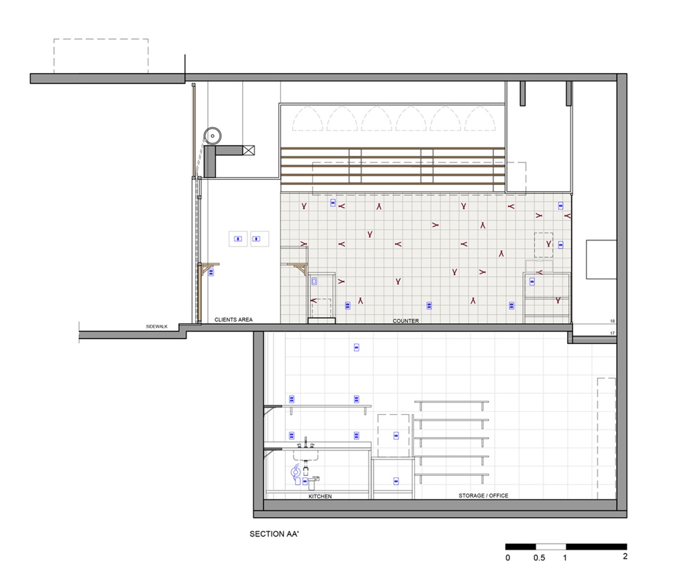
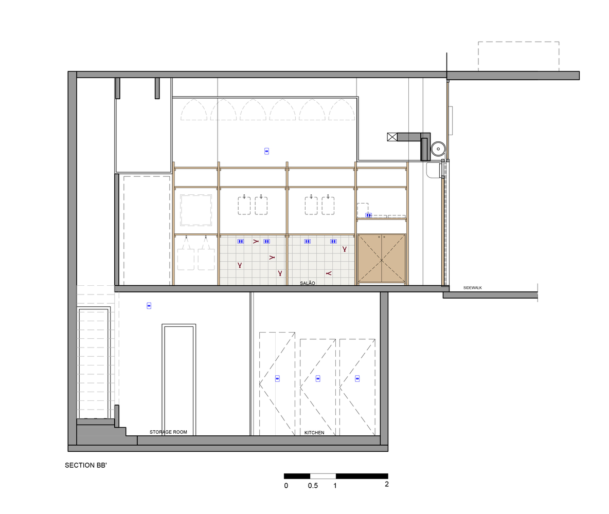
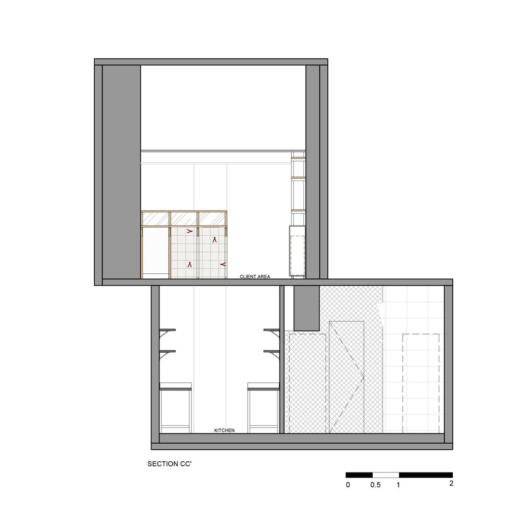
∇ 剖麵圖
完整項目信息
項目名稱:Tavares Duayer Arquitetura
項目地點:巴西,裏約熱內盧
項目類型:餐飲空間/小店
項目麵積:50㎡
完成時間:2018
設計公司:Tavares Duayer Arquitetura
設計團隊:Alice Varella Tepedino, Nathalie Ventura, Fred Gomes, Clarissa Paes
攝影:Nathalie Ventura






















