兆Sushi位於杭州西湖右岸、商圈腹地武林路9號商業街區,這裏步行三分鍾即達西湖,向前一步是繁華,退後一步是閑暇。
“大隱住朝市,小隱入丘樊。丘樊太冷落,朝市太囂喧。” 在白居易的詩中似乎朝市與丘樊二者隻能得其一,不能兼而有之,但我們希望兆SUSHI能夠成為繁華商業街區中的一方丘樊。
∇ 項目區位
∇ 武林煙火和靜謐西湖
沿武林路朝西湖方向走去,看見一堵素牆開長條小窗,窗後置景,仿佛內有大片竹林,這裏便是兆Sushi。
入口內凹,成為外部環境與室內的過渡空間,使進入室內具有儀式感。當天色幽藍,夜幕降臨,推開木門,暖色的光從幽暗的通道溢出,通道盡頭若隱若現輕舟一葉,如同時間的倒影停駐在風靡的波濤間,外界紛繁複雜的喧囂仿佛隨風而去,留下一片寧靜的湖麵和船影相映。
通道兩壁、天花與地麵均采用黑色材料,突出內部暖光的指引。穿過通道左轉進入連接板前和小室的長走廊,走廊左端是板前入口,右轉是小室入口。走廊燈光亮度依舊昏暗,板前的光透過走廊高高的竹窗柔和灑出,板前門口的壁龕與小室門旁的燈箱明亮,光線的聚焦和變化帶來層次感,引導食客進入更加舒適、私密的用餐空間。
拉開障子門進入板前,豁然開朗,亦如穿過繁華武林路忽然望見西湖的瞬間。我們希望食客在板前區域能夠感受到寧靜和放鬆,心無旁騖的享用料理。
板前是一個十分方正的長條形空間,客人麵向師傅的操作台和背景牆一字坐開,用餐的注意力集中在座位向前的區域。因此我們將燈光集中在這個空間的前半部分。
板前的構成類似於一個傳統的日本和室,客人麵對的背景牆是和室中最為重要的“床の間”,深色老木作為床柱將“床の間”分為左右兩部分,兩側通過一個隱蔽的小竹窗相通。牆麵采用手工批刷感十分明顯的橫向肌理,細竹將置物架吊起,黑色手工邊緣的石板為台麵,來自日本的陶瓷小器物用為裝點。老木與細竹,手工牆麵與粗糙石板,精致器皿與柔和燈光,我們通過多種質感的拚貼與對撞呼應兆Sushi的飲食理念。
兆Sushi希望讓食客吃到新鮮食材的本真味道,因此在空間中我們多使用天然的材料、原始的加工方法,如手工錘紋的肌理木、整根老木、整根竹子、手工肌理的漆、竹子剖開製成的正割竹格柵等等。這些材料盡量保留自然邊緣、手工痕跡,將他們進行豐富多變的銜接和組合,猶如食物賦予味蕾的豐富層次感。
∇ 材料板
店內各個擺件隱晦地映射西湖的自然景觀,是兆Sushi杭州西湖店獨特性的體現。空間元素上創造大大小小的窗和壁龕,實現空間的聯通和互動、製造光影、賦予空間以生命力。
小室作為一個更私密的用餐區域,我們使用了可調光的射燈,將燈光準確投射到食物擺放的位置,周圍的環境光相對昏暗,營造屬於小室的私密感。
兆Sushi的空間雖小,但我們希望它能夠充滿巧妙的構思與細膩的雕琢,在這個別有洞天的小世界裏,時間仿佛停駐,忙碌和喧囂成了陌生的存在,每一位食客都可以在這裏享受屬於自己的寧靜片刻。
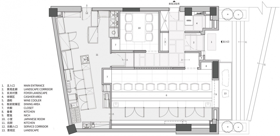
∇ 平麵圖
項目信息
業主:兆Sushi
設計方:UN-GROUP 未集建築
項目地點:杭州市武林路9號
建築麵積:104㎡
施工圖:上海呈煜空間設計有限公司
燈光顧問:Studio BLRR 不熱燈光設計工作室
攝影:劉鬆愷
項目設計:2023年6月-8月
施工完成:2023年11月































