Nir Shmueli Studio和Izzy Michael為位於以色列特拉維夫的Boaz Ben Zur & Co.律師事務所設計了寬敞的辦公室。
Nir Shmueli Studio and Izzy Michael have created the spacious offices of Boaz Ben Zur & Co., a law firm located in Tel Aviv, Israel.
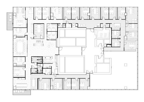
Boaz Ben Zur & co.律師事務所位於特拉維夫市中心一幢高層建築的27層,麵朝地中海。該項目代表了客戶對新辦公室的期待,該辦公室采用了清新,寬敞且永恒的設計。
Boaz Ben Zur & co. Law Firm is located in the heart of Tel Aviv, on the 27th floor of a high-rise building, facing the Mediterranean Sea. This project represents the client’s desire for a new office with a fresh, spacious yet timeless design.
客戶需要一個開放的公共空間,同時為高端客戶提供最大的隱私,這決定了一個獨特的總體布局、材料和空間設計策略。
The client’s demand for an open common space while providing maximum privacy, for high profile clients, dictated a unique design strategy for the general layout, material and space design.
因此,公共空間盡可能多地享受地中海和城市的景觀。通過將公共功能定位於戰略性節點(廚房和餐廳區、主會議室、私人接待處),設計團隊實現了開放的框架視野和自然光,同時每個單獨的辦公室保持私密和隔離。同樣的方法也使設計團隊在分區、天花板、照明和地板方麵有了類似的應用。
Therefore, the common spaces enjoy as many “Vistas” as possible to the Mediterranean Sea and the city bellow. By locating public functions in strategic nods (Kitchen & Dining area, Main conference room, Private reception) the Architects achieved open framed views & natural light, while each individual office remains private and discrete.The same approach has led the Architects to a similar application regarding partitions, ceilings, lighting & flooring.
廊空間投入了大量精力,因為該項目包含35個獨立的私人辦公室,它們決定了長長的走廊。應用等間距的牆壁貼條,將這個富有挑戰性的空間變成了光和藝術的慶典。
Much effort was dedicated to corridor spaces, since the project contains 35 individual private offices which dictated long corridors. Hence, these corridors were applied with equally spaced wall mounted strips, which turns this challenging space into a celebration of light & art.
主要項目信息
項目名稱:Boaz Ben Zur & Co. Law Office
項目地點:以色列特維拉夫
項目類型:辦公空間/現代風格
項目麵積:950平方米
完成時間:2019
設計公司:Nir Shmueli Studio and Izzy Michael
攝影:Beller






















