LOFT中國感謝來自 深圳壹方空間設計有限公司 的住宅項目案例分享:
生活美學
肇慶四會是嶺南地區的千年古邑,因“四水會流”而得名,受廣深珠區域的利好輻射,地塊發展潛力可期。麵對這一山水宜居之地與新舊融合之勢兼而有之的理想片區,四會保利和悅江山別墅樣板間,為當代都市人群提出蘊含東方生活智慧的全新居住構想。
本案由壹方設計同華南保利攜手打造,反思當下的“網紅”式設計,逆向回歸居住本身,力求從生活的細微處著手,結合現代手法和藝術語境闡述地域文脈與情感歸屬,引領未來城市居住空間的理想範本。
東方清雅與摩登時尚的極致融合
該戶型以城市進階新貴追求品質與閑適生活為訴求,設計師借鑒中式園林的障、透、點手法,進行淡韻清雅的場景演繹。
主廳用通高的條形木格柵充當屏風和背景,並貫穿到其他功能區的窗欄細節,製造隔而不斷、移步易景的雅趣體驗。
貝金米黃大理石溫潤而遒勁,有著隱約可見的自然肌理,鋪墊墨色山水般的空間基調。一尊深色的牆壁掛件成為點睛之筆,抽象主義的輪廓蘊含柔性的力量,與散落於空間各處的陳設裝置構成連續性的後現代混搭藝術。
契合當代人居需求的場景演繹
空間的布局規劃最大化地遵從人體的居住尺度,各功能區依照開放式的建築語言和行走動線而設,構建忠於生活日常的簡練場景。
客廳、餐廳及廚房等公共區域實現一體化的流暢銜接,以當代美學格調的構圖與鋪陳,凸顯設計筆觸之下的意境之美。
家具的搭配與選擇也顯現設計師的整合功力。中國傳統的方圓文化被提取為家具形製,經由簡約的造型語彙和輕奢材質,將知性、個性與藝術感升華為一種多元共生的居住方式。結合安放於角落的各式綠植盆栽,與戶外的山水綽影相映成趣。
居住者精神與情感的詩意安放
書房是人類思想的棲息地。長矩形的桌台上書籍與文具有序排列,組合式的大型書架牆將時光浸染的收藏擺件精心陳列。
在素雅的底色氤氳下,一切都以靜謐安然的姿態存在,經由設計手法的平衡詮釋,顯露著源自東方風雅的文士情結。
臥室作為偏私密的區域,在延續東方清雅之意的同時,以更樸素而細膩的細節處理隱現生活的溫度。
東方意象的床頭飾麵串聯起房間的情感主線,搭配雅致的貼身布藝和微小物件,滲透出休憩之所的柔軟與舒適感,也將質感空間的生命力娓娓道來。
完整項目信息
項目名稱:保利和悅江山別墅樣板間
項目性質:別墅樣板間
項目地址:廣東肇慶
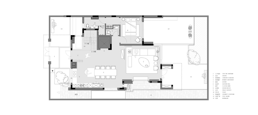
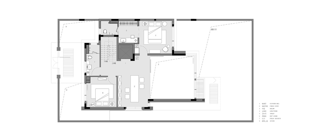
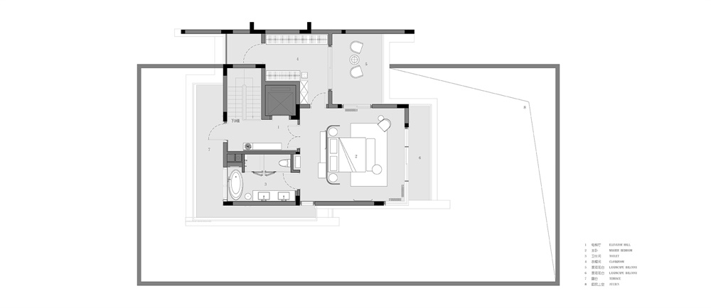
項目麵積:269平方米
硬裝設計:ONE-CU壹方設計
軟裝設計及執行:ONE-CU壹方設計
完工日期:2019年5月
項目攝影:三像攝影 張靜
特別鳴謝:華南保利實業有限公司江肇公司
















































