LOFT中國感謝來自 ONE-CU壹方設計 的複式樣板房項目案例分享:
萬科 : 兼顧現代時尚與藝術人文的頂級複式
伴隨著日常消費升級滲透到高端居住領域,建築的美學風格、空間的設計裝飾以及細節配套服務,正在成為高淨值人群的重要置業考量。
在此背景下,壹方設計從場域的天然優勢和建築的改造潛力出發,為空間置入了一個兼具現代時尚與東方人文的生活場景,創造出專屬於在地環境的獨有居住記憶。
∇ 客廳
藝術與人居融合
項目地塊毗鄰滻灞生態區,景觀資源及生態環境優良,周邊教育商業配套相對齊全。設計著眼於城市新中產的居住升級需求,力求給予客戶超值期待的高品質生活。為此在方案施行中依循現代東方的設計理念,讓空間具備最大限度的時尚感和品位度。
∇ 客廳
木質與黑鋼構築的挑空書架牆,以不可量度的氣勢貫通一層的客餐廳,成為最大的視覺停留點。書架背麵為鏤空的鋼拉網,使得樓梯與客廳之間形成隱約的視覺互動。牆麵及天花以精致的古銅色金屬構件和木作造型藝術加以裝飾,讓整個空間更具時尚氣息和柔性觸感。
∇ 客廳一隅
∇ 客廳細節
∇ 餐廳
∇ 餐廳細節
留下時間的記憶
本案雖為複式產品但尺度卻並不大,因此在確保各功能區高效布局的同時,設計上亦將每個公共空間的亮點做足。木材攜帶天然的紋理依附於線條流利的家具造型上,大理石也以時光打磨的質感化作簡約凝練的飾麵形塑空間意境。加之不鏽鋼、牆紙、夾絲玻璃等材質的合理比例搭配,催生出層層渲染下的場景故事想象。
∇ 夾層
∇ 影音室
一幅幅極具視覺張力的裝飾畫作為線索,串聯起臥室、客廳、夾層和地下室在內的整個空間敘事,既有抽象筆觸勾勒的藝術提煉,也有影像式的寫實還原。它們與其他陳設藝術藏品交疊排列,仿佛年輪循環反複,在未來的生活中留下時間的記憶。
∇ 地下室
∇ 地下室家庭娛樂空間
∇ 地下室
∇ 地下室
∇ 地下室
∇ 地下室細節
空間由此成為一個背景或容器,以內在的層次感搭建視覺與環境的相互對話。點綴其間的物件將隨著生活而不斷更新,為這場對話豐富更多情節。這個家與主人一起成長,留下生活的可能痕跡,也接納個性的最大釋放。
∇ 主臥
∇ 主臥
∇ 主臥配飾
∇ 兒童房
∇ 兒童房
∇ 老人房
∇ 老人房
∇ 衛生間
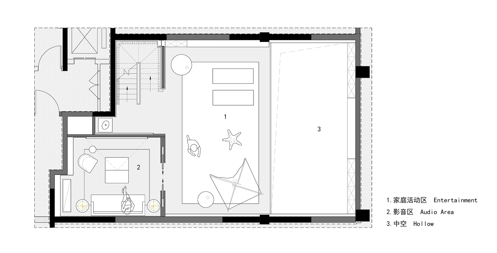
∇ 地下夾層平麵布置圖
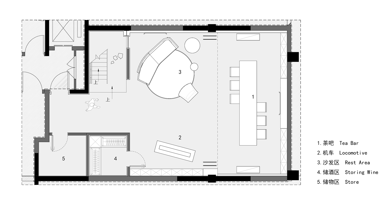
∇ 地下一層平麵布置圖
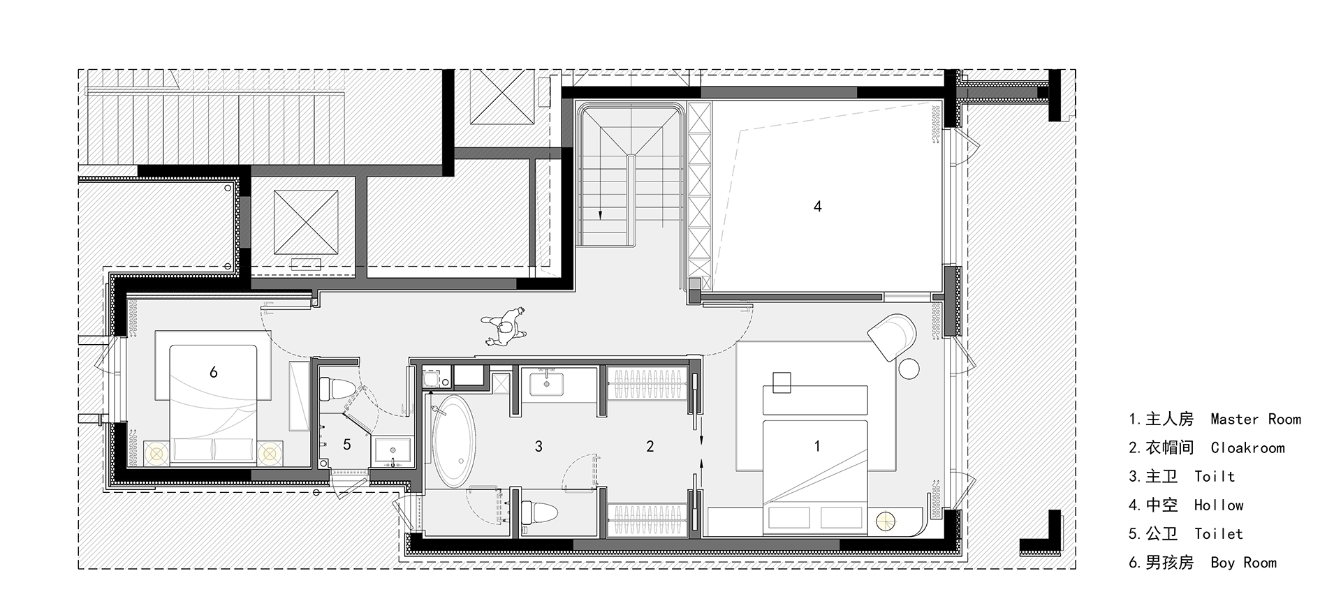
∇ 二層平麵布置圖
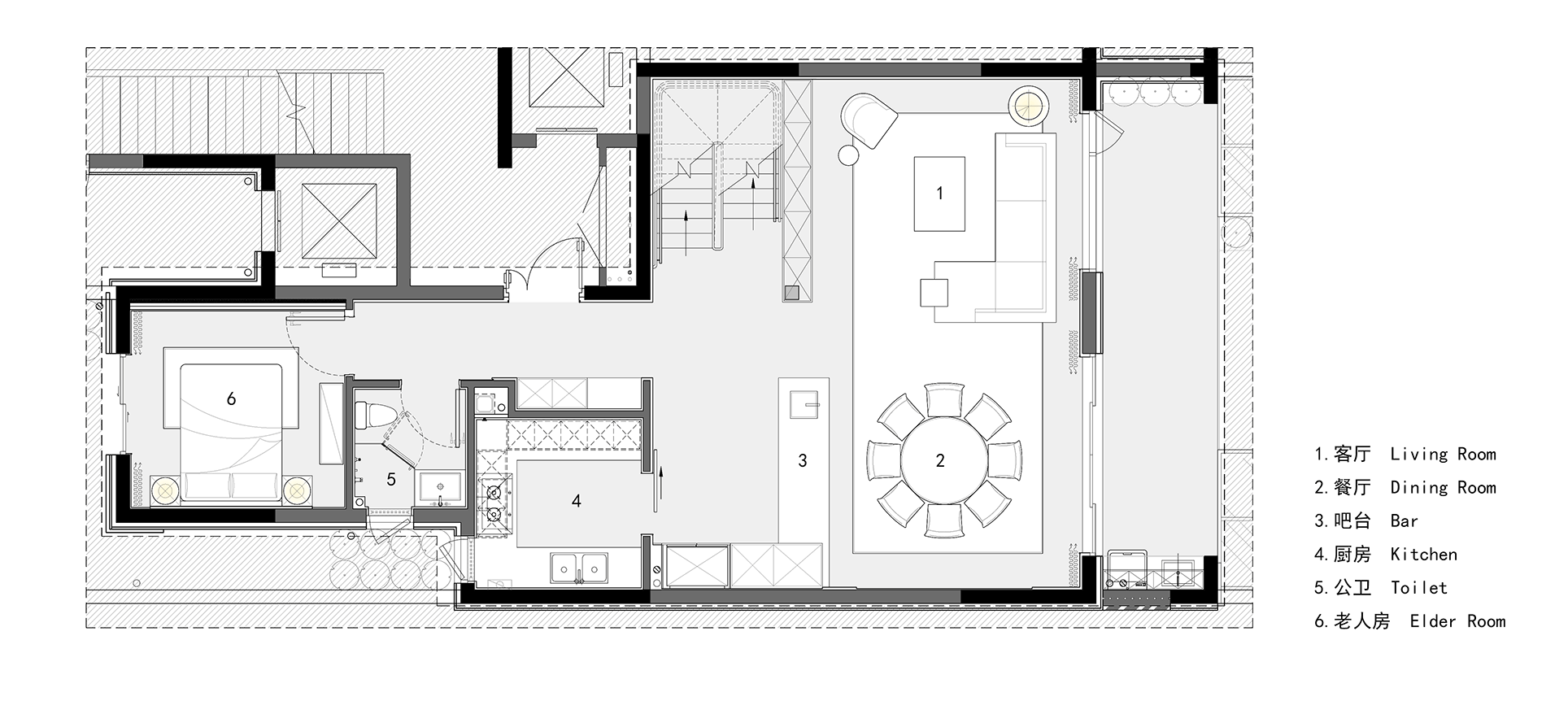
∇ 一層平麵布置圖
完整項目信息
項目名稱:萬科悅灣複式洋房項目
設計公司:ONE-CU壹方設計
聯係郵箱:mpluslab@126.com
完成年份:2019年6月
軟裝設計及執行:ONE-CU壹方設計
項目地址:西安.滻灞
攝影:釋象萬合
特別鳴謝:西安萬科










































