全球設計風向感謝來自 壹方設計 的營銷中心項目案例分享:
從場景到場所 | 壹方新作:杭州萬科·錢塘東方CO-Life美食圖書館
立足體驗
為客戶需求而變
互聯網催生消費場景的快速迭代,每天都在刷新著人們對於美好生活的感知。
作為消費場景的一種,傳統售樓空間的功能與服務,已經遠遠滿足不了消費者的需求,新的服務和體驗被期待,售樓處“去售樓處化”,成為時下的趨勢。
從過去業主、準業主的“購買式”需求,到未來可能80%第三人群所帶來的“打卡式”空間需求;從單一的銷售空間,逐步向滿足社區公共服務需求的功能空間轉變;從傳統的引導講解,向品牌服務認知與社區生活體驗的方式過渡;與客戶的服務關係也從錯層服務過渡到平行服務,並在不斷的交流與反饋中,獲得靈感,再為社區公共空間提供新的運營理念。
都市生活入口
打造複合場景創新樣板
銷售中心作為一個公共兼商業空間,在具備一定展示氣質的同時,更重要的是為未來使用者呈現一個真實的、連接周邊環境和氛圍的精神場所。
然而,如何更好地服務於人,成為家庭內部空間有限情況下的物理與精神的延伸空間,提供社區和社交的可能性,從而實現從個性需求到人文歸屬的轉變。
以此為命題,杭州萬科聯合壹方設計,在萬科·錢塘東方,對新一代複合場景銷售中心進行了全新定義,圍繞以用戶和社群為核心的運營思維,結合對項目客群、場地的差異化需求,共同打造輸出CO-Life美食圖書館體驗模型,加載咖啡,閱讀、美食、藝創四大主題場景,打造城市社區運營及公共空間的創新樣板,實現從場景到場所的迭代。
從打卡式的場景
到真實體驗的場所
為匹配在該模型下用戶行為與社群搭建的需求,將多維場景的體驗融入到空間之中,壹方設計深入探索了空間場景和場所之間的界麵,定位了以社區式的場景疊加滲透、激發互動,從而達到場所升級的設計策略。
場景作為一種功能性存在,提供體驗、生發故事;而場所則是基於功能與行為互為導向作為載體,介入情感,激發情緒,使時、空、人、物之間發生緊密的聯係。
作為公共的社區中心,除了場景的營造,更為重要的是將複合疊加的場景經由設計的手法,串聯起情感的鏈接,以強化不同使用群體的感性認知與歸屬感,形成真正的“場所”。
∇ 設計圖紙
建築作為這個“場所”的入口,以全落地玻璃打開室內的展示麵,形成沿街商鋪的既視感,壹方設計選用了貫穿雙層空間的裝置“大樹”,形成了項目品牌強有力的IP符號,也構成了建築內外部的記憶點和情感鏈接,吸引到訪和打卡。配合圖書展售式的陳列方式,讓書店般的場景體驗經由建築展示麵釋放信號,吸引人們入內探索。
與此同時,在室內空間,大樹裝置也迅速將空間與人、人與人的距離拉近、包裹,消減了人在高尺度空間之下的不確定感,形成有“包裹”感的樹影搖曳的閱讀氛圍。
場所升級
在場景搭建和功能布局上,設計團隊經由對場地和項目客群的深入調研,篩選了美食、咖啡、圖書、藝創作為四大場景板塊,在真實體驗之上,疊加項目展示和洽談、簽約的基礎功能模塊。
要使不同的場景與內容在一個場所中互相咬合,設計麵臨了3個亟待解決的問題:功能布局與動線設置,各功能模塊之間的界麵關係處理,同時在如此高密度的功能加載之餘,保持空間的開放性,實現空間在不同時期中功能的轉變和延續。
場景疊加 氛圍滲透
一層囊括了咖啡、閱讀、美食三大場景,同時加載項目展示和洽談功能。作為Co-Life體驗模型的核心區域,設計完成了從銷售語言到以用戶體驗導向行為的轉換創新。在開放的空間體係內,以不同尺度、開放度的家具,來引導行為的發生,場景之間互相疊加、鑲嵌,形成咬合。
△ 閱讀作為貫穿整個空間的行為和體驗,可以發生在任何一個角落,不論是臨窗區域,還是隨手抽起一本書坐在“樹下”,或是站在書架邊,甚至席地而坐。
△ 洽談區以圍合式布置,促發了交流的發生,包裹式的靠背椅,營造更為放鬆的洽談氛圍。
△ 開放的咖啡吧台,極大地鼓勵了互動的發生,可以親手製作一杯手衝咖啡,或三五成群分享咖啡知識。
弱化界麵 鏈接場景
我們選擇以大幅的書架貫穿整個空間,替代牆體,在內部空間完成建構,形成柔和的界麵。
這樣做的好處在於,一層與二層中,不同的功能板塊得以經由這個柔和而連貫的界麵互相滲透,以場景的形式切碎分布並連接,把大開大合的空間關係切成片段,增加更多的駐停,產生不期而遇的節奏感,互動和體驗不因場景而孤立,是不斷轉換和延續關聯的。
同時,我們在書架上打開了很多不能走通的“口”,以保證空間始終是流動的,在不同的角度看到不同的物和人,在有限的空間的場所裏,持續激發人們的探索欲與好奇心。
圍繞著書架的走道,形成了新的空間層次,這一回遊動線,使空間的互動進一步延伸,也帶來了一層和二層不同空間互相窺望的可能。人在裏麵活動時,空間和人的關係,以及人與人的關係變得更緊密而有趣。
營造開放性
咬合圖書主題,貫穿空間的裝置“大樹”選擇用特殊的“手工紙”細細打造,在空間其他材料的選擇上,亦延續了紙的質樸,以真實的建造呈現。木飾麵作為主材用於分割空間的體塊和書架,其不加修飾的本色增添了近人的溫度感,地麵采用氣質上一致的貼近木色的紋石白板。材質運用上的純粹,極大地打開了空間的包容性。
同時,光影與牆體形成交錯的韻律感,成為空間的特定背景,弱化了空間的室內外界限,增強整體動線的流暢度。
作為一個當代都會生活的全新場所,杭州萬科·錢塘東方Co-Life美食圖書館,以設計為切口,賦予社區更多的情感粘性,也為人們提供了更加專業的空間服務和生活多樣性的可能,更是以空間服務建構項目品牌與社區用戶相互感知的場所。
▽ 設計圖紙
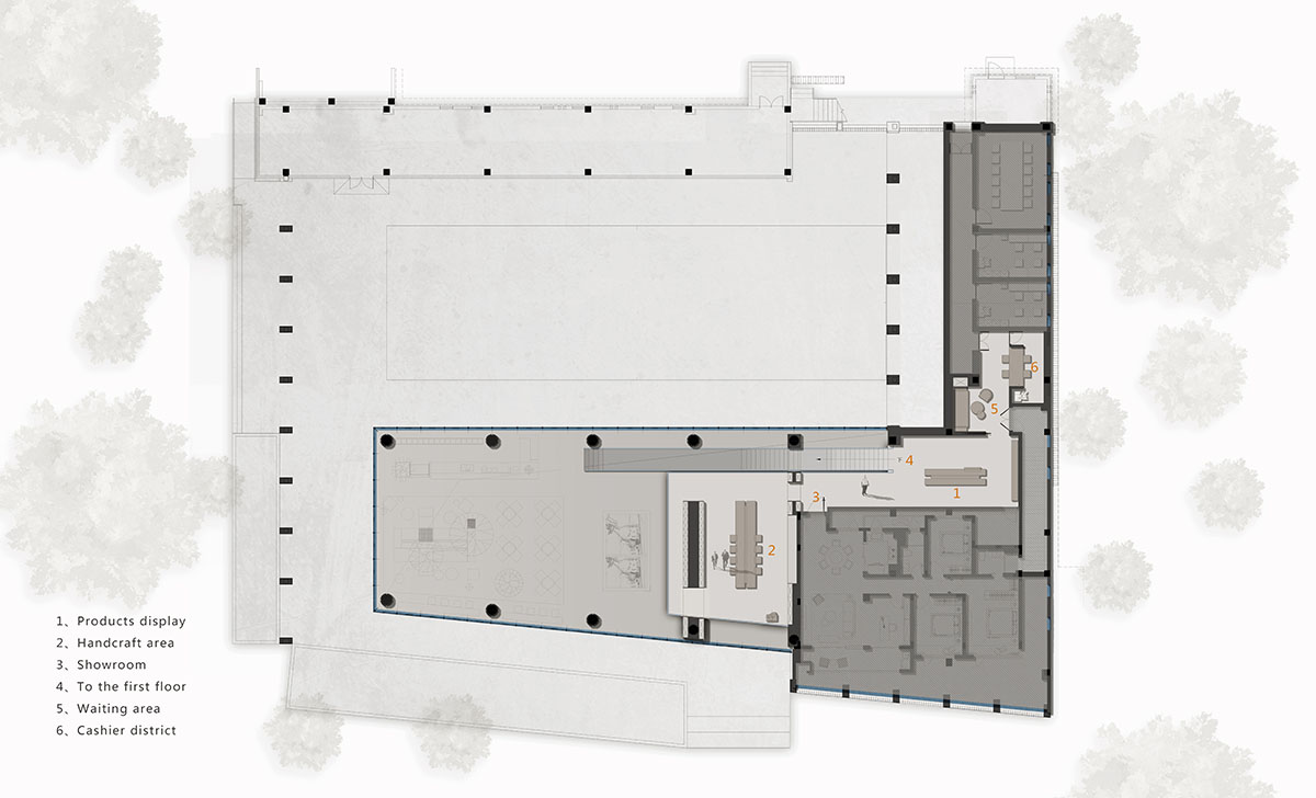
▽ 平麵圖
項目名稱:杭州萬科·錢塘東方CO-Life體驗中心
項目地址:中國·杭州
項目麵積:850㎡
完工時間:2020年9月
室內設計:ONE-CU壹方設計
軟裝設計:ONE-CU壹方設計
主要材料:紋石白板、木飾麵
空間攝影:釋象萬合
特別鳴謝:杭州萬科










































