Artjail是多倫多一家屢獲殊榮的紐約創意視覺效果精品店的新空間。項目位於多倫多西端一座現有的曆史工業建築內,目標是在這個開放式空間內插入一些新的空間,為廣告,社交,電影,音樂錄影帶和藝術界中的高端VFX工作提供設施。
Artjail is a new space in Toronto for an award-winning New York based creative visual effects boutique. Located within an existing historic industrial building in the west end of Toronto the goal was to insert a number of new spaces within an open plan that would house facilities for High-End VFX work in the advertising, social, film, music video and art world.
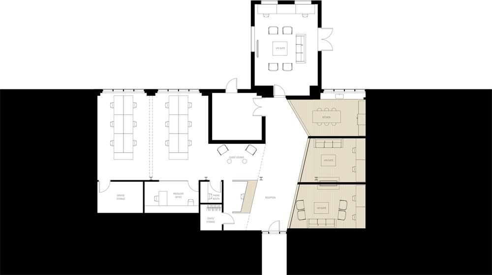
該概念圍繞三個VFX套件的創建以編程方式展開,其中包含編輯設備和客戶端演示功能。由於這些空間在技術上有最嚴格的要求,設計回應提出將這些提升為室內建築元素。
The concept revolved programmatically around the creation of three VFX suites which house editing equipment and client presentation capabilities. As these spaces had the most intense requirements technically the design response proposed to elevate these as interior architectural elements.
通過對計劃,功能和形式的嚴格研究,選擇了容納兩個VFX套件的空間,並選擇了一個廚房/會議空間,以一種建築姿態呈現。當來賓和工作人員進入該空間時,該元素立即呈現出來,充當該空間的功能和視覺標識。與這個元素相鄰的是一個前台,前麵是另一個程序塊,它同時支持開放工作區和VFX套件。
Through a rigorous study of plan, function and form a concept that housed two of the VFX suites and a kitchen/meeting space into one architectural gesture was chosen. This element presents itself immediately when guests and staff enter the space acting as the functional and visual identity of the space. Adjacent this element a reception desk fronts another block of program that supports both the open workspace and VFX suites.
我們嚐試進行一個小規模的項目,並從客戶作品所具有的創造力和激情中汲取靈感,設計了這個功能強大且令人難忘的盒子。
We attempted to take a modest project and produce a powerful and memorable insertion inspired by the creativity and excitement the clients work possesses.
∇ 模型
完整項目信息
項目名稱:ARTJAIL辦公室
項目位置:加拿大多倫多
項目類型:辦公空間/創意空間
完成時間:2018
項目麵積:3780平方米
設計公司:StudioAC
設計團隊:Andrew Hill, Rubing Xu, Jennifer Kudlats, Alyssa Hill
攝影:Jeremie Warshafsky






















