Tasou Associates翻修了這個建於1850年代的小倉庫,為9 Jeffrey’s Place創建了一個充滿陽光的辦公室。Tasou Associates的介入打開了Jeffrey’s Place的大門,引入了更多的光線,利用了符合建築工業曆史的工業材料。
A small, neglected warehouse built in the 1850s has been renovated by Tasou Associates to create the light-filled 9 Jeffrey’s Place office in London.Tasou Associates’ intervention opened up 9 Jeffrey’s Place to bring in more light, making use of industrial materials that nod to the building’s industrial past.
改造之前,這棟兩層樓的建築被改造成一個陳舊的工作空間,但由於未能處理建築黑暗、殘缺的布局,該工作空間很快被廢棄。Tasou Associates對Jeffrey’s Place進行了大修,拆除了建築,露出了原來的結構。
The overhaul follows an earlier adaptation of the two-storey building into a dated workspace, which was shortly abandoned as it failed to tackle the building’s dark, truncated layout.Tasou Associates began its overhaul of 9 Jeffrey’s Place by stripping back the building to expose the original structure.
通過這樣做,他們發現了“曆史的各個層麵”——從錯落有節的磚牆、一扇舊的裝貨門,到街麵上搖搖欲墜的吊車——這些都反映了當時翻修的細節。
By doing so they discovered “layers of its history” – ranging from patchwork brick walls, an old loading door and a crumbling hoist at street level – which informed the details of the renovation.
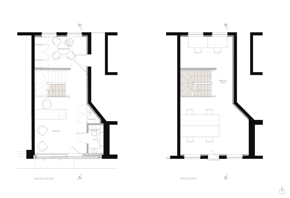
在內部,一個由折疊鋼製成的中央樓梯在地麵層和一層同時作為中央隔斷。
Inside, a central statement staircase made from folded steel doubles as a central partition on the ground and first floor.
這樣可以在不浪費走廊空間的情況下創建半私人工作區,並保持開放式布局。
This creates a mix of semi-private work areas without wasting space on corridors, maintaining an open-plan layout.
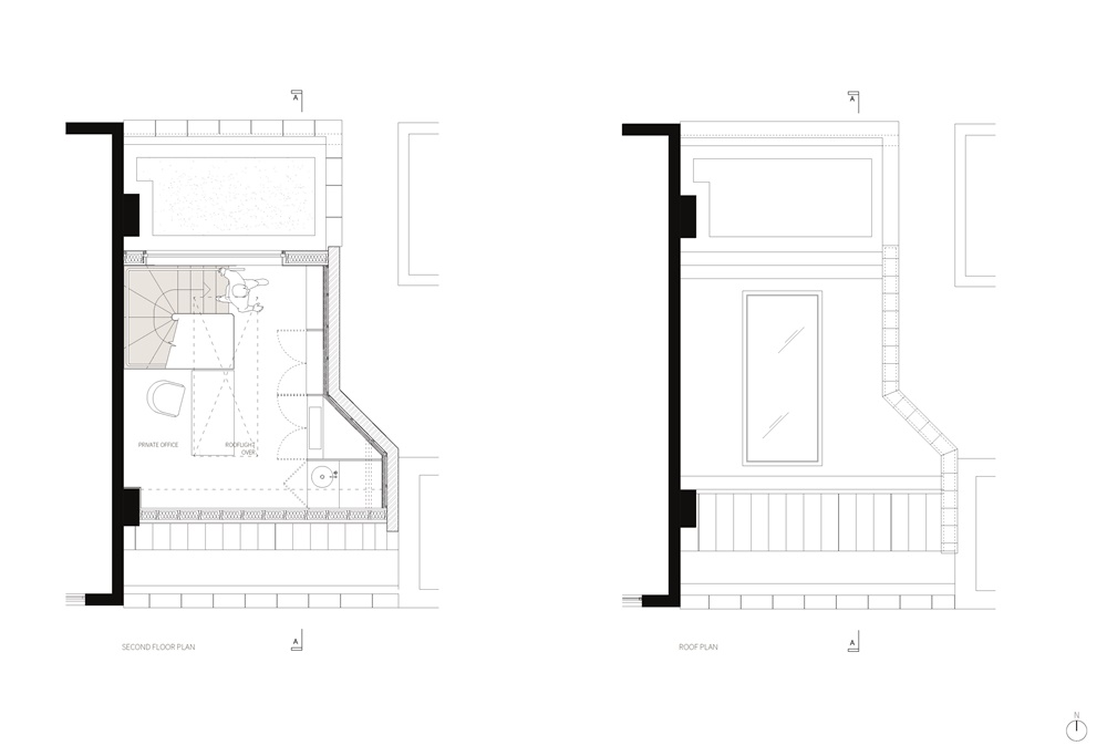
上方,Tasou Associates謹慎的在屋頂擴建部分合並了一個私人辦公室。從建築物的前部退後,從地麵幾乎看不到它。
Above, Tasou Associates has incorporated a private office in a discreet rooftop extension. Set back from the front of the building, it is barely visible from ground level.
擴建部分覆蓋了黑色鋅板,這參考了建築的工業遺產,並通過大窗戶和天窗將光線通過樓梯井射入下方的空間。
The extension is clad in black zinc to reference building’s industrial heritage, and punctured by large windows and a skylight that channels light down into the spaces below through the stairwell.
Jeffrey’s Place的所有空間都采用簡單的材料調色板裝飾,包括裸露的磚、淺灰色的石膏板、橡木和胡桃木的細節。
All the spaces in 9 Jeffrey’s Place are decorated with a simple material palette, including exposed brick, light grey painted plasterboard, and oak and walnut detailing.
室外也使用了木材,建築的立麵以滑動木百葉窗為特色,呼應了建築原有的正麵,有助於控製居住者的隱私。
Wood has also been used outside, and the building’s facade characterised by sliding timber shutters that echo the building’s original frontage, and helps to control its occupant’s privacy.
∇ 平麵圖 plan
∇ 建築外立麵 elevation
∇ 剖麵圖 section
主要項目信息
項目名稱:JEFFREY’S PLACE
項目位置:英國倫敦
項目類型:建築改造/辦公空間
設計公司:Tasou Associates
攝影:Rory Gardiner




























