LOFT中國感謝來自 弄木人文空間 的商業空間項目案例分享:
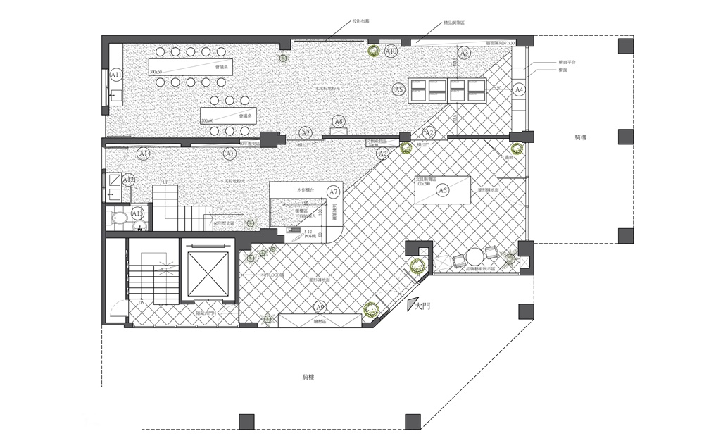
前區文具販賣區、結賬櫃台區、鋼筆刻字區、兒童文物區、60年曆史產品陳列區、古董原字筆製筆機器區、古董製筆所需工具陳列展示區、60年所有年份鋼筆櫃展示區、新品鋼筆櫃展示區、課程活動區。
本案為改建1951年代至今的台灣老字號文具店,業主期望除了販賣自製原子筆、鋼筆等商品外,新旗艦店亦能承載傳統文化的教育功能。我們將S.K.B六十年品牌所欲傳達的流暢、知性、美感(S=smooth、K=knowing、B=Beauty)轉化為空間語彙,沿用台灣在地元素,如:老式窗花、玻璃磚、抿石子等等,重新組構、運用在櫃體、櫥窗、地麵、角落,成為新舊空間交融裏的記憶符號。
以極簡台式設計風格定調,並以“書寫文化”為精神,統合大小展區,大量的白色、灰色與淺木色等樸素的材料質感砌築天地壁,讓場域主體能被清楚呈現:古董製筆機器、工具、有曆史的鋼筆、原字筆的流年歲月,分置在臨窗處、中央展區與曆史展示專區,讓商品在具文化脈絡的空間氛圍裏,易於被大眾接觸與擁有。
以異材質拚貼的櫃台為中心,天花板上的六角型長型軌道燈微微暗示格局分布,陳列架沿著軸線展開,平台式、壁掛式陳列框架以其適切比例切劃以符合產品尺度,線條縱橫拉出時代美感,木、鐵、玻璃,輕盈化櫃體,既複古又具現代洗煉感。
更新裝修店麵為一個跨時代意義的空間,大部份維持建築原尺度,僅部分更動室內牆桓,讓開闊與隱蔽性更為分明,並修複舊大樓的外觀與騎樓、改善入門動線與門框形製,大麵的落地窗,窗欞幾淨,將室外的在地街景融入室內而無界線感,仿若時代總是以無痕的方式滾動生活與文明,而複古情懷總是不落伍地成為超越時空的珍貴介質。
∇ 平麵圖
完整項目信息
項目名稱:老筆店新創生 Renovation of an Old Pen Shop
設計公司:弄木人文空間
聯係方式:nongmu107@gmail.com
設計主創:莊舒雲 Joye Chuang
軟裝布置師:劉文婷 Celine Liou
設計時間:2017年2月至2017年4月施工
完工時間:2017年5月完工
項目地點:中國台灣高雄市鹽埕區
項目麵積:60坪(182平米)
材質:白栓木實木鋼刷木皮、耐燃美耐皿、石材、烤漆鐵件薄板、樺木夾板、鐵刀實木、西班牙壁磚、老式花窗、花式玻璃磚、抿石子地麵






























