該空間的設計是為了滿足公司的新需求,該Rodovalho & Estrela律師事務所需要一個堅實、穩重和成熟,但又與合夥人的年輕和活力相協調的空間。
The space was designed to meet the company’s new moment, the law firm Rodovalho & Estrela needed a space that was solid, sober and mature, but in tune with the youth and energy of the partners.
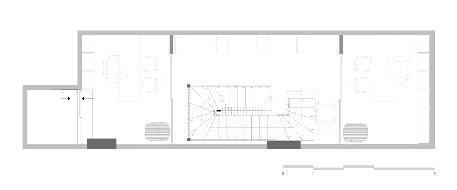
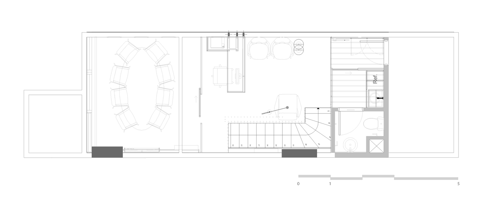
於是項目解決方案自然而然地出現了,一樓有接待和客戶服務區域,入口通過一個木製的通道,隱藏了廁所的通道和支撐物。地下室是整個工作和員工區,主要合作夥伴在樓層的兩端有獨立的房間,中間是員工區,檔案室和印刷室。其中一個合作夥伴房間可通往日光浴室,使得光線和自然通風能進入地下。
The project solutions were appearing naturally, the ground floor has the reception and customer service areas, the entrance is made through a wooden tunnel and conceals access to the toilet and support areas. On the basement floor is the entire production and staff area, the main partners have individual rooms at both ends of the floor and in the middle is the staff area, archives and print shop.One of the partner rooms has access to the solarium which allows the entrance of light and natural ventilation to the underground.
主要項目信息
項目名稱:R&E Office
項目位置:巴西
項目類型:辦公空間/律所
建築麵積:80㎡
完成時間:2019
室內設計:SAINZ arquitetura
攝影:Edgard Cesar

























