在雅法住宅上加建閣樓是一種由Henkin Shavit建築設計公司設計的現代化的公寓。完成於2014年,它位於雅法——以色列南部的特拉維夫最古老的地區。
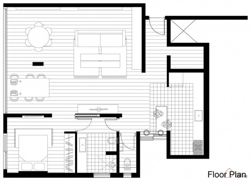
“這對夫妻,分別是室內設計師和平麵設計師,住在公寓兩年。閣樓是建在一棟60年代預製混凝土建築的12樓,它占地約95平方米。建在特拉維夫南部雅法頂部的閣樓,可以觀賞地中海的壯觀的景色和雅法及特拉維夫的古老街區。
閣樓是由Zohar Shavit和他的合作夥伴Irit Henkin設計的,他們決定拆除內牆,並用木質鬆木做的地板代替了被拆除的老地板,並允許隱蔽的新電力和管道基礎設施。鬆木地板被塗成了一種融合了灰色的天空和冬天的大海的淺灰色油漆。
閣樓結合了室內設計和建築工作室,並且住宅的室內被分成了兩個主要部分:一個包括一間起居室和一個寬敞的工作區的巨大空間,此外,在它的前麵還有一間臥室、浴室和衛生間。房屋內的立柱幫助區分了各種各樣的空間,分隔了生活區域和工作區域。
餐桌,其實是一個休息吧,桌子被放置在一塊三維圖案的混凝土地板上,從其餘閣樓空間中區分了廚房的範圍。工作區的橡木辦公桌是由工作室設計的。50年代的水晶燈被掛在光禿禿的水泥柱上。圓形餐桌是在雅法的跳蚤市場購買的,並被放置在圓柱旁邊。在圓柱的另一邊繞著餐桌放置了一些黃色的埃姆斯椅子。
Dror和Shavit他們的學年最後的論文,都能夠在起居室的牆上讀到。一個大型的工業鋁製的檔案庫也被設置在起居室裏,檔案庫圍繞著空調建造,它包括一個檔案室,一個圖書室和一個工作室項目演示區域。浴室和廁所的門均在海法的舊貨市場購買的,門是從一棟20世紀的建築上拆除下來的,並且經過了工作室的裝修和翻新。
淋浴地板是由Dror設計的,靈感來自古巴的模式。水池被放置在有機器拋光桌腿的鬆木桌麵上。Irit Henkin和Zohar Shavit在10年前成立的他們的公司,在這10年裏,他們設計了數不清的住宅項目。
Photos © Elaine Lim























