項目坐落於佛山禪城舊城區裏,在路口的轉角位處交替著新舊之間的變化散發出獨特氣息。
∇ 改造前
按照業主的要求改造空間,在舊房區樓道下突出了藍色屋簷與紅磚牆身的碰撞,咖啡館的商業氣息和生活的煙火交接在一起,喚起舊城區的生氣。
∇ 爆炸圖
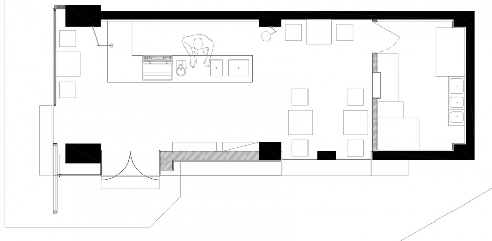
∇ 方案平麵圖
項目信息
項目名稱: Package House
項目類型:建築
設計方:A’M STUDIO
項目設計:陳國銘,吳瀅楓
完成年份:2023
設計團隊:A’M STUDIO
項目地址:佛山
建築麵積:40㎡
攝影版權:Crush,招鑫鑫
材料:紅磚,木材,藝術塗料
版權聲明:本站所有文章除投稿授權發布外,其他文字內容均為原創,享有著作權保護,未經許可不得以任何形式進行轉載(包括且不限於:媒體、網站、公眾號等)。所有項目照片/設計圖形版權歸原作者所有。本站部分內容源自網絡公開資源或用戶分享,如若侵犯了原作者的合法權益,可聯係我們進行處理。





















