這座比利時城市的前軍事醫院坐落在安特衛普的步行街區,這是一座新古典主義的曆史遺跡,如今已是August酒店的所在地。當地的Vincent Van Duysen建築師事務所(VVDA)將這棟受保護的建築及其花園改造成一個寧靜的接待場所,並進行了精心的修複(與Wouter Callebaut Architecten事務所合作),並加入了當代的元素。
Nestled within Antwerp’s pedestrian-only Green Quarter is the Belgian city’s former military hospital, a neoclassical monument that’s now home to the August hotel. In transforming the listed building and its gardens into a serene hospitality spot, local practice Vincent Van Duysen Architects (VVDA) balanced a careful restoration (in collaboration with Wouter Callebaut Architecten) with an injection of contemporary gestures.
VVDA不僅設計了建築空間,還設計了軟裝家具。幾乎每一件產品都是由Molteni&C公司生產的。家具裏包括椅子、桌子、扶手椅和沙發是專門設計的,以提供現有空間的對比,並帶來了當代生活氣息。家具與周圍的建築相協調。此外,這些家具滿足了酒店的各種需求,從在入口處為客人提供熱情的歡迎,到在教堂裏聚集人群,再到在室內空間裏劃分了舒適的用餐區和休閑角落。
VVDA designed not only the building but the furniture, too. Nearly every piece is unique to the project, manufactured by Molteni&C. The furnishings – including, chairs, tables, armchairs and sofas – were especially developed to provide contrast in the existing space and bring contemporary life to the project. The furniture is in synergy with the architecture surrounding it. Furthermore, the pieces cover the hotel’s every need, from offering guests a warm welcome in the entrance and gathering people in the chapel to establishing cosy dining areas and creating nooks in the bedrooms.
我們的策略首先是尊重場地和周圍環境的曆史遺跡的特征,並遵循重新開發所列出該建築的一些原則。這是通過恢複其新古典主義的輝煌和通過添加現代建築元素,適當地改造為現代酒店的新功能得到實現的。黑色元素被有選擇地引入,以區分現代與經典。
Our strategy was first and foremost to respect the historical DNA of the site and its surroundings and to align with the general principles governing the redevelopment of listed buildings. This was achieved through the restoration of its neoclassical splendour and through the addition of modern architectural elements, suitably upgrading the premises to its new function as a modern hotel. Black components have been introduced selectively to distinguish the contemporary from the classic.
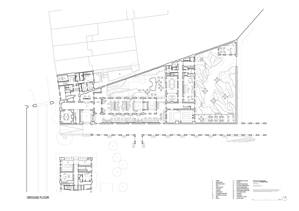
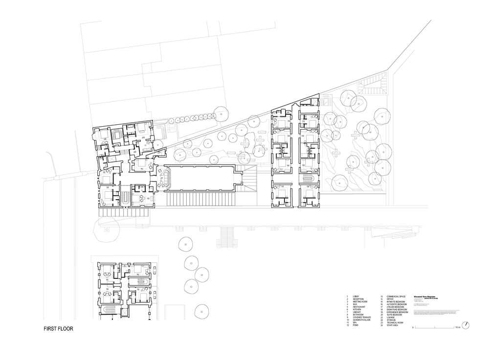
∇ 平麵圖
主要項目信息
項目名稱:August酒店
項目位置:比利時安特衛普
項目類型:酒店設計/建築改造
完成時間:2019
設計公司:VVDA&WCA
攝影:ROBERT RIEGER


























