全球設計風向感謝來自 集嘉設計 的KTV項目案例分享:
我們是星空的一部分
帶著星空的秘密,作為星辰探索
We are part of the starry sky,
with the secrets of the starry sky, to explore as stars
生命同頭頂的浩瀚緊緊相連
我們真正想要的,想要有的「存在感」
想要感覺自己是周遭
所有的活動跟事件的「主導」或「參與者」
Life is closely connected with the vastness of the head.
What we really want is a sense of existence,
a sense of being, a sense of being around us,
and the domination or participation of all activities and events
在歲月磨損的紛擾中,
我們時而沮喪,又時而欣喜,
我們偶爾受挫,又向往成功;
渴望在失意時有個空間能孤立自己,
亦渴望在美好時有個空間能分享自己;
In the tumult of years’ wear and tear,
We’re depressed, we’re happy,
We are frustrated occasionally and yearn for success;
Yearning for a space to isolate oneself when frustrated,
I also want to have a space to share myself when I am beautiful;
TEMPO,我們設計的初衷
我們希望在這裏,不管是沉澱還是放縱,
走出去都是更熱情的去創造自己的生活。
從無限大的星空 到無限小的自我
我們「感受生命」
Tempo, the original intention of our design,
We want to be here, whether it’s precipitation or indulgence,
Going out is to create your own life with more enthusiasm.
From the infinite starry sky to the infinitely small self,We feel life
「流動的時光」Flowing time
當我們跳出低維度的視角去思考生命,具象到時間與空間,時間可以看作有限無界的四維麵 ,想象出時間是一種具象的物質,而且能夠彎曲,就如燈光的變化,設計中對於燈光的運用隨處可見,光的變化使凝固的空間開始流動起來。
When we think about life from the perspective of low dimension, concrete to time and space, time can be regarded as the four-dimensional finite infinite surface, imagine that time is a kind of concrete material, and can bend, just like the change of light, the use of light in design can be seen everywhere, and the change of light makes the solidified space begin to flow.
「虛實的空間」Space of virtual reality
時間讓凝固的生命產生了靈魂,空間也就擁有了時間的深度。一個由空間和時間形成的交互性,使得更為完整和充實,我們在設計中利用玻璃、不鏽鋼鏡麵,透明與反射的效果,虛實疊加與重合,體現光影與周邊的融洽,進一步強化了時空感。
Time makes solidified life produce soul, and space has the depth of time. An interaction formed by space and time makes it more complete and substantial. We use glass and stainless steel mirrors in our design, with the effect of transparency and reflection, with the superposition and coincidence of virtual and real, reflecting the harmony between light and shadow and the surrounding, and further strengthening the sense of time and space.
「閃耀的私密舞台」Glittering private stage
時間裏藏著空間,空間也包含著時間。從走廊的“時光隧道”走入私密空間的包房,燈光的變化自然地延續貫通,動感線條製造出不同的視覺感受。
舞動閃耀的頂麵、變換的星空燈以及全息影屏包裹整個空間,配置走秀舞台、台球桌等娛樂設置,營造一個釋放自我的情景氛圍。
There is space in time, and space also contains time. From the “time tunnel” in the corridor to the private room, the lighting changes naturally continue to run through, and dynamic lines create different visual feelings.
Dancing the shining top, changing star lights and holographic screen wrap the whole space, and configure entertainment settings such as walk show stage and billiard table to create a scene atmosphere of self release.
「躍動的音律」The rhythm of leaping
TEPMO的本質當然是音樂,無論是燈光帶來的律動,還是歌曲調帶來的音律,亦是我們歌唱的聲音,音樂作為語言,是聯係我們與周圍的人、事、物的重要符號。在設計上,入口酒櫃區,吧台調酒區,台球娛樂區,連接著燈帶隨音樂而變化,並且多方位設置了LED屏幕,帶著整個空間一致的躍動。
The essence of tepmo, of course, is music. Whether it’s the rhythm brought by light or the melody brought by song tune, it’s also the voice we sing. As a language, music is an important symbol that connects us with people, things and things around us. In terms of design, the entrance wine cabinet area, bar mixing area, billiard entertainment area are connected with the light belt changing with the music, and LED screens are set in multiple directions, with the same jump of the whole space.
有人說生命的本質就是浪費時間
而我們說“浪費”在有意義的事上就是生命創造的積累
原生質,質生空,空生時,時生萬物
在世界之大,空間變化之不可預見,時間飛逝之迅速
我們仍如萌芽般充滿欣喜與感動去生活
用音樂表達內心的自我
給自己一個閃亮的夢想
Some people say that the essence of life is to waste time
And we say that “waste” is the accumulation of life creation in meaningful matters
Protoplasm, quality generates emptiness,
emptiness generates all things at the same time
In the world, space changes unpredictably and time flies rapidly
We are still in the bud full of joy and moving to live
Expressing inner self with music
Give yourself a bright dream
「一路星辰,一路歌」
All the way stars, all the way songs
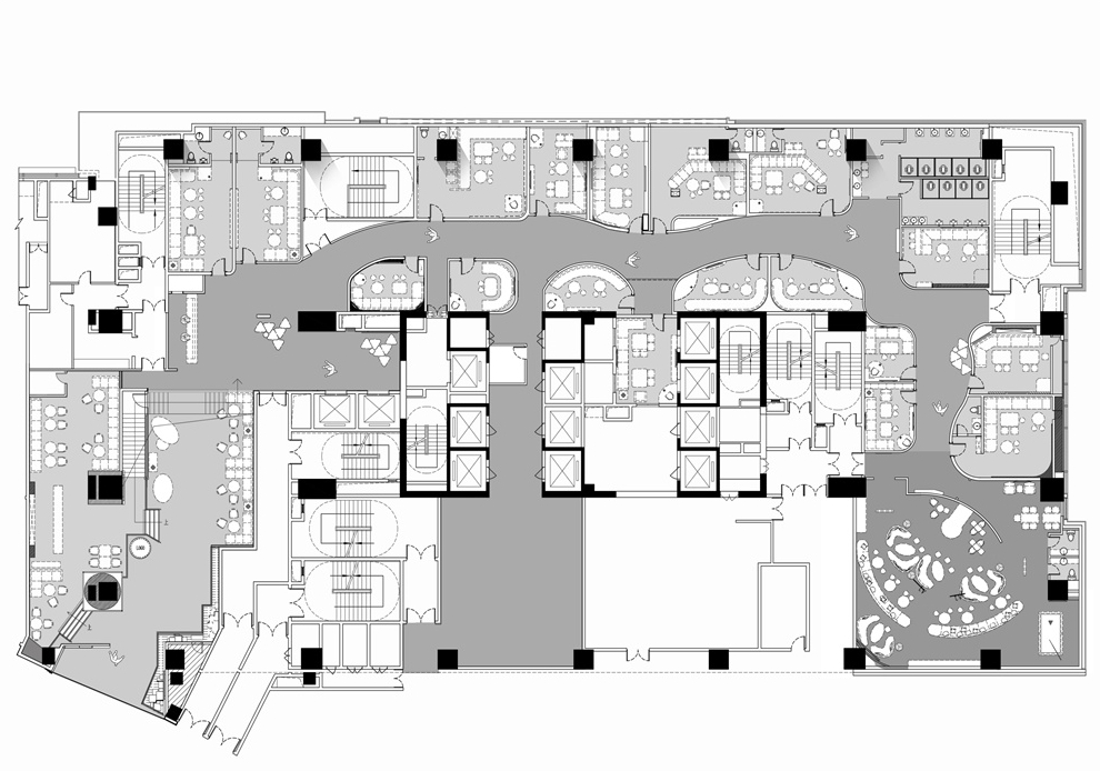
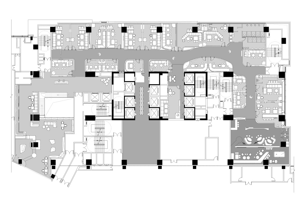
∇ 平麵圖
主要項目信息
項目名稱:TEMPO KTV
項目地址:中國成都
項目麵積:3800㎡
設計公司:集嘉設計
公司網站:www.jijiaid.com
聯係郵箱:352216073@qq.com
主要材料:板材、玻璃、石材、不鏽鋼、鏡麵
完成時間:2019.01
主案設計師:沈嘉偉 JiaWei Shen
執行設計師:馬宏佳 HongJia Ma
攝影師:何震環 ZhenHuan He | 存在建築 Arch-Exist
項目撰文:楊拉蔓 LaMan Yang























