洛馬房子是由 Iván Andrés Quizhpe在2013年完成的一個住宅項目。它坐落在厄瓜多爾昆卡。所涉及的建築是二十世紀的農村傳統的房子。它是盤點文化遺產研究所(國家研究所帕特裏莫尼奧文化,INPC)。它位於聖華金區域的一個最高的陡峭的角度的部分。這是曆史上著名的農業城市,它為昆卡市提供了蔬菜。
該用途是基於現有的結構和重新重用領域的功能,以便產生可居住性和舒適性的條件,滿足現代生活方式需求。
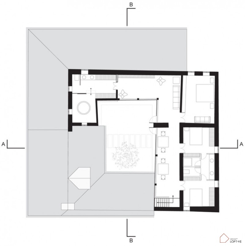
該項目通過應用從經驗中展開,並支持其不斷搶救傳統建築的傳統技法。現有的材料,如岩石、汙物、桉木、幹草和蘆葦的再利用,以恢複原來的結構。與此同時,對於地區的功能,一些新元素被引入。這些工業材料,如鋼鐵和玻璃,現有的能顯示出的新元素,這些都是建立與來自相同屬性生成其自己的原料。如牆壁和原生植被有助於改善景觀。該程序被分成由隱私等級定義,並通過天井連接。在單層擁有更多的功能領域,生活用房、餐廳和燒烤。同時,預先存在的綠鏽的火爐和木烤箱坐落在老廚房。兩層樓的高塊包含更多的私人領域,如客廳、餐廳、廚房、辦公室、圖書館、臥室和各種服務。幾乎所有的家具都是專為這所房子設計的。
玻璃幕牆被放置在室內的畫廊前,以增加領域的舒適性以及保護房子的結構。庭院是由像鏡子一樣的水包含著河石和樹組成的。因為這是房主打開視線的第一個區域。
Photos © Jomar Bragança
版權聲明:本站所有文章除投稿授權發布外,其他文字內容均為原創,享有著作權保護,未經許可不得以任何形式進行轉載(包括且不限於:媒體、網站、公眾號等)。所有項目照片/設計圖形版權歸原作者所有。本站部分內容源自網絡公開資源或用戶分享,如若侵犯了原作者的合法權益,可聯係我們進行處理。




























評論(2)
這個院子太美了。 屋外的牆是實打實的,入院後的牆用鏡做,這樣的設計也很巧妙。滿足了安全感,也滿足了在鏡牆前獲得豁然開朗的心情的需求。
好稀飯