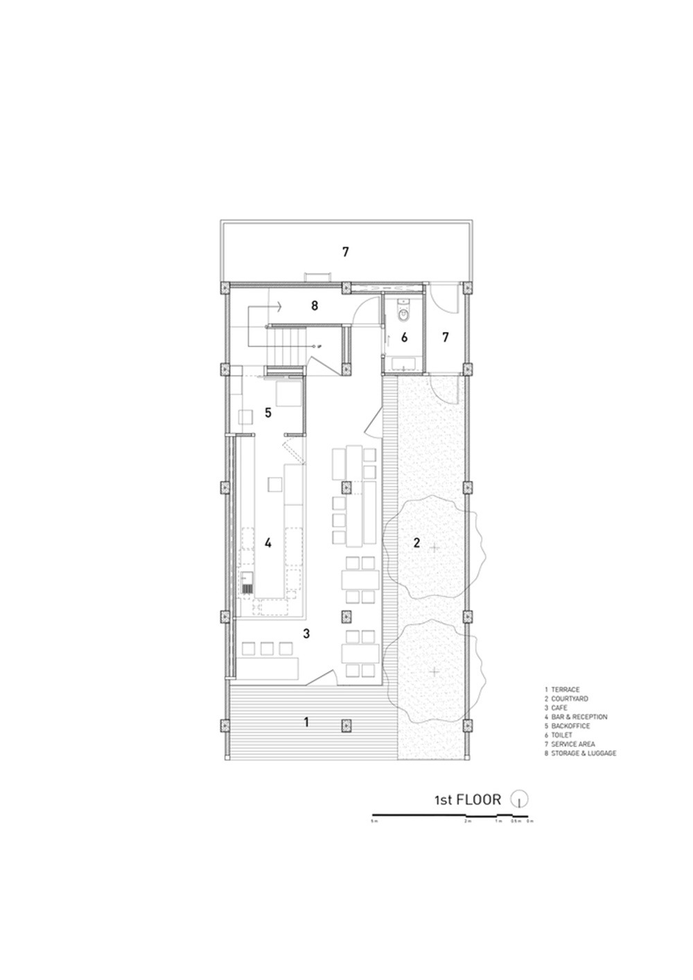
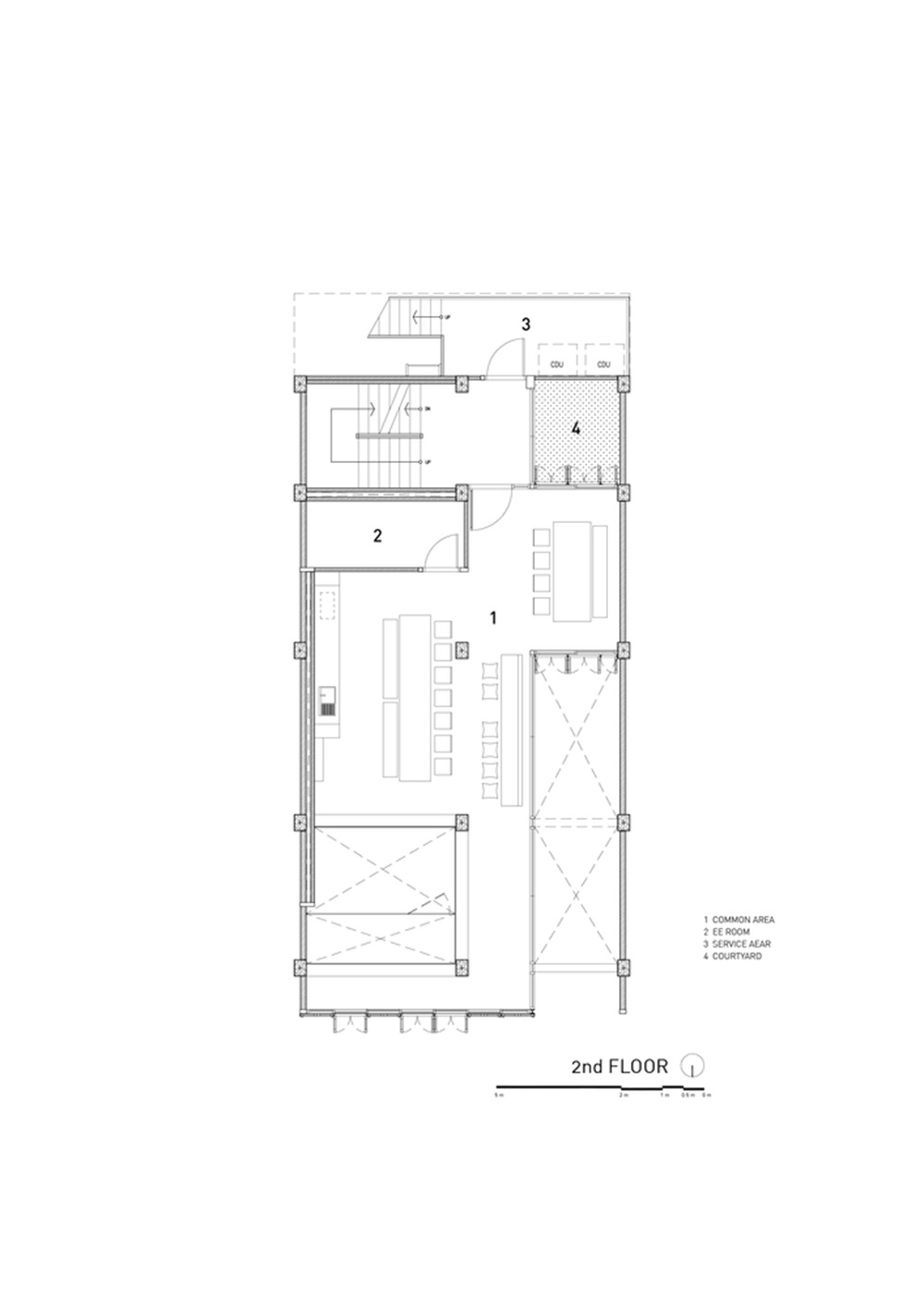
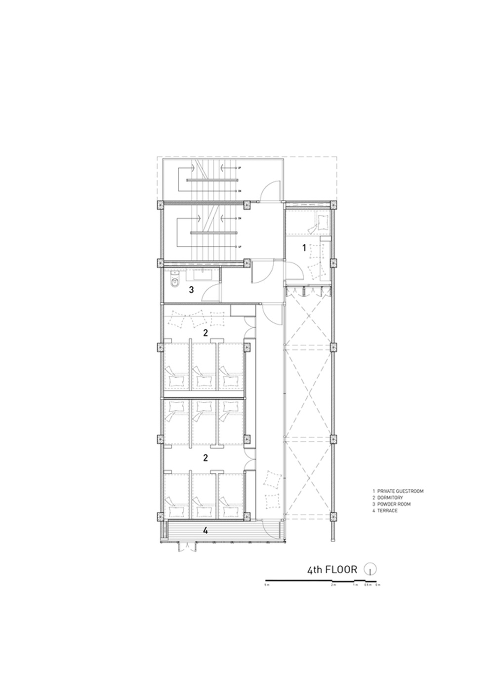
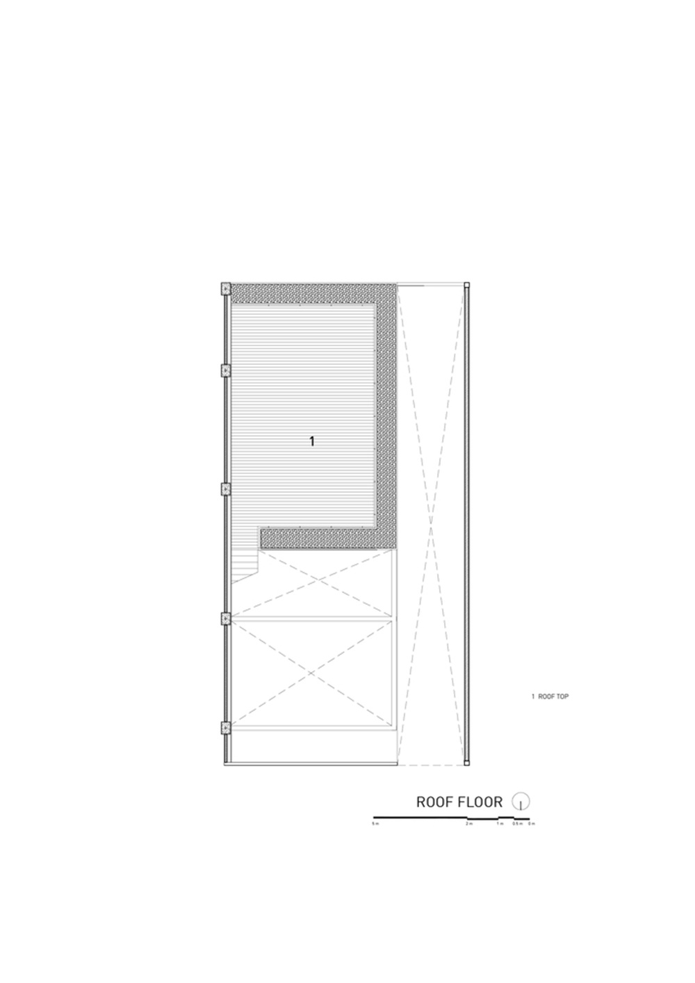
位於Phraeng Saphasat,曼穀最著名的曆史區之一的Pa Prank項目是一處經過翻新的建築,由兩間商店改建為旅館和咖啡館,在該處附近有數個景點可供遊客參觀。為了方便起見,該旅館的功能安排得到了充分的考慮。夾層是公用區域,從底層的咖啡館,活動區和樓上的客房均可方便到達。公共區域的上方是浴室、更衣室和洗衣房區,三樓和四樓是客房區。最後,瑜伽和拳擊課區位於屋頂層,服務於室內和室外活動,在此可以欣賞美麗的曆史景色。
Located at Phraeng Saphasat, one of the most well known historical districts in Bangkok where there are several attractions for tourists around, Pa Prank project is a renovated building from two shophouses to become a hostel and a cafe. The arrangement of the functions in this hostel is significantly considered for convenience. On the mezzanine floor is the common area where is convenient for access from the cafe on the ground floor, and from activity area and guestrooms upstairs. Above the common area is the zone for bathroom, locker rooms and laundry, leaving the third and fourth floor to be the places for every guestroom. Finally, the yoga and boxing class zone are located at the roof floor for serving both indoor and outdoor activities, which can take the view of beautiful historical scene.
這個設計的概念來自於商店裏普遍存在的光線不足的問題。店屋通常很長,它的兩邊被相鄰的單元覆蓋著,所以隻有少量的光線從建築的前麵進入。因此,在每一層中,沿著建築側麵的整個兩米區域被移除,以便讓光線進入該區域。此外,一樓的通風區域也被設置為庭院。特殊的私人客房被設計成漂浮在這個高的空體上,為他們提供兩個方向的光線和通風。這些房間的頂部也用作上層房間的陽台。現有的結構和開裂的磚牆被有意地保留下來,向人們述說著這座建築的曆史。
The concept of the design comes from the common problems of lacks of light in the shophouse. Shophouse is usually long and is covered its two sides with the adjacent units, so there is only a little amount of light entering through the front side of the building. Therefore, the entire two meters area which lies along the side of the building in every floor are removed in order to let the light comes in to the area. Moreover, this ventilating area on the ground floor is also provided to be a courtyard. Special private guestrooms are designed to float upon this high empty volume providing them two sides of light and ventilation. The top of these rooms is also used as a balcony for the upper rooms. The existing structure along with the chapped brick wall are intentionally preserved for being a reminder for the former building.
此外,建築師希望在曆史環境中傳達現代感的對比思想。為了實現這一目標,選擇了巨大的幕牆作為圍護建築物深處功能區域的元素,以反映保存完好的牆壁。另一方麵,遊客可以清楚地看到古老的牆壁作為現代窗戶的反射,而這麵牆也成為了內部客人的風景。前立麵的設計靈感來自傳統的泰國店屋的窗戶,但它以一種不同的方式進行詮釋。鋼鐵和黑色等新材料現已成為主要特征,使建築從周圍的環境消失。而室內空間則主要以原有的傳統窗式裝飾為主,以白色為主,給人以舒適的感覺。
In addition, the architects desire to communicate the idea of the contrast of being modern among historical surrounding. To achieve that, a huge curtain wall is chosen as an element enclosing the functional areas along the building’s depth to reflect the well-preserved wall. On the other hands, the visitors can clearly see the old walls as a reflection on the modern window, and this wall also be the scenery for the guests inside. The front facade design is inspired by the traditional Thai shophouse’s window but it is interpreted in a different way. New materials like steel and black color are now the main feature, causing the building disappear from surrounding context. In contrast, interior spaces are mainly decorated with the original traditional window’s character, and with white color for comfortable feel.
∇ 建築分析
主要項目信息
項目名稱:PA PRANK
項目位置:泰國曼穀
項目類型:建築改造/酒店空間
項目麵積:725㎡
完成時間:2018
設計公司:IDIN Architects
攝影:Ketsiree Wongwan































