本案為座落濱海的三層樓獨棟建築,作為度假使用要使其他與三隻愛貓一起放鬆玩樂。為了打造純粹的粉紅空間,我們以粉紅色礦物漆作為壁麵及天花基底,並挑選偏向自然色調的各種不同粉紅材質,去構成混合的風格。
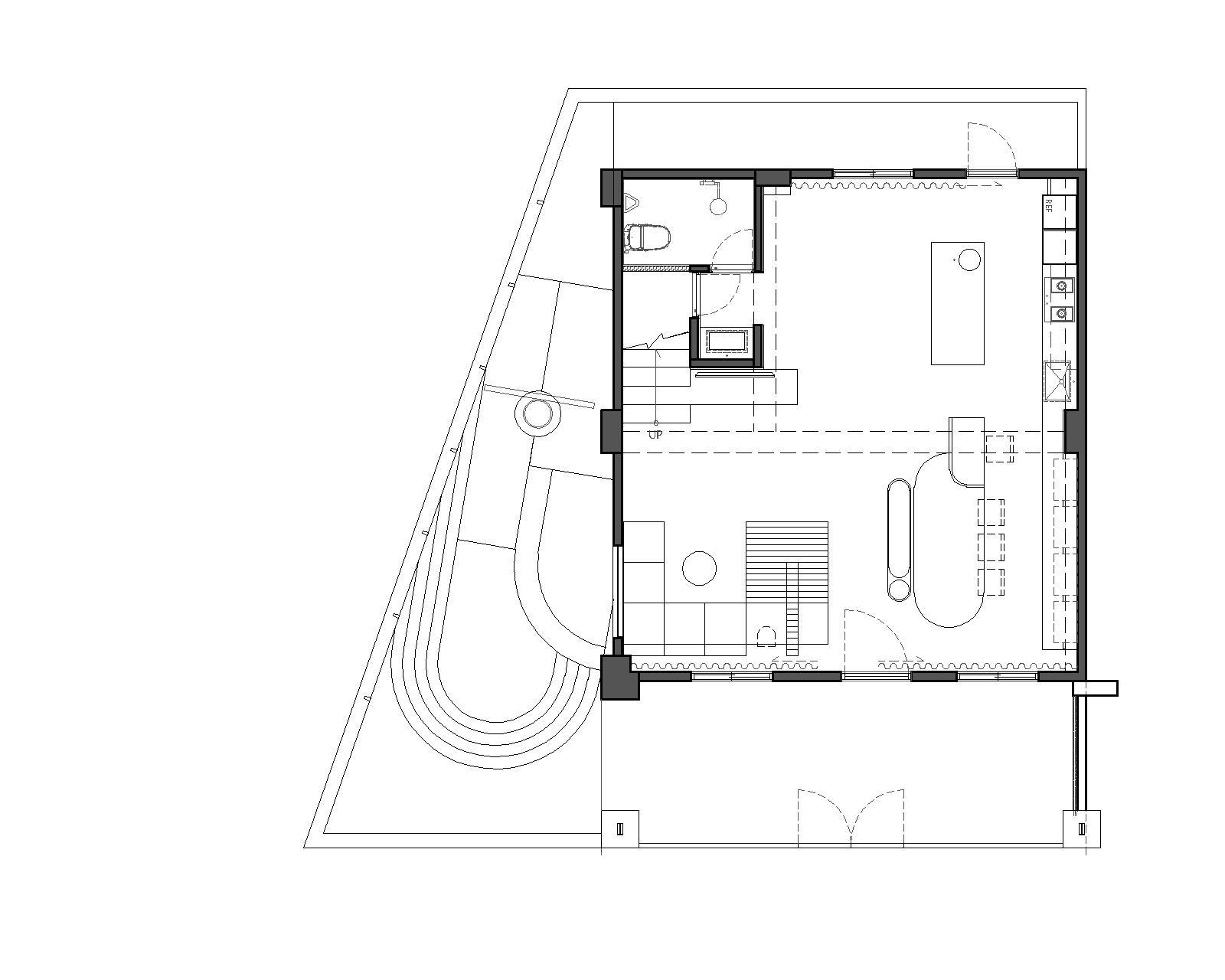
一樓空間屬公共區域,作為日常起居及招待朋友使用,為了展示屋主的收藏品,利用玫瑰金不鏽鋼設計活動層架及其他櫃體,在較大粗曠的壁表麵能對比出精致質感。與餐聽雖有明顯分區,但動線與座位的方向能增加使用者在兩個區域互動的可能性。而料理區上方的天花穹頂,以附機能性的誇張造型和圖樣去襯托空間的玩味,,必要的設備及管線隱藏其中。
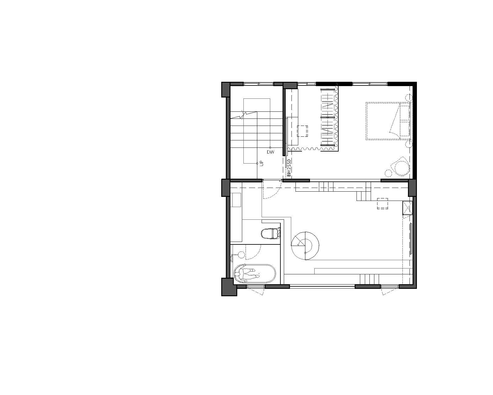
二樓屬私密密的空間,有主臥,衛浴和專屬的貓房。我們以貓房為中心,讓其他空間都能與他有直接或間皆的連結,貓咪房的空間設計規模圍繞著貓與人,透過細節能發現空間家具/家具空間之間的概念轉換,比方適合貓走的梯台,結合屋主的寫字桌。在這地方主人能做自己喜歡的事,邊跟貓咪玩耍,又或睡前能待在主臥觀察貓咪在隔壁的舉動,另外主衛浴的玻璃能遙控調整透光率,以達到財富的考量。
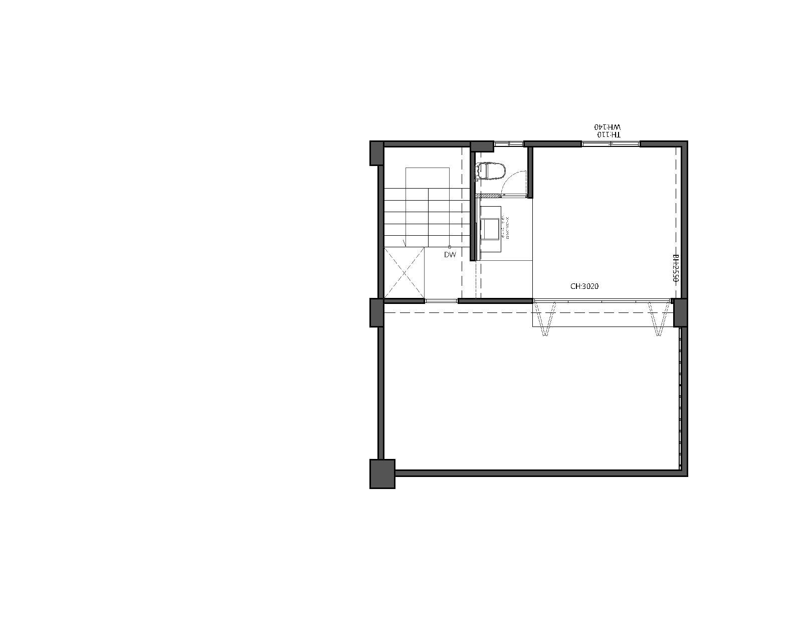
風格相異於一,二局部,多功能的三樓空間是唯一有與戶外相連的地方,走到天台能夠看見陽光,天空,整齊轉動的風力發電機。除了局部的粉紅與幾何元素之外,我們采用多個寧靜簡單的設計手法,保留各種材料的原始質感,例如鐵件,水泥,木質,以呈現此區域特殊的過渡室內外地帶。
主要項目信息
項目名稱:竹南葉宅
項目地址:中國台灣苗栗
項目類型:住宅空間/度假宅
項目麵積:144㎡
項目年份:2019
設計公司:KC Design Studio均漢設計
項目負責人:Kuan-huan, Liu, Chun-ta, Tsao
攝影:Hey! Cheese
版權聲明:本站所有文章除投稿授權發布外,其他文字內容均為原創,享有著作權保護,未經許可不得以任何形式進行轉載(包括且不限於:媒體、網站、公眾號等)。所有項目照片/設計圖形版權歸原作者所有。本站部分內容源自網絡公開資源或用戶分享,如若侵犯了原作者的合法權益,可聯係我們進行處理。































